Thank you
Your message has been sent successfully, we will get in touch with you as soon as possible.
€695,000 Sold
Contact Us
Our team of financial experts are online, available by call or virtual meeting to guide you through your options. Get in touch today
Error
Could not submit form. Please try again later.
37 Oak Apple Green
Rathgar
Dublin 6
D06 K2R7
Description
This property comes to the market in immaculate decorative order, having undergone modernisation over the last 15 years, offers the discerning purchaser the opportunity and comfort to move in immediately.
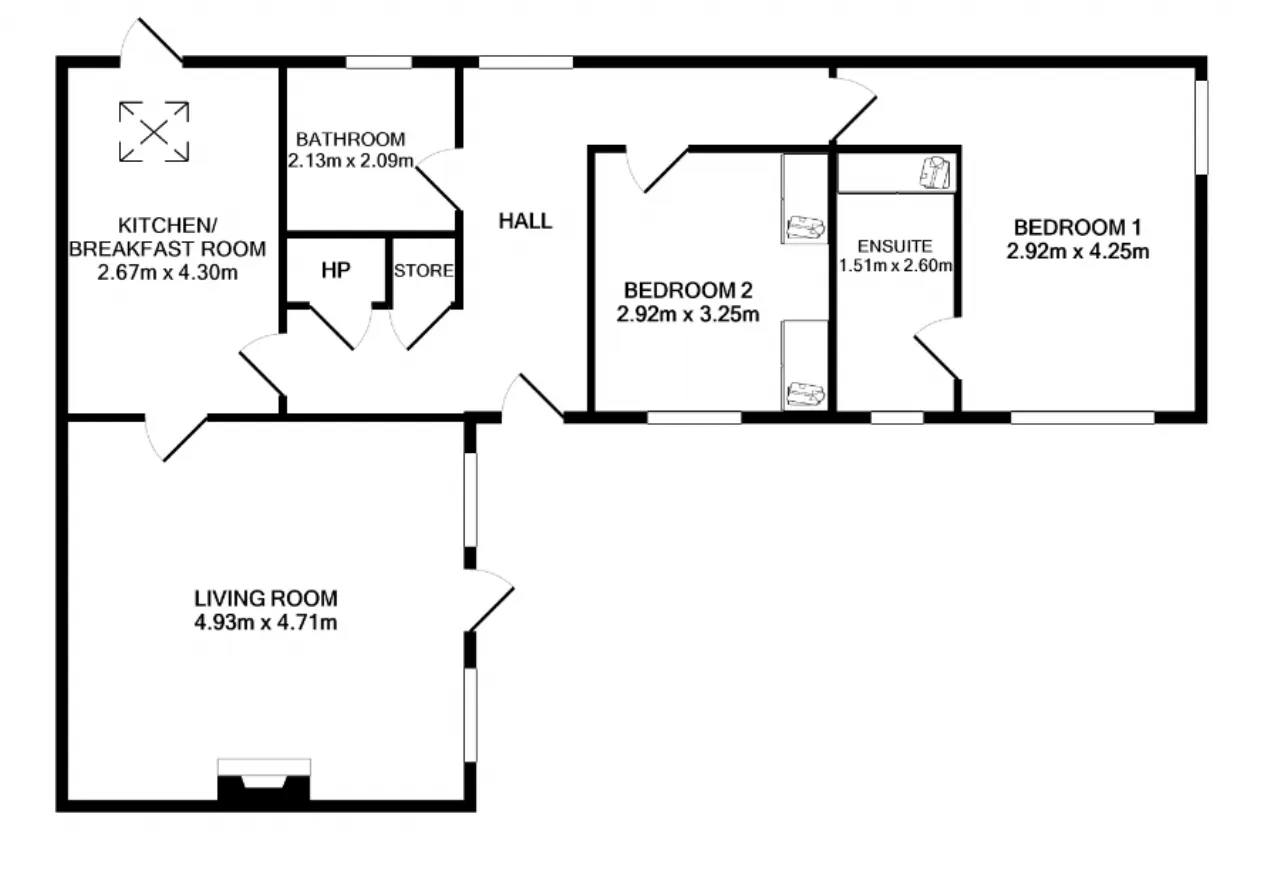
A garden gate leads through to the attractive 2 bedroomed bungalow and comprises of an open plan living /dining room leading to a kitchen breakfast room off. The attractive walled garden can be accessed off the living room, an ideal area for al fresco dining. Down the hallway, there are two double bedrooms, the main of which enjoys a shower ensuite. A family bathroom completes the accommodation.
Enjoying a picturesque setting, No. 37 Oak Apple Green is superbly located off the highly regarded Highfield Road. The convenience of the location is second to none, within walking distance of the village at Rathgar.
This mature area is close to a selection of amenities both social and essential along with fine educational facilities. Some excellent sports facilities close by include Dartry Fitness Club, L.A. Fitness and Milltown Golf Club. The villages of Rathgar, Terenure, Rathmines and Ranelagh are all short distance away.
The extensive recreational facilities of the Palmerston Park, Belgrave Square and the Dodder Linear park are within walking distance. The property is 3 miles approx. from St. Stephen's Green and within easy reach of the M50.
Contact Us
Our team of financial experts are online, available by call or virtual meeting to guide you through your options. Get in touch today
Thank you
Your message has been sent successfully, we will get in touch with you as soon as possible.
Error
Could not submit form. Please try again later.
Features
Rewired
Recently fitted windows and doors
Recently fitted flooring
Rooms
Cloakroom with hanging space
Living Room 4.93m x 4.71m with ‘wood style’ flooring, vaulted high ceilings, cast iron fire place with fitted stove, floor to ceiling window and glazed patio door with access to the garden
Kitchen / Breakfast Room 2.67m x 4.30m accessed from the hall and living room, fitted base and eye level units incorporating range of integrated appliances including Zanussi hob and Neff oven with extractor overhead, plumbed for washing machine and dishwasher. Door to rear side passage recessed lighting.
Bathroom 2.13m x 2.09m tiled flooring and walls, bath, wc, wash hand basin, fully tiled walls and floors, jacuzzi bath and mixer tap, access to attic.
Main Bedroom 2.92m x 4.25m spacious and bright with dual aspect, double room with newly fitted carpets an array of fitted wardrobes.
Ensuite 1.51m x 2.60m with fully tiled walls and floors, shower cubicle with electric shower, wash hand basin, wall mounted mirror, window for natural light.
Bedroom 2 2.92m x 2.60m double room with newly fitted carpets and fitted wardrobes.
BER Information
BER Number: 101185533
Energy Performance Indicator: 224.41 kWh/m²/yr
About the Area
Rathgar is a largely residential suburb lying about 3 kilometres south of Dublin's city centre. It boasts an abundance of amenities, schools, nursing homes, sports facilities, and good public transport to the city centre. Housing largely comprises red-brick late Georgian and Victorian era terraces, and much of the area lies within an architectural conservation zone. Rathgar maintains a village feel and has a delicatessen, 2 butchers, a bike shop and a wine shop within 20 yards of the main cross. There is also Rathgar Pharmacy, Rathgar Hair Studio and a number of fashion and interior boutiques.
Get Directions Buying property is a complicated process. With over 40 years’ experience working with buyers all over Ireland, we’ve researched and developed a selection of useful guides and resources to provide you with the insight you need..
From getting mortgage-ready to preparing and submitting your full application, our Mortgages division have the insight and expertise you need to help secure you the best possible outcome.
Applying in-depth research methodologies, we regularly publish market updates, trends, forecasts and more helping you make informed property decisions backed up by hard facts and information.
Need Help?
Our AI Chat is here 24/7 for instant support
Help To Buy Scheme
The property might qualify for the Help to Buy Scheme. Click here to see our guide to this scheme.
First Home Scheme
The property might qualify for the First Home Scheme. Click here to see our guide to this scheme.
