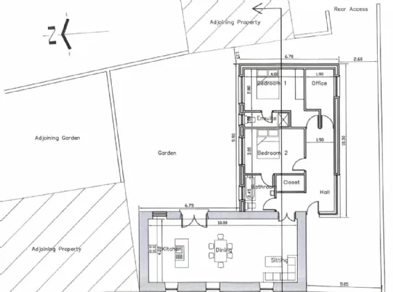
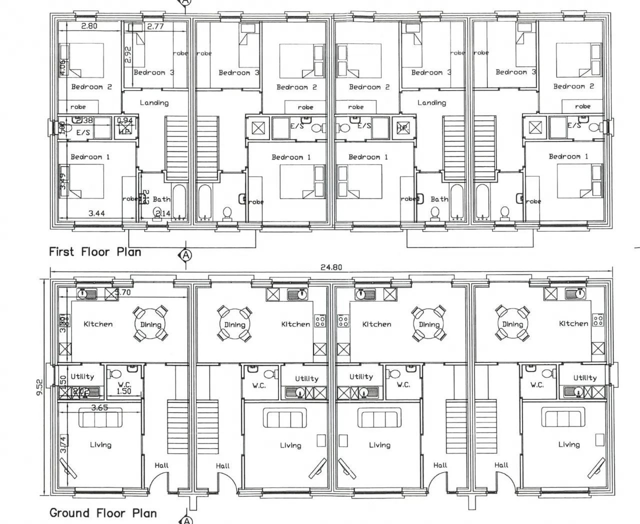
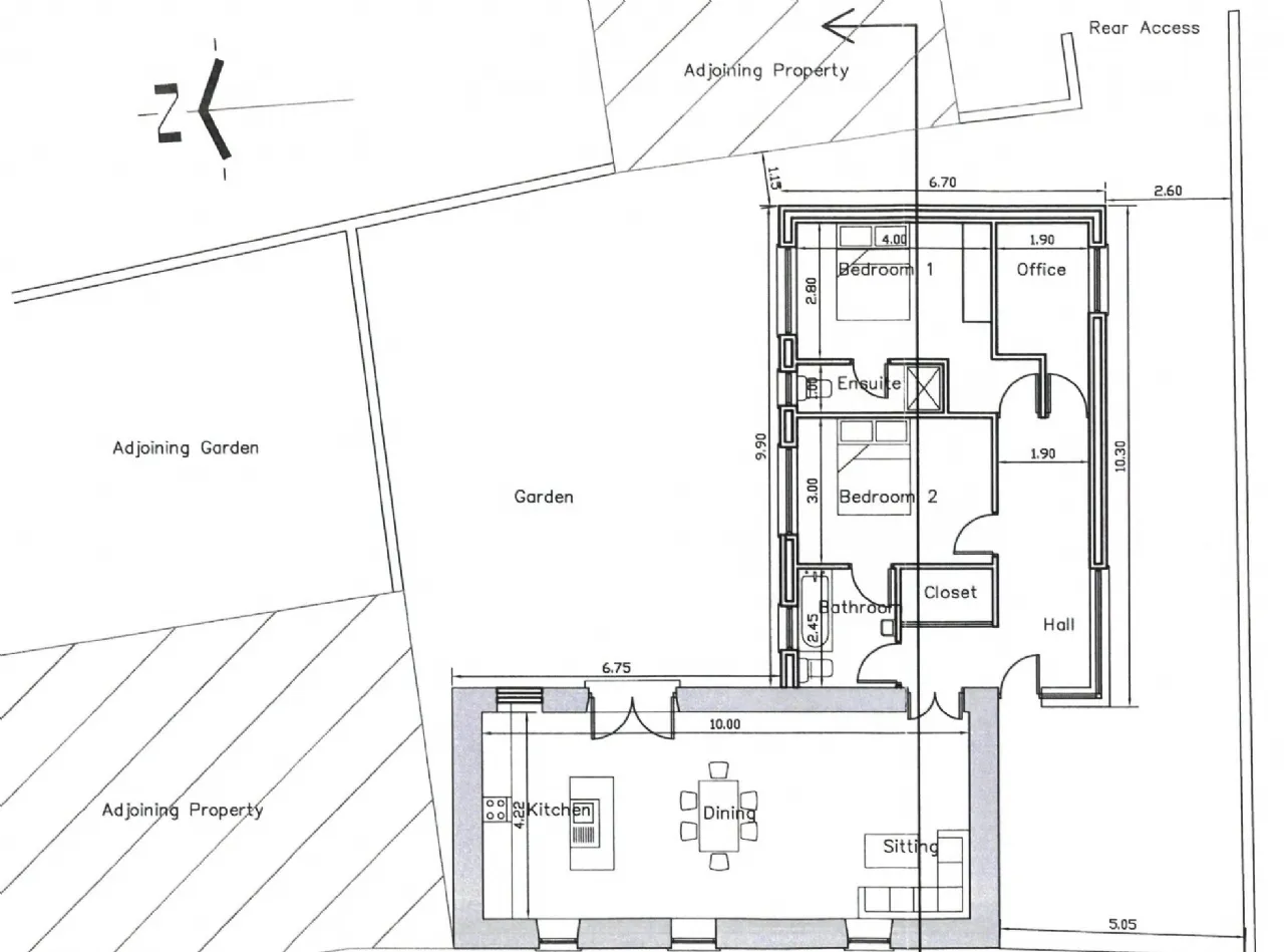
MLW240054_C
Login or Register to access this feature within mySherryFitz
Price to be advised Sold
1 Acres
Open/Hide Content

Advice For Buyers

Buying property is a complicated process. With over 40 years’ experience working with buyers all over Ireland, we’ve researched and developed a selection of useful guides and resources to provide you with the insight you need..

Open/Hide Content

Mortgages

From getting mortgage-ready to preparing and submitting your full application, our Mortgages division have the insight and expertise you need to help secure you the best possible outcome.

Open/Hide Content

Research

Applying in-depth research methodologies, we regularly publish market updates, trends, forecasts and more helping you make informed property decisions backed up by hard facts and information.

Loading...