Thank you
Your message has been sent successfully, we will get in touch with you as soon as possible.
€99,500 Sold
Contact Us
Our team of financial experts are online, available by call or virtual meeting to guide you through your options. Get in touch today
Error
Could not submit form. Please try again later.
Derrinvohil
Borrisokane
Co. Tipperary
E45X897
Description
It is located 4km from Borrisokane, 8km from Terryglass, 11km from Portumna and 20km from Nenagh.
This property may be eligible for the Vacant Property Refurbishment Grant (subject to eligibility). This grant of up to a maximum €50,000 is available for the refurbishment of vacant properties for occupation as a principal private residence and for properties which will be made available for rent.
This grant may be combined with the SEAI Better Energy Home Scheme which could potentially could offer a further €26,750.
This property offers potential in a convenient location and may appeal to those seeking a project.
Features
Drainage by septic tank
2.03 acres
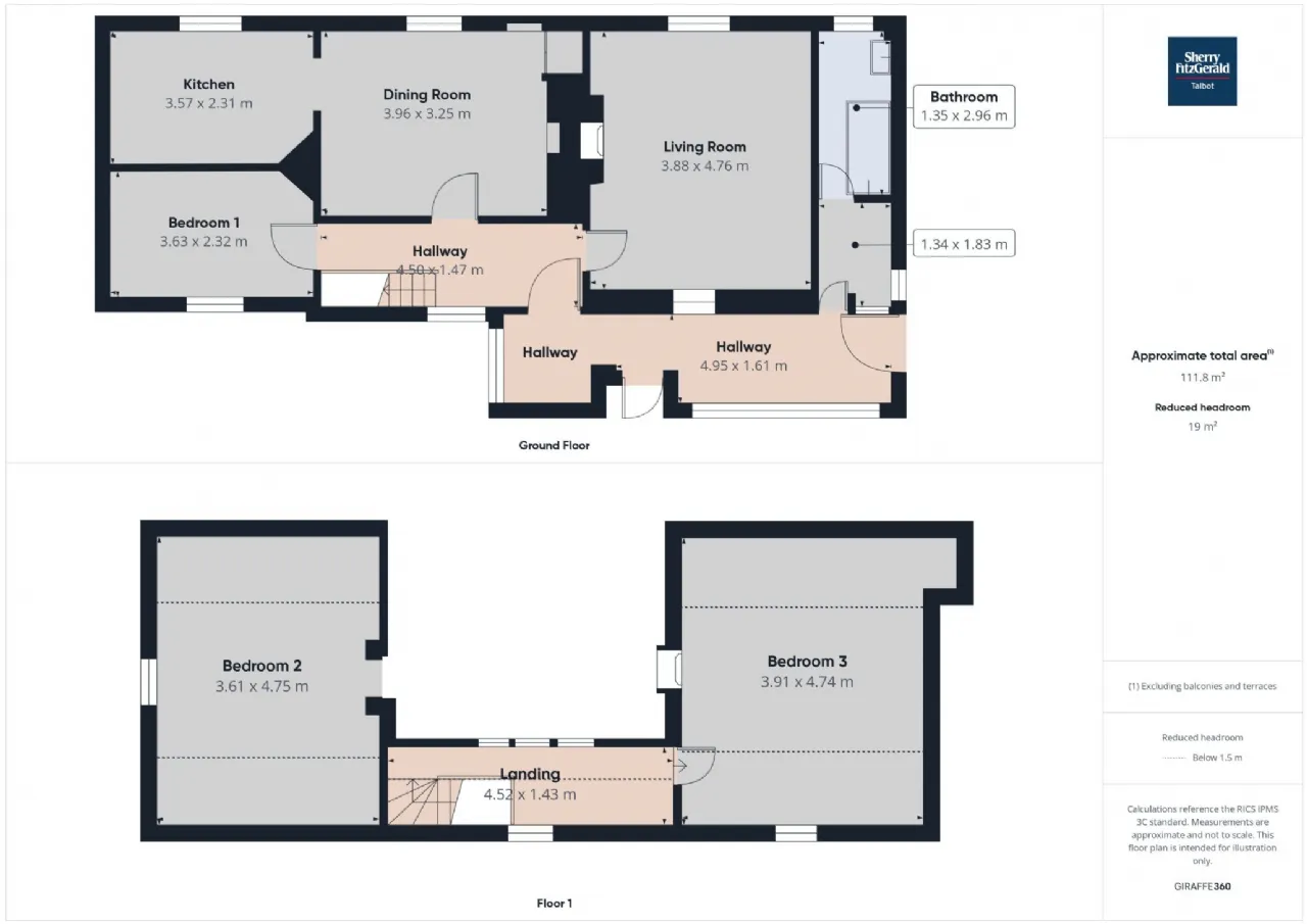
125 sq. m
Rooms
Living Room 4.76m x 3.88m
Dining Room 3.96m x 3.25m
Kitchen 3.57m x 2.31m
Bedroom 1 3.63m x 2.32m
Bathroom 2.96m x 1.35m
Hallway 4.95m x 1.61m
Ground Floor
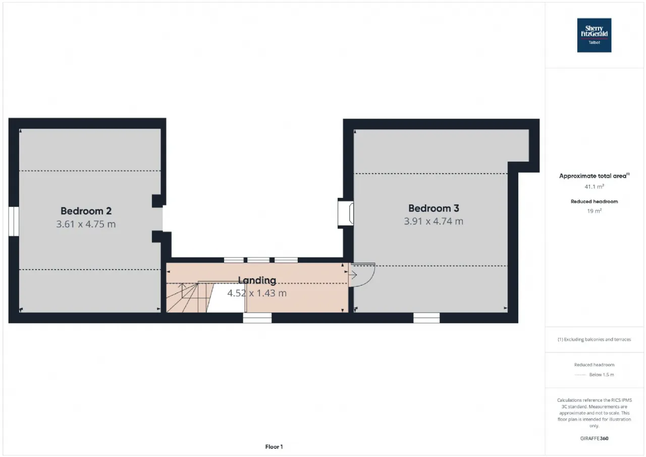
First Floor
Bedroom 2 4.75m x 3.61m
Bedroom 3 4.74m x 3.91m
BER Information
BER Number: 113439012
Energy Performance Indicator: 997.04 kWh/m²/yr
About the Area
Borrisokane (Irish: Buiríos Uí Chéin, meaning "the Burgage of the Cianacht") is a town in County Tipperary, situated on the N52/N65 National secondary road between Nenagh and Portumna and the N52 between Nenagh and Birr. The Ballyfinboy River flows through the town on its way to Lough Derg which is only 12 km to the west. It is a civil parish in the historical barony of Ormond Lower and an Ecclesiastical parish in the Roman Catholic Diocese of Killaloe.
Borrisokane is in the Tipperary North Dáil constituency. The proposed new Dáil constituency of Offaly will incorporate 24 electoral divisions from Tipperary North including Borrisokane. Situated as it is in the Great Plain of Lower Ormond, much of the land around Borrisokane is well suited to farm production. As such, the area has a strong agricultural history which continues to this day.
Get Directions Buying property is a complicated process. With over 40 years’ experience working with buyers all over Ireland, we’ve researched and developed a selection of useful guides and resources to provide you with the insight you need..
From getting mortgage-ready to preparing and submitting your full application, our Mortgages division have the insight and expertise you need to help secure you the best possible outcome.
Applying in-depth research methodologies, we regularly publish market updates, trends, forecasts and more helping you make informed property decisions backed up by hard facts and information.
Need Help?
Our AI Chat is here 24/7 for instant support
Help To Buy Scheme
The property might qualify for the Help to Buy Scheme. Click here to see our guide to this scheme.
First Home Scheme
The property might qualify for the First Home Scheme. Click here to see our guide to this scheme.
