Thank you
Your message has been sent successfully, we will get in touch with you as soon as possible.
€765,000 Sold
Contact Us
Our team of financial experts are online, available by call or virtual meeting to guide you through your options. Get in touch today
Error
Could not submit form. Please try again later.
Alba
Convent Road
Delgany
Co Wicklow
Description
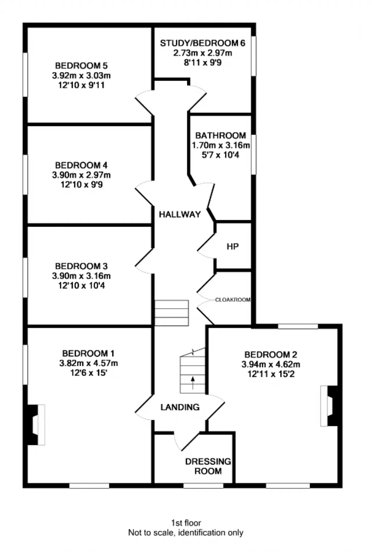
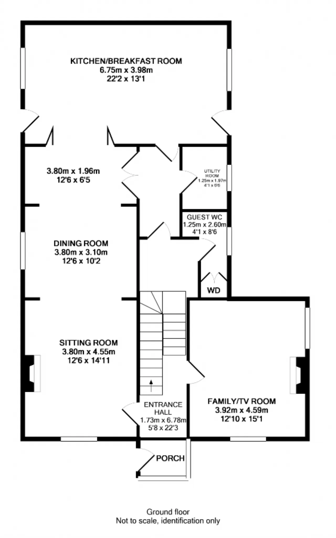
The interconnecting sitting room, dining room and eat in kitchen are ideal for entertaining and there is a separate living room with a snug fireplace just off the hall. Upstairs, a split level gallery landing opens onto five bedrooms, four of them with south/easterly orientation, a dressing room and a study/6th bedroom.
Outside, the gravel avenue can hold a number of cars a barbecue terrace to the west is an afternoon/evening suntrap making full advantage of the big kitchen’s dual aspect and the lawned garden features a timber summer house which can be as useful for leisure as for a home office/studio.
The amenities of nearby Greystones are but minutes’ drive – a great choice of primary and secondary level educational facilities along with good sporting and leisure – an active sailing club, tennis, rugby, football, GAA, bowls, a bridge convention centre not to mention a fantastic selection of golf clubs in close proximity. Commuters are spoilt for choice too Greystones DART and city bound buses Aircoach Direct and easy access to the N11/M11/M50 corridor.
This is a fine example of a thoughtfully extended Period home, in a stunning location, and we strongly recommend viewing.
Contact Us
Our team of financial experts are online, available by call or virtual meeting to guide you through your options. Get in touch today
Thank you
Your message has been sent successfully, we will get in touch with you as soon as possible.
Error
Could not submit form. Please try again later.
Features
Well-proportioned versatile room layout
Sheltered, private, mature gardens
Five bedrooms, study, dressing room
Three reception rooms
Dual aspect eat in kitchen
Polished timber floors? open fireplaces? ceiling cornices
Walk to retail, coffee shops, 2 primary schools, and pub
Garden office/sunroom
Minutes’ drive from Greystones’ amenities and Harbour Marina
BER Information
BER Number: 107325623
Energy Performance Indicator: 292.07
About the Area
Delgany is a peaceful and well-connected village in County Wicklow, between Greystones and Glen of the Downs. It is situated about 25 km south of Dublin city centre. The village is surrounded by wooded hills with many woodland walks, including the Delgany Heritage Trail which offers a tranquil setting that appeals to families, professionals and retirees alike. Despite its peaceful ambiance, the village benefits from excellent connectivity via the N11/M11 and is just minutes away from the dart station at nearby Greystones, making it an ideal base for commuters.
Delgany is also a popular destination for golfers with a host of golf clubs nearby such as; Delgany Golf Club, Greystones Golf Club and Druids Glen Golf Resort.
Get Directions Buying property is a complicated process. With over 40 years’ experience working with buyers all over Ireland, we’ve researched and developed a selection of useful guides and resources to provide you with the insight you need..
From getting mortgage-ready to preparing and submitting your full application, our Mortgages division have the insight and expertise you need to help secure you the best possible outcome.
Applying in-depth research methodologies, we regularly publish market updates, trends, forecasts and more helping you make informed property decisions backed up by hard facts and information.
Need Help?
Our AI Chat is here 24/7 for instant support
Help To Buy Scheme
The property might qualify for the Help to Buy Scheme. Click here to see our guide to this scheme.
First Home Scheme
The property might qualify for the First Home Scheme. Click here to see our guide to this scheme.
