Thank you
Your message has been sent successfully, we will get in touch with you as soon as possible.
€325,000 Sold
Contact Us
Our team of financial experts are online, available by call or virtual meeting to guide you through your options. Get in touch today
Error
Could not submit form. Please try again later.
79 The Richmond
North Brunswick Street
Dublin 7
Description
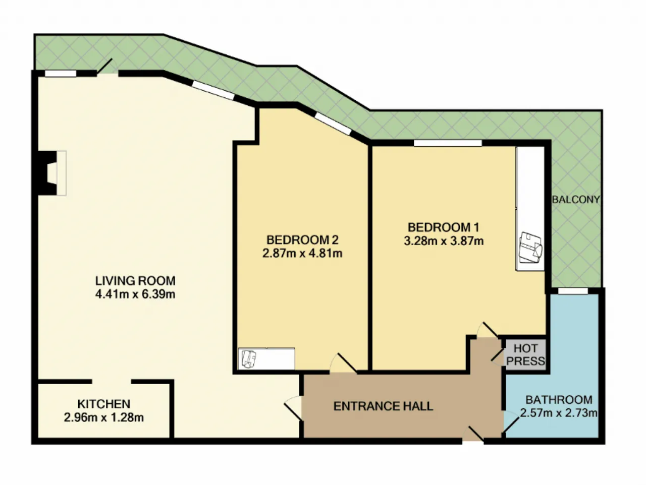
This top floor two-bedroom apartment has been presented to the market ready for immediate occupation and benefits from a designated parking space. The sizeable accommodation boasts a sunny south facing orientation with access to a large balcony off the living area, kitchen, and large windows in the bedrooms along with a family bathroom, hot press and further benefits from a useful floored attic space. This apartment provides a bright and spacious feel throughout.
The accommodation enters through the entrance hall area, with access to a hot press, two double bedrooms and a bathroom to the side as you walk in. The Richmond is a very well-maintained development set behind electric gates and residents benefit from a communal tennis court and roof garden within the grounds.
This would make an ideal purchase for first time buyers and investors. This apartment is in a great location in the city centre. There are many shopping facilities like Capel Street, Jervis Street and Henry Street. There is also a wide range of cafes and restaurants on offer within the area. It is within walking distance to DIT Bolton Street, Grangegorman campus, NCAD, Blackhall Place and the Four Courts just to name a few. It is also within walking distance of both the Red & Green Luas lines.
Contact Us
Our team of financial experts are online, available by call or virtual meeting to guide you through your options. Get in touch today
Thank you
Your message has been sent successfully, we will get in touch with you as soon as possible.
Error
Could not submit form. Please try again later.
Features
Floored Attic space
Designated parking space
Top floor apartment
Communal Roof Garden
Communal Tennis Court
Rooms
Bathroom 2.73m x 2.57m Tiled floor to ceiling, window to rear, bath with shower unit, wc, whb, dimplex fan.
Bedroom 1 3.87m x 3.28m Wood flooring, coving throughout, window to rear, centre rose, built in wardrobe.
Bedroom 2 4.81m x 2.87m Wood flooring, coving throughout, light fixture, centre rose, built in wardrobe, window to rear.
Living Room 6.39m x 4.41m Wood flooring, coving throughout, recessed lighting, fire place, window to rear, door leading to balcony.
Kitchen 2.96m x 1.28m Wood flooring, light fixture, 4 ring electric hob and oven, sss, dishwasher, washer / dryer, fridge.
BER Information
BER Number: 113756332
Energy Performance Indicator: 232.94 kWh/m2/yr
About the Area
No description
Get Directions Buying property is a complicated process. With over 40 years’ experience working with buyers all over Ireland, we’ve researched and developed a selection of useful guides and resources to provide you with the insight you need..
From getting mortgage-ready to preparing and submitting your full application, our Mortgages division have the insight and expertise you need to help secure you the best possible outcome.
Applying in-depth research methodologies, we regularly publish market updates, trends, forecasts and more helping you make informed property decisions backed up by hard facts and information.
Need Help?
Our AI Chat is here 24/7 for instant support
Help To Buy Scheme
The property might qualify for the Help to Buy Scheme. Click here to see our guide to this scheme.
First Home Scheme
The property might qualify for the First Home Scheme. Click here to see our guide to this scheme.
