Thank you
Your message has been sent successfully, we will get in touch with you as soon as possible.
€375,000 Sold
Contact Us
Our team of financial experts are online, available by call or virtual meeting to guide you through your options. Get in touch today
Error
Could not submit form. Please try again later.
28 Merrion Woods
Booterstown
Co Dublin
Description
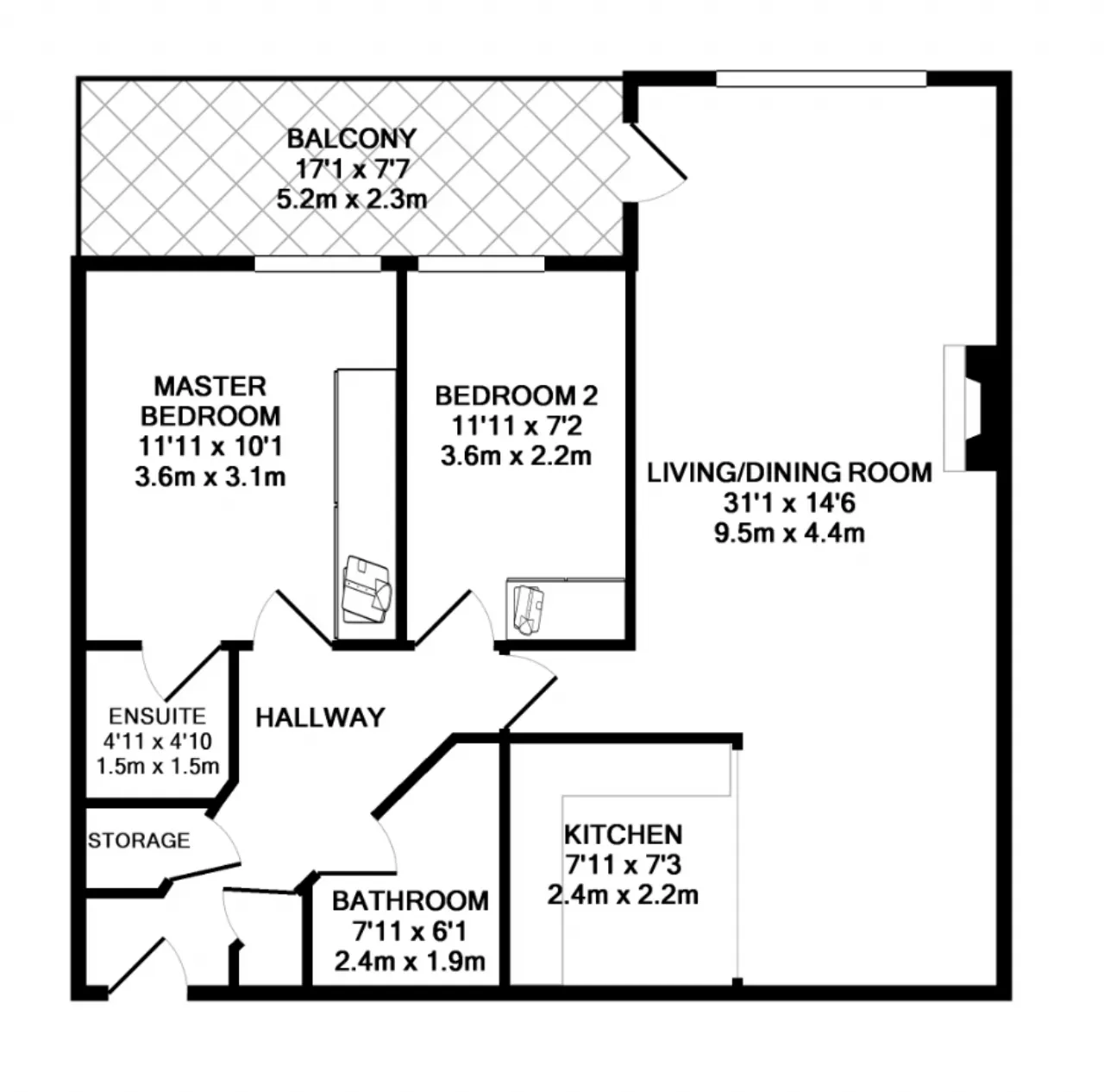
Beautifully decorated throughout with well-appointed accommodation this property is designed with the demands of modern living in mind. Located on the ground floor the accommodation briefly comprises; entrance hall with two excellent storage/hot press’s, large open plan living/dining room with access to the spacious south west facing balcony – perfect for al fresco dining, modern kitchen, a master bedroom with en-suite shower room and a generous double bedroom both of which are fitted with built in wardrobes. A fully tiled family bathroom complete this superb accommodation. In addition, the property benefits from a wonderful south-west facing balcony which overlooks beautiful leafy landscaped gardens.
Number 28 is further enhanced by its superb location and is adjacent to the exclusive St Helens, Radisson Hotel – Merrion Woods is on a quality bus corridor with excellent bus services to the city centre; convenient to the Luas line at Sandyford/Stillorgan and within walking distance of Booterstown and Blackrock. It is located on one of the main arterial routes into Dublin City Centre with easy access to the M50, Dublin Airport and surrounding counties. The area is host to a wealth of amenities including local shops, gourmet restaurants, bars and UCD Belfield to name but a few.
A superb apartment in an unrivaled location – viewing comes advised.
Contact Us
Our team of financial experts are online, available by call or virtual meeting to guide you through your options. Get in touch today
Thank you
Your message has been sent successfully, we will get in touch with you as soon as possible.
Error
Could not submit form. Please try again later.
Features
Two double bedrooms
South-West facing balcony
Secure residential development
Car parking provided
Unrivaled location just off the N11
Rooms
Kitchen 2.4m x 2.2m With tiled flooring, integrated Bosch oven, four ring hob and extractor fan, range of fitted timber wall and floor units, tiled splash back, plumbed for washing machine and integrated whirlpool fridge/freezer.
Master Bedroom 3.6m x 3.1m Spacious double bedroom with solid wood flooring and built in wardrobes. Door to En suite:
Ensuite 1.5m x 1.5m Fully tiled en suite with wc, whb, wall mounted lighting, wall mounted storage cupboard and tiled shower enclosure with power shower.
Bedroom 2 3.6m x 2.2m Generous double bedroom with carpet flooring and built in wardrobes.
Bathroom 2.4m x 1.9m Fully tiled bathroom with whb, wc, bath with overhead shower and telephone shower attachment, wall mounted storage cupboard and wall mounted lighting.
BER Information
BER Number: 108373945
Energy Performance Indicator: 222.68
About the Area
Booterstown is a coastal townland situated in the Dún Laoghaire–Rathdown, about 7 km (4.3 mi) south of the city of Dublin. Booterstown is served by the DART, with a railway station between the stops of Blackrock and Sydney Parade. The townland is also served by two Quality Bus Corridors, Stillorgan and Blackrock, Dublin. A frequent Aircoach service links the area with Dublin Airport. The area is home to Booterstown marsh, a well-known bird sanctuary which has been leased for many years by An Taisce, who have worked to protect it.
Get Directions Buying property is a complicated process. With over 40 years’ experience working with buyers all over Ireland, we’ve researched and developed a selection of useful guides and resources to provide you with the insight you need..
From getting mortgage-ready to preparing and submitting your full application, our Mortgages division have the insight and expertise you need to help secure you the best possible outcome.
Applying in-depth research methodologies, we regularly publish market updates, trends, forecasts and more helping you make informed property decisions backed up by hard facts and information.
Need Help?
Our AI Chat is here 24/7 for instant support
Help To Buy Scheme
The property might qualify for the Help to Buy Scheme. Click here to see our guide to this scheme.
First Home Scheme
The property might qualify for the First Home Scheme. Click here to see our guide to this scheme.
