Thank you
Your message has been sent successfully, we will get in touch with you as soon as possible.
€185,000 Sold
Contact Us
Our team of financial experts are online, available by call or virtual meeting to guide you through your options. Get in touch today
Error
Could not submit form. Please try again later.
9 Jutland Hall
Steamboat Quay
Limerick
V94 FR59
Description
The apartment is presented in turn key condition and ready for immediate occupation. Offered with no onward chain the property comes with a designated parking space, which is located in a secure gated parking area at the bottom of the building.
Located just minutes from the hustle and bustle of the city centre with an excellent selection of waterfront bars and restaurants, cafes and eateries just a moment's stroll from the property. Shops and leisure facilities, along with pleasant riverfront walks around the city are all nearby. Viewing comes highly recommended.
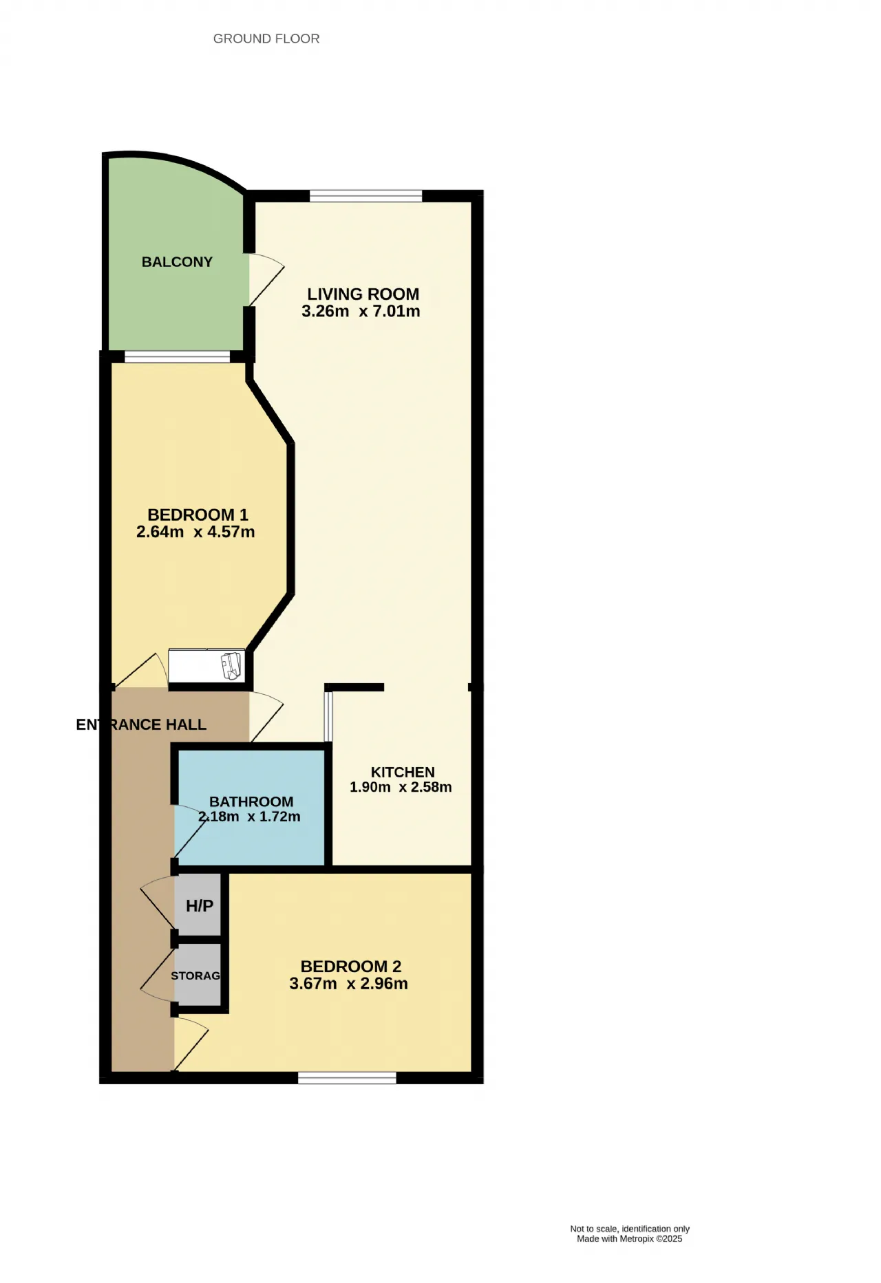
Accommodation: Entrance hall, two bedrooms, bathroom, kitchen, balcony, living room, hot press. Parking space no. 9.
Contact Us
Our team of financial experts are online, available by call or virtual meeting to guide you through your options. Get in touch today
Thank you
Your message has been sent successfully, we will get in touch with you as soon as possible.
Error
Could not submit form. Please try again later.
Features
Overlooking the River Shannon
Designated secure parking space
Spacious interiors
Short walk to the city centre
Balcony
No onward chain
Lift to parking
Rooms
Living Room
Kitchen
Bedroom 1
Bedroom 2
Bathroom
BER Information
BER Number: 118651082
Energy Performance Indicator: 15.22 kgCO2 /m²/yr
About the Area
No description
Get Directions Buying property is a complicated process. With over 40 years’ experience working with buyers all over Ireland, we’ve researched and developed a selection of useful guides and resources to provide you with the insight you need..
From getting mortgage-ready to preparing and submitting your full application, our Mortgages division have the insight and expertise you need to help secure you the best possible outcome.
Applying in-depth research methodologies, we regularly publish market updates, trends, forecasts and more helping you make informed property decisions backed up by hard facts and information.
Need Help?
Our AI Chat is here 24/7 for instant support
Help To Buy Scheme
The property might qualify for the Help to Buy Scheme. Click here to see our guide to this scheme.
First Home Scheme
The property might qualify for the First Home Scheme. Click here to see our guide to this scheme.
