Thank you
Your message has been sent successfully, we will get in touch with you as soon as possible.
€325,000 Sold
Contact Us
Our team of financial experts are online, available by call or virtual meeting to guide you through your options. Get in touch today
Error
Could not submit form. Please try again later.
18 The Pines
Diamond Valley
Upper Dargle Road,
Bray
A98 H638
Description
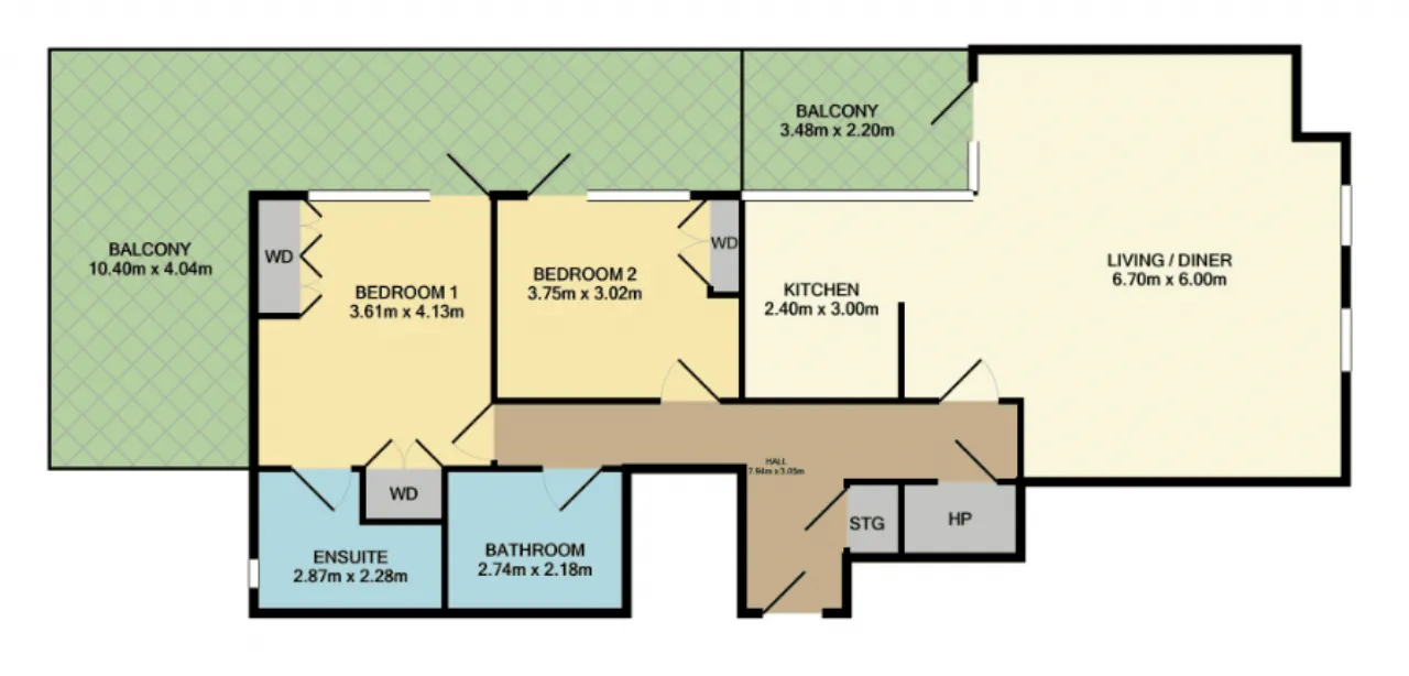
Passing through the communal hallway, the top floor can be accessed via a stairs or lift. The accommodation is set on one level and designed with modern day living in mind. The layout comprises of a lengthy hallway with attractive wide plank wood effect flooring, storage press, and shelved hot-press. To the right of the hall is a superb open plan living, kitchen, diner with access to the smaller balcony. This room is tastefully decorated and of an exceptional size. To the left of the hall is a bathroom and double bedroom with built in wardrobes. The sizable principal bedroom is located at the end of the corridor and incorporates fitted wardrobes and an ensuite shower room. Both bedrooms are naturally bright as a result of floor to ceiling windows and a door off each room provides access out to the south facing balcony. Another asset to this fine property is the amount outdoor space between the two balconies. Measuring 38.5sqm, this really differentiates the penthouse to normal apartment living.
The development is within walking distance of local shops for daily/weekly essentials and is also within easy access of Bray’s main street which offers a variety of supermarkets, eateries and street shops. There are a host of well-regarded junior and secondary schools in the vicinity and there are several sport and leisure facilities nearby. For walking and adventure enthusiasts the People’s Park, charming promenade and Bray Head are all easily accessible. Diamond Valley also benefits from being within close proximity to transport links including the N11/M50 routeway which is a mere 400m, Dublin Bus routes 145, 155, 45A, 84, and the 185 feeder bus stops directly outside the development, bringing residents to the DART station. The Luas Greenline at Bride’s Glen can be reached in a matter of minutes by private transport.
Contact Us
Our team of financial experts are online, available by call or virtual meeting to guide you through your options. Get in touch today
Thank you
Your message has been sent successfully, we will get in touch with you as soon as possible.
Error
Could not submit form. Please try again later.
Features
Lift
Intercom
Wired for an alarm
Gas fire in living room
Electric storage heating
Eir TV and broadband (Sky available)
Ample basement parking
Secure gated development
Generously proportioned throughout
Naturally bright and beautifully presented interior
38.5sqm outdoor space between both balconies
Scenic views of the Sugarloaf and Wicklow mountains
Well maintained communal gardens and common areas
Service charge €1,900 PA, Paula Barrett Management Co.
Rooms
Kitchen 2.40m x 3.00m
Living Dining Room 6.70m x 6.00m
Bathroom 2.74m x 2.28m
Bedroom 1 3.61m x 4.13m
En-Suite 2.87m x 2.28m
Bedroom 2 3.75m x 3.02m
BER Information
BER Number: 113495048
Energy Performance Indicator: 210.91 kWh/m²/yr
About the Area
Bray is known as the Gateway to the Garden of Ireland, and is the longest established seaside town in the country. It is only 19km (12 miles) south of Dublin City and is easily reached by DART, Train, Bus or the N11 road. There is an attractive beach and a spacious esplanade. The scenic Cliff Walk on the eastern side of Bray Head, which continues, into Greystones offers walkers a feast of views on the way.
The town boasts fine period housing, shops, restaurants and evening entertainment. Also available in the immediate locality are golf courses, tennis, fishing, sailing, and horse riding. Another feature of Bray is the variety of amusement centres and carnival attractions, bowling alley, and nightclubs. It really is a stand-alone town with the additional advantage of being on the doorstep of Dublin.
Get Directions Buying property is a complicated process. With over 40 years’ experience working with buyers all over Ireland, we’ve researched and developed a selection of useful guides and resources to provide you with the insight you need..
From getting mortgage-ready to preparing and submitting your full application, our Mortgages division have the insight and expertise you need to help secure you the best possible outcome.
Applying in-depth research methodologies, we regularly publish market updates, trends, forecasts and more helping you make informed property decisions backed up by hard facts and information.
Need Help?
Our AI Chat is here 24/7 for instant support
Help To Buy Scheme
The property might qualify for the Help to Buy Scheme. Click here to see our guide to this scheme.
First Home Scheme
The property might qualify for the First Home Scheme. Click here to see our guide to this scheme.
