Thank you
Your message has been sent successfully, we will get in touch with you as soon as possible.
€325,000 Sold
Contact Us
Our team of financial experts are online, available by call or virtual meeting to guide you through your options. Get in touch today
Error
Could not submit form. Please try again later.
Fionn Uisce
Waterford Road
Clonmel
Co. Tipperary
E91 AP83
Description
This property enjoys old world charm with the benefit of good sized gardens and has been maintained in good condition throughout.
.
.
Features
Attached Garage
Large Gardens
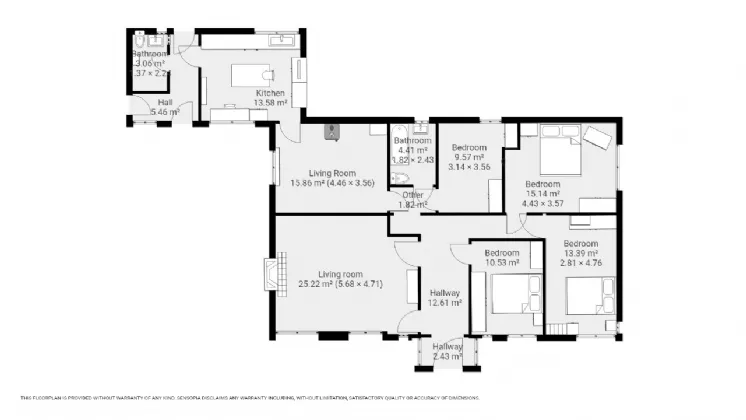
Rooms
Lounge Carpet Floor, Cast Iron and Marble Fireplace
Kitchen Fully Fitted, Wooden Floor.
W.C. Half Tiled
Bedroom 1 Carpet Floor
Bedroom 2 Carpet Floor, Built in Wardrobes
Bedroom 3 Carpet Floor
Bedroom 4 Carpet Floor
Bathroom Fully Tiled, with Bath
BER Information
BER Number: 117628271
Energy Performance Indicator: 315.97 kWh/m²/yr
About the Area
Clonmel (Irish: Cluain Meala) is the largest town in county Tipperary. In recent times Clonmel and its environs has become the home to many large multi-national companies, particularly in the medical sector. Bulmers cider is brewed in a complex two kilometres east of the town, and a small orchard serving the brewery can be seen from the road when approaching Clonmel from that direction.
Get Directions Buying property is a complicated process. With over 40 years’ experience working with buyers all over Ireland, we’ve researched and developed a selection of useful guides and resources to provide you with the insight you need..
From getting mortgage-ready to preparing and submitting your full application, our Mortgages division have the insight and expertise you need to help secure you the best possible outcome.
Applying in-depth research methodologies, we regularly publish market updates, trends, forecasts and more helping you make informed property decisions backed up by hard facts and information.
Need Help?
Our AI Chat is here 24/7 for instant support
Help To Buy Scheme
The property might qualify for the Help to Buy Scheme. Click here to see our guide to this scheme.
First Home Scheme
The property might qualify for the First Home Scheme. Click here to see our guide to this scheme.
