Thank you
Your message has been sent successfully, we will get in touch with you as soon as possible.
€400,000
Contact Us
Our team of financial experts are online, available by call or virtual meeting to guide you through your options. Get in touch today
Error
Could not submit form. Please try again later.
San Miguel
9 St. Michaels Court
Gorey
Co. Wexford
Y25K594
Description
The ground floor features a spacious sitting room perfect for relaxing or entertaining guests. The kitchen/dining room features units at eye and waist level and rear door access. There is a bedroom on the ground floor and also dining room, which could be used as a fourth bedroom or home office, depending on your needs. Upstairs, there are a further two bedrooms and a family bathroom
Outside, the tarmac driveway provides off-street parking for multiple cars, while the paved backyard offers a low-maintenance outdoor space that is perfect for entertaining, dining al fresco, or enjoying a quiet morning in the sun.
This is a very special home which has been lovingly cared for by its present owners.
Located in a desirable part of Gorey, close to local amenities, schools, and transport links, this property combines practicality with style. Whether you're a first-time buyer or a growing family, 9 St. Michael's Court is a must-see!
Features
• Spacious and bright living areas, including a well-appointed kitchen and a generous sitting room.
• Desirable location in Gorey, only minutes walking distance from the town centre
• Low maintenance garden.
• O.F.C.H.
• Small cul-de-sac development with all services taken in charge
• Solid block shed in rear garden.
Rooms
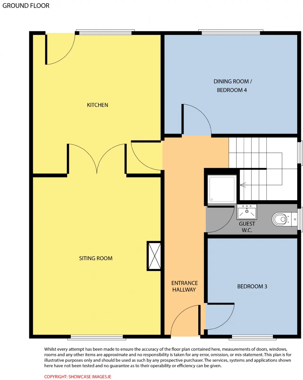
Entrance Hallway 5.28m x 1.13m at widest point, solid wood flooring.
Sitting Room 4.68m x 3.71m solid wood flooring, feature fireplace and double doors to Kitchen/Dining.
Kitchen/Dining 4.05m x 3.73m tiled flooring and backsplash, fitted kitchen units, electric oven and hob, dishwasher, fridge, dryer, microwave and door to rear garden.
Dining Room/Bedroom 4 2.89m x 3.88m laminate wood flooring.
Guest WC 0.90m x 2.62m tiled flooring and walls, WC, Triton T90 electric shower and wash hand basin.
Bedroom 3 2.89m x 2.58m laminate wood flooring and built-in wardrobe.
FIRST FLOOR
Landing 2.07m x 1.47m at widest point, carpet flooring.
Bedroom 2 2.69m x 4.35m laminate wood flooring and built-in wardrobes.
Bathroom 2.81m x 1.97m solid wood flooring, tiled bath, shower, WC and wash hand basin.
Master Bedroom 1 3.86m x 4.35m at widest point, laminate wood flooring, built-in wardrobes.
BER Information
BER Number: 118653872
Energy Performance Indicator: 196.64
About the Area
Ask anyone about North Wexford in the Sunny South East and you will get a flood of loving sentiment and nostalgia. It is no surprise that over 35 businesses chose North Wexford, and many more joining up on a daily basis. Over 35 individual businesses have signed up for the 'Voucher' in Gorey. This is a unique venture with vouchers able to be redeemed at any one of the participating shops, restaurants and hotels.
Aside from its proximity to Dublin, residents enjoy the availablility of amenities and facilities in the town itself, while also experiencing the enjoyment of the nearby sprawling countryside, with its open fields and pastoral landscape, teeming with rich vegetation and wildlife.
Get Directions Buying property is a complicated process. With over 40 years’ experience working with buyers all over Ireland, we’ve researched and developed a selection of useful guides and resources to provide you with the insight you need..
From getting mortgage-ready to preparing and submitting your full application, our Mortgages division have the insight and expertise you need to help secure you the best possible outcome.
Applying in-depth research methodologies, we regularly publish market updates, trends, forecasts and more helping you make informed property decisions backed up by hard facts and information.
Need Help?
Our AI Chat is here 24/7 for instant support
Help To Buy Scheme
The property might qualify for the Help to Buy Scheme. Click here to see our guide to this scheme.
First Home Scheme
The property might qualify for the First Home Scheme. Click here to see our guide to this scheme.
