Thank you
Your message has been sent successfully, we will get in touch with you as soon as possible.
7 North Link Business Park
Coes Road
Dundalk
Description
The site is located within the Northlink Retail Park at Coe’s Road Dundalk, beside Wogan's Interiors. The Northlink Park is strategically positioned fronting the Dundalk Inner Relief Road on the eastern side of Dundalk and approximately 4 kilometres from the M1 Motorway. The Coes Road location is regarded as Dundalk’s primary industrial and retail warehousing area.
Other occupiers within the Park include Wogans Interiors, Colourtrend Paint, Franks Furniture and Franks Carpets and National Tile.
Description:
Northlink Retail Park is a modern high specification purpose built retail park with a long established proven trading record in the Dundalk Area. It occupies a high profile position on the Inner Relief Road and also has frontage and access from the Coes Road.
Accomodation
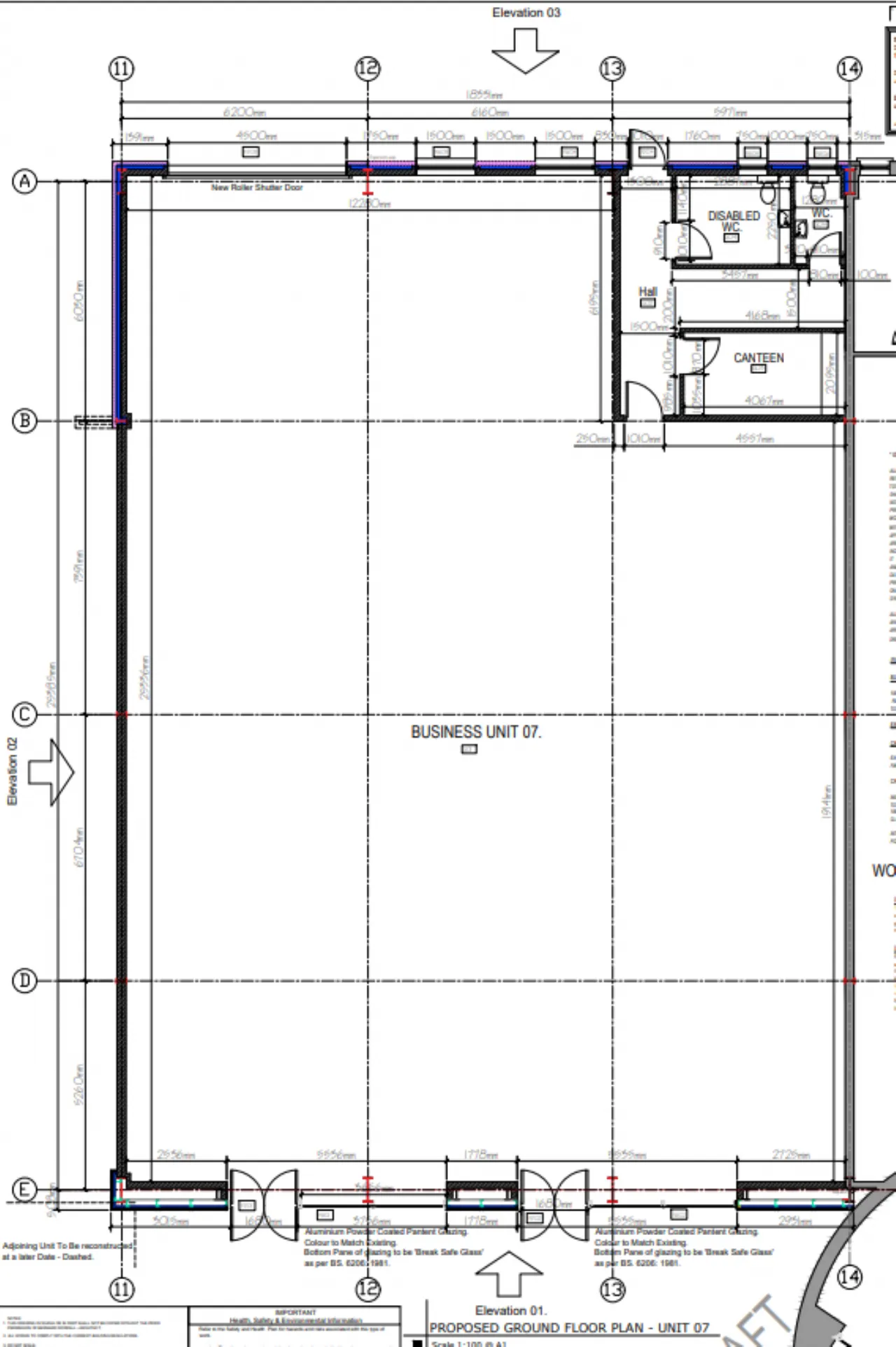
Unit 7 is currently undergoing construction and will comprise a new, modern ground floor unit. It will extend to an approximate gross internal floor area: 5,000 sq.m. / 464.5 sq.ft. with full galzing elevation onto the main road. The building will be approx. 6.7m high at eaves (8m at ridge) which also gives the potential of adding a part or full mezzanine floor for additional space.
Full details available upon request.
About the Area
Dundalk is the county town and administrative capital of County Louth, situated where the Castletown River flows into Dundalk Bay. The town is close to the border with Northern Ireland and equidistant from Dublin and Belfast. The town's name, which was historically written as Dundalgan, has associations with the mythical warrior Cú Chulainn. In 2003 Dundalk was amongst nine cities and towns to be designated Gateway status in the Irish Government's National Spatial Strategy.
Get Directions Buying property is a complicated process. With over 40 years’ experience working with buyers all over Ireland, we’ve researched and developed a selection of useful guides and resources to provide you with the insight you need..
From getting mortgage-ready to preparing and submitting your full application, our Mortgages division have the insight and expertise you need to help secure you the best possible outcome.
Applying in-depth research methodologies, we regularly publish market updates, trends, forecasts and more helping you make informed property decisions backed up by hard facts and information.
Need Help?
Our AI Chat is here 24/7 for instant support
Help To Buy Scheme
The property might qualify for the Help to Buy Scheme. Click here to see our guide to this scheme.
First Home Scheme
The property might qualify for the First Home Scheme. Click here to see our guide to this scheme.
