Thank you
Your message has been sent successfully, we will get in touch with you as soon as possible.
€325,000 Sold
4 Bindon Street
Ennis
Co. Clare.
V95 P628
Description
There is approximately a net internal office space of 50sqm on each of the ground floor, the first floor and the second floor. The third floor had previously been used as residential accommodation and currently houses a number of rooms that could easily be converted for additional office space. The basement is currently being used for storage but could also be converted for office use. There is ample on street parking at the front.
BER Exempt
Features
In the heart of the professional services district
Potential to be converted back into a residence
Rates €5282 approx. per annum.
Rooms
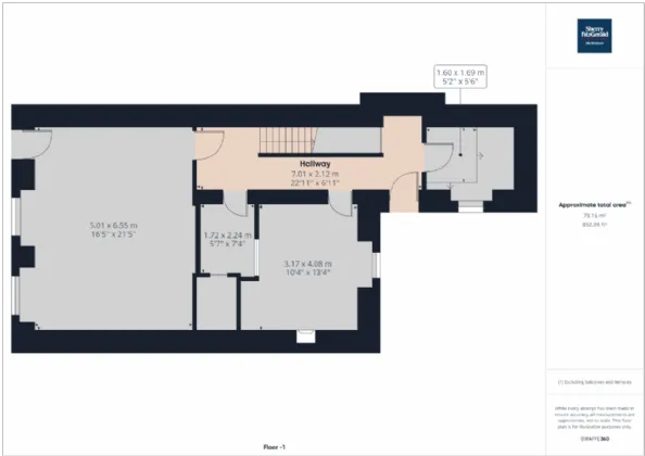
Front Room 6.70m x 4.88m
Small Room 2.13m x 2.59m
Back Room 4.27m x 3.05m
Files Room 2.74m x 1.83m
Corridor 2.13m x 7.01m
GROUND FLOOR RETURN
WC 0.93m x 3.00m
Bathroom 1.90m x 1.50m
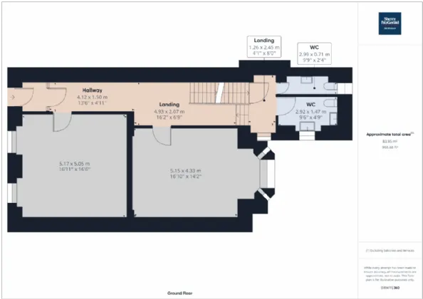
GROUND FLOOR
Back Office 4.40m x 5.20m
Entrance Hall 1.45m x 11.00m
Front Office 5.00m x 5.20m
FIRST FLOOR RETURN
Reception 2.80m x 3.00m
FIRST FLOOR
Office 1 4.12m x 3.80m
Office 2 (Front) 6.70m x 5.20m
Landing 4.70m x 1.50m
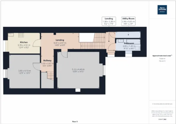
SECOND FLOOR RETURN
Hot Press 0.80m x 3.00m
SECOND FLOOR
Kitchen 3.30m x 3.80m
Office 2 4.40m x 5.16m
Rear Landing 4.70m x 1.50m
THIRD FLOOR - ATTICK
Living Room 3.40m x 5.30m
Bedroom 1 3.25m x 5.30m
Bedroom 2 3.30m x 3.80m
OVERALL APPROX SQM 286.77m2
About the Area
Strategically located between the University cities of Limerick and Galway, and within 20 mins of Shannon International Airport, the town of Ennis has enjoyed significant population growth and prosperity in recent years. Ennis is home to an abundance of amenities and facilties, making it a centre of employment, not just for the local population, but also for those in the surrounding localities.
Ennis was founded by the Franciscan Friars in 1240 A.D. as a centre of learning, and it has now progressed into a technology focused "Information Age Town". Ennis is the capital town of Clare and as such is the centre of a County steeped in traditional music and sport.
Get Directions Buying property is a complicated process. With over 40 years’ experience working with buyers all over Ireland, we’ve researched and developed a selection of useful guides and resources to provide you with the insight you need..
From getting mortgage-ready to preparing and submitting your full application, our Mortgages division have the insight and expertise you need to help secure you the best possible outcome.
Applying in-depth research methodologies, we regularly publish market updates, trends, forecasts and more helping you make informed property decisions backed up by hard facts and information.
Need Help?
Our AI Chat is here 24/7 for instant support
Help To Buy Scheme
The property might qualify for the Help to Buy Scheme. Click here to see our guide to this scheme.
First Home Scheme
The property might qualify for the First Home Scheme. Click here to see our guide to this scheme.
