Thank you
Your message has been sent successfully, we will get in touch with you as soon as possible.
€575,000
Former Padre Pio Nursing Home
Carrigeen
Cappoquin
Co Waterford
P51XH68
Description
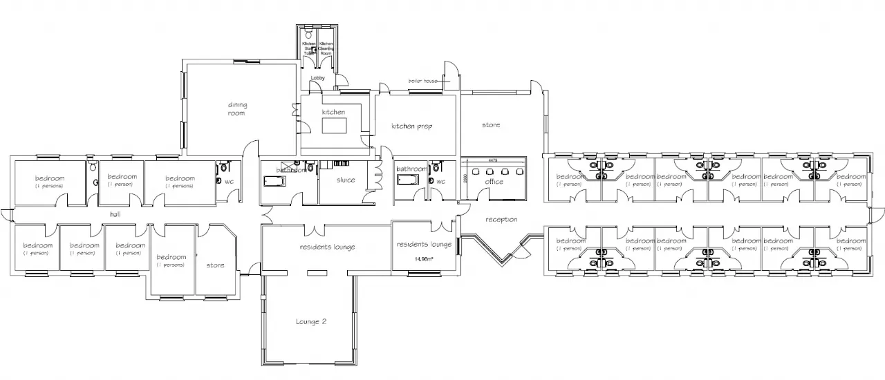
This extensive building extends to over 6,500 sq.ft and incorporates 19 bedrooms and several ancillary rooms inc lounge, dining room, chapel, kitchen etc.
Standing on 2 acres approx the site has an extensive car park and land to the rear with further scope for development subject to planning.
This is a unique opportunity to purchase a substantial property that has several possible future uses.
For further information contact Cormac Curran on 058 23444.
Features
On the outskirts of Cappoquin town - footpath to town.
Massive internal space - over 6,500 sq.ft.
Standing on 2 acres with a fields to rear.
Large tarmacadam car park.
Huge potential.
About the Area
Cappoquin is a town in west Waterford, on the Blackwater river at the junction of the N72 national secondary road and the R669 regional road. It is positioned on a bend in the river and nestles at the foot of the Knockmealdown Mountains. Popular local pursuits include Gaelic games, rowing, and fishing. Within the town centre employment is provided by a variety of shops and businesses typical of a rural Irish town. Some of the largest individual local employers are located on the Cappoquin industrial estate. Surrounded by fertile fields, farming and agriculture plays an important role in the town, providing employment on farms and orchards scattered around the area.
Get Directions Buying property is a complicated process. With over 40 years’ experience working with buyers all over Ireland, we’ve researched and developed a selection of useful guides and resources to provide you with the insight you need..
From getting mortgage-ready to preparing and submitting your full application, our Mortgages division have the insight and expertise you need to help secure you the best possible outcome.
Applying in-depth research methodologies, we regularly publish market updates, trends, forecasts and more helping you make informed property decisions backed up by hard facts and information.
Need Help?
Our AI Chat is here 24/7 for instant support
Help To Buy Scheme
The property might qualify for the Help to Buy Scheme. Click here to see our guide to this scheme.
First Home Scheme
The property might qualify for the First Home Scheme. Click here to see our guide to this scheme.
