Thank you
Your message has been sent successfully, we will get in touch with you as soon as possible.
€395,000 Sold
Contact Us
Our team of financial experts are online, available by call or virtual meeting to guide you through your options. Get in touch today
Error
Could not submit form. Please try again later.
38 Ballymacaula View
Ennis
Co. Clare
V95 T9PN
Description
Inside, the bright and spacious hallway welcomes you into a thoughtfully designed interior with detailed wall paneling and contemporary style colour schemes throughout. The main living room features a large front aspect window which overlooks the communal green area to the front and premium laminate timber flooring, creating an inviting atmosphere of comfort and homeliness. From here, a double opening seamlessly connects to an open-plan kitchen dining area, showcasing a contemporary, well-appointed kitchen complete with integrated appliances and a beautiful Belfast sink. Double patio doors from the dining space open to the rear patio which has a low maintenance pebbledash finish and two large timber garden sheds (not included in the sale). Adjacent to the kitchen, the utility room offers matching cabinetry and is plumbed for a washing machine. The ground floor is completed by a convenient downstairs WC.
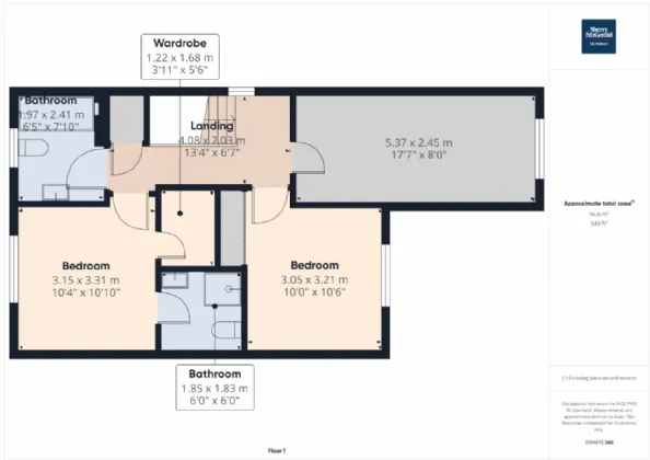
Upstairs, the accommodation comprises three double bedrooms, all with built in wardrobes and the master bedroom benefits from an en-suite bathroom & walk-in wardrobe. The main bathroom completes the first-floor layout, featuring modern fixtures and finishes.
Externally, the site is meticulously maintained. The front driveway is finished with tarmac and bordered by brick detailing, with lawns on either side. The rear garden is designed with a low maintenance pebbledash garden and the afore mentioned timber sheds. The garden is enclosed by a block boundary wall and timber panelling, offering privacy and security.
This property represents a rare opportunity to acquire a stylish, energy-efficient A-rated home in a prime residential location in the heart of Ennis. An ideal choice for families or those seeking a quality home in a vibrant community.
Features
Prime residential development
A-rated home
New build in 2022
Precast concrete floors
Quick access to the M17 and M18 motorways
Short distance from Ennis town centre
Air to water heating
Enclosed rear garden
Rooms
Kitchen Dining Room Polished porcelain tiles, a contemporary, well-appointed kitchen complete with integrated appliances and a Belfast sink. Double patio doors from the dining space open to the rear patio. Door off the kitchen leads to the utility room at the rear of the property.
Utility Room The utility room offers matching cabinetry and is plumbed for a washing machine & dryer.
Living Room The living room features a large front aspect window which overlooks the communal green area to the front and premium laminate timber flooring, creating an inviting atmosphere of comfort and homeliness.
WC Fully tiled throughout, WC, WHB and side aspect frosted window.
Landing Carpet flooring, doors to three bedrooms & main bathroom, side aspect window and attic access via stira.
Master Bedroom Laminate timber flooring, feature front aspect window, doors to walk-in wardrobe & en-suite.
En-Suite Fully tiled throughout, WC, pedestal unit housing the WHB, corner shower unit and side aspect frosted window.
Walk-in wardrobe Laminate flooring, shelving and hanging rails.
Bedroom 2 Laminate timber flooring, extensive built in wardrobe space and rear aspect window.
Bedroom 3 Laminate timber flooring, extensive built in wardrobes and rear aspect window.
Bathroom Fully tiled throughout, WC, pedestal unit housing the WBH, heated towel rail, built in bath with shower and shower panel, frosted front aspect window,
BER Information
BER Number: 115014128
Energy Performance Indicator: 44.49 kWh/m²/yr
About the Area
Strategically located between the University cities of Limerick and Galway, and within 20 mins of Shannon International Airport, the town of Ennis has enjoyed significant population growth and prosperity in recent years. Ennis is home to an abundance of amenities and facilties, making it a centre of employment, not just for the local population, but also for those in the surrounding localities.
Ennis was founded by the Franciscan Friars in 1240 A.D. as a centre of learning, and it has now progressed into a technology focused "Information Age Town". Ennis is the capital town of Clare and as such is the centre of a County steeped in traditional music and sport.
Get Directions Buying property is a complicated process. With over 40 years’ experience working with buyers all over Ireland, we’ve researched and developed a selection of useful guides and resources to provide you with the insight you need..
From getting mortgage-ready to preparing and submitting your full application, our Mortgages division have the insight and expertise you need to help secure you the best possible outcome.
Applying in-depth research methodologies, we regularly publish market updates, trends, forecasts and more helping you make informed property decisions backed up by hard facts and information.
Need Help?
Our AI Chat is here 24/7 for instant support
Help To Buy Scheme
The property might qualify for the Help to Buy Scheme. Click here to see our guide to this scheme.
First Home Scheme
The property might qualify for the First Home Scheme. Click here to see our guide to this scheme.
