Thank you
Your message has been sent successfully, we will get in touch with you as soon as possible.
€265,000 Sold
Contact Us
Our team of financial experts are online, available by call or virtual meeting to guide you through your options. Get in touch today
Error
Could not submit form. Please try again later.
32 Cois na Ce
Cappa Road
Kilrush
Co. Clare.
V15 FW93
Description
Built circa 2003, this turnkey property offers spacious accommodation.
The entrance hallway is bright and finished with warm cherrywood flooring that creates a welcoming atmosphere. To the front of the home is a generous, light-filled living room featuring an open fireplace and double doors that open into the kitchen/dining area.
Located to the rear of the property, the fully fitted kitchen, this space overlooks the sunny south-facing garden and is finished with tiled flooring. Just off the kitchen, a large utility room adds everyday practicality, complete with countertop space and overhead cabinets for additional storage. From here, there is access to a downstairs bathroom equipped with a toilet, wash hand basin, and shower.
Also on the ground floor is a convenient large front-facing bedroom, fitted with sliding mirrored wardrobes—ideal as a guest room, home office, or for multi-generational living.
Upstairs, you'll find three bedrooms, one of which features an ensuite bathroom. The south-facing rear bedroom enjoys an abundance of natural light, while the two front-facing bedrooms offer views of the nearby marina.
But what truly sets this home apart is its incredible location. Just a short stroll brings you to Cappagh Pier and the Blue Flag beach at Cappa, with a children’s playground less than five minutes away. Enjoy unforgettable coastal walks from Cappa to Aylevarroo, offering panoramic views over Scattery Island. The local marina provides boat tours and the chance to spot dolphins on your doorstep — a rare treat and a true testament to the lifestyle on offer here.
Whether you're a first-time buyer, a growing family, a retiree, or simply seeking a peaceful place by the sea, this property offers the perfect balance of comfort, space, and a setting that is simply second to none.
Features
Within walking distance to Kilrush town center and all amenities
4 bed 3 bath
South facing rear garden
Turn key condition
Oil fired central heating
Marina views
Rooms
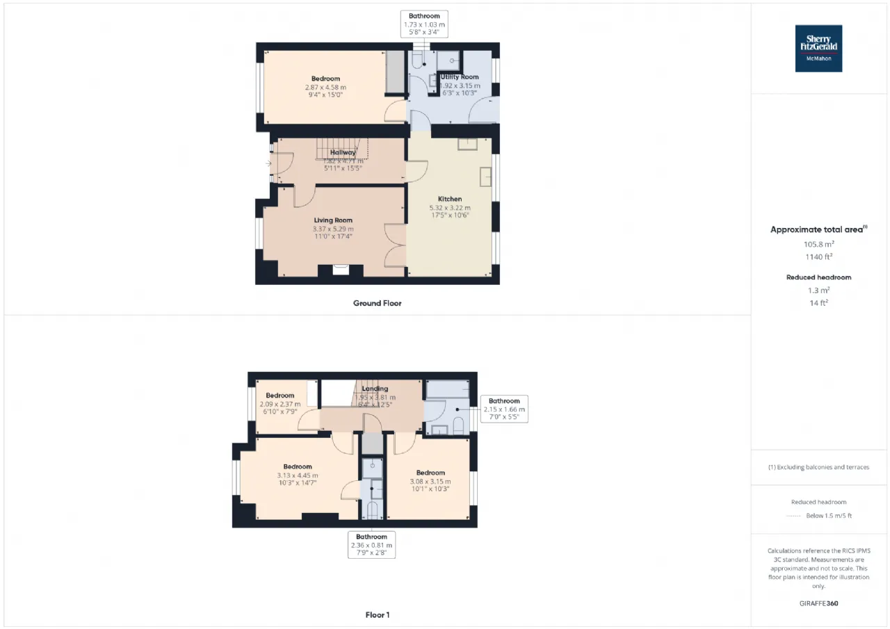
Living Room 3.37 x 5.29 Cherrywood flooring, open fire place, front aspect bay window
Kitchen 5.32 x 3.22 Tiled flooring, open plan kitchen with plenty of natural light south facing kitchen.
Utility Room 1.92 x 3.15 Spacious utility room, tiled flooring, counter tops and overhead cabinets
GF Bedroom 1 2.87 x 4.58 Laminate flooring, front aspect window, built in sliding mirrored wardrobes
GF Bathroom 1.73 x 1.03 Tiled flooring, wash hand basin, toilet and shower
First Floor
Landing 1.95 x 3.81 Laminate flooring, bright and spacious landing
Bedroom 2 3.08 x 3.15 Laminate flooring, rear aspect window, bright and spacious
Main Bathroom 2.15 x 1.66 Fully tiled, bath, wash hand basin and toilet
Master Bedroom 3.13 x 4.45 Laminate flooring, front aspect window, ensuite bathroom
Ensuite 2.36 x 0.81 Shower, wash hand basin and toilet
Bedroom 3 2.09 x 2.37 Laminate flooring, front aspect window
BER Information
BER Number: 118579002
Energy Performance Indicator: 223.63 kWh/m²/yr
About the Area
Situated at the mouth of the Shannon Estuary, Kilrush is part of one of the premier tourism routes along the West Coast, famed for its diversity and quality of life. Kilrush and its Marina are located at the heart of one of Ireland's special interest marine tourism areas, making it a maritime town with an already strong maritime tradition.
Locals enjoy the privacy and tranquillity of the seaside, while never far from modern day amenities and facilities. Aside from the convenient location, it is the beauty and vibrancy of the natural landscape that attracts buyers to the area
Get Directions Buying property is a complicated process. With over 40 years’ experience working with buyers all over Ireland, we’ve researched and developed a selection of useful guides and resources to provide you with the insight you need..
From getting mortgage-ready to preparing and submitting your full application, our Mortgages division have the insight and expertise you need to help secure you the best possible outcome.
Applying in-depth research methodologies, we regularly publish market updates, trends, forecasts and more helping you make informed property decisions backed up by hard facts and information.
Need Help?
Our AI Chat is here 24/7 for instant support
Help To Buy Scheme
The property might qualify for the Help to Buy Scheme. Click here to see our guide to this scheme.
First Home Scheme
The property might qualify for the First Home Scheme. Click here to see our guide to this scheme.
