Thank you
Your message has been sent successfully, we will get in touch with you as soon as possible.
€380,000
Contact Us
Our team of financial experts are online, available by call or virtual meeting to guide you through your options. Get in touch today
Error
Could not submit form. Please try again later.
Amalfi Court
Lisnennan
Letterkenny
Co. Donegal
Description
Located just 2km from Letterkenny town centre offering easy access to all local amenities.
This contemporary development of only 3 dwellings are designed for modern living in mind and comprises thoughtfully designed and well-laid-out accommodation.
This development qualifies for both the Help to Buy
For eligible purchasers, the house qualifies under the Help To Buy Scheme. The amount you can claim is 10% of the purchase price, which is capped at €30,000.
Enjoy the benefits of a modern, energy efficient home in a vibrant new community .
‘Amalfi Court’ is the perfect choice for every type of buyer from commuting professionals to growing families to downsizers
looking for a great home in a convenient location.
Features
• ‘A’ Energy Rated Houses
• Air to water heating system - underfloor heating on ground floor, radiators on first floor
• Triple glazed upvc windows
• Quality fitted kitchens (choice-can upgrade and pay the extra to supplier)
• PC allowance towards appliances (Terms & Conditions apply)
• Floor coverings Throughout - High quality tiled flooring in kitchen /bathroom/ensuite
• High quality laminated flooring in hallway, living room and bedrooms
• Quality Sanitary ware / Quality Internal Doors
• Walls & Ceilings Painted white
• All tiling in showers and around bath
• Electric Vehicle Charging Point Provision
• Homebond Guarantee
• Tarmac Driveway
• Lawns sown in seed
• Fence boundary to side and rear of property
• Extensively Landscaped Pleasant Open Spaces
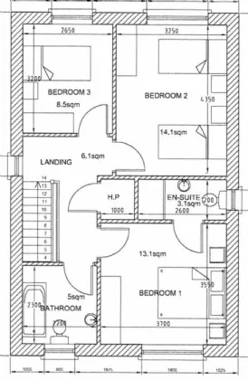
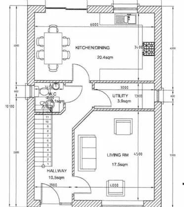
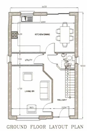
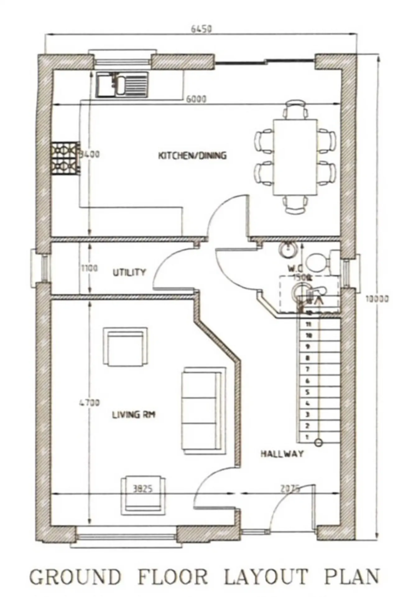
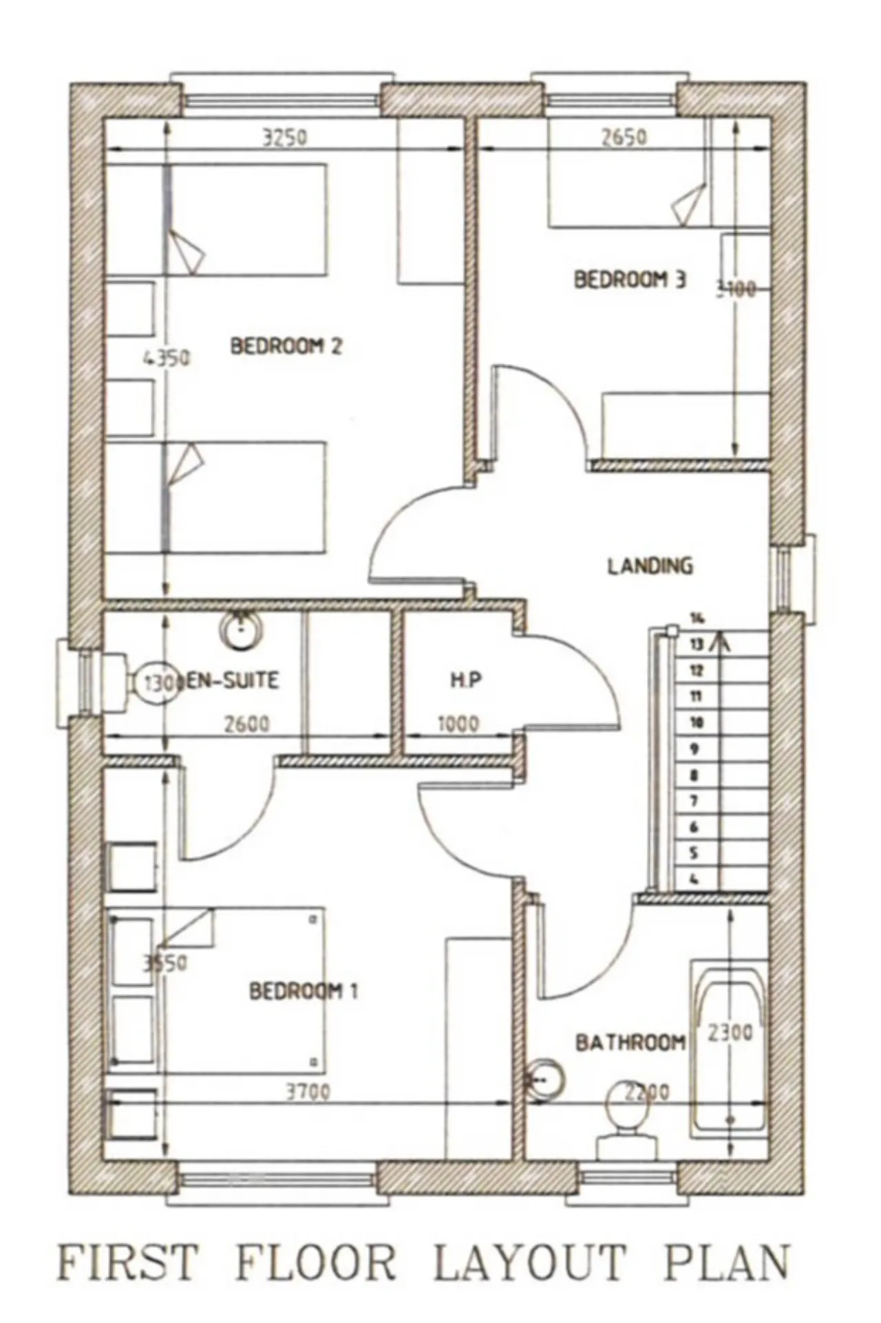
Rooms
Living Room 4.7 x 3.8
Kitchen/Dining area 6.0 x 3.4 Double doors leading to rear garden
Utility Room 3.5 x 1.1
WC 1.5 x 1.5 Comprising wc and wash hand basin
Landing Hotpress
Bedroom 1 3.7 x 3.5
Ensuite 2.6 x 1.3 Comprising w.c, wash hand basin and electric shower.
Bedroom 2 4.3 x 3.2
Bedroom 3 3.1 x 2.6
Bathroom 2.3 x 2.2 Comprising wc, wash hand basin and bath
About the Area
Letterkenny is the largest and most populous town in County Donegal, located on the River Swilly. Along with the nearby city of Derry, it forms the major economic core of the north-west of Ireland. Letterkenny is renowned for its night-life. It has been identified as one of Europe's fastest growing towns by business owners. The town's major employers include the General Hospital, Pramerica, and the Department of Social and Family Affairs. There are 5 primary schools and 4 secondary schools in the town.
Letterkenny is well served by public transport. Bus Éireann and private coach companies operate a number of services to Dublin, Derry, and Galway. Two national primary roads serve the town: the N13 from the South (Stranorlar) and the N14 from the East (Lifford).
Get Directions Buying property is a complicated process. With over 40 years’ experience working with buyers all over Ireland, we’ve researched and developed a selection of useful guides and resources to provide you with the insight you need..
From getting mortgage-ready to preparing and submitting your full application, our Mortgages division have the insight and expertise you need to help secure you the best possible outcome.
Applying in-depth research methodologies, we regularly publish market updates, trends, forecasts and more helping you make informed property decisions backed up by hard facts and information.
Need Help?
Our AI Chat is here 24/7 for instant support
Help To Buy Scheme
The property might qualify for the Help to Buy Scheme. Click here to see our guide to this scheme.
First Home Scheme
The property might qualify for the First Home Scheme. Click here to see our guide to this scheme.
