Thank you
Your message has been sent successfully, we will get in touch with you as soon as possible.
€675,000
Contact Us
Our team of financial experts are online, available by call or virtual meeting to guide you through your options. Get in touch today
Error
Could not submit form. Please try again later.
Oakpark Drive
Letterkenny
Co. Donegal
Description
Soon to commence, this well designed detached property is located in the desieable Woodlands area of Letterkenny, less than 10 min drive to Town Centre.
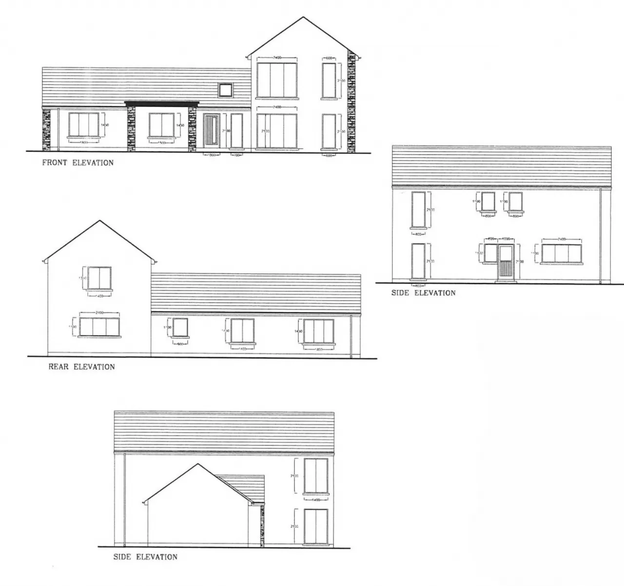
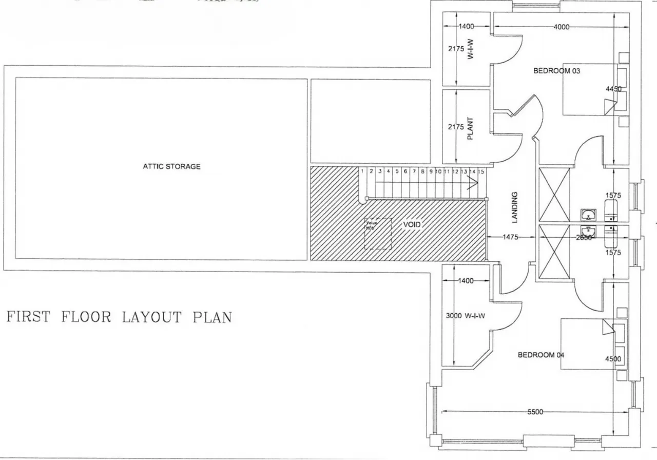
This A rated house with a total floor area of 199 sq m (2141 sq ft) will be constructed to the highest of standards and offers accommodation to include living room, kitchen/dining area, 2 no. bedrooms and bathroom on ground floor and a further 2 ensuite bedrooms on first floor
Features
Located in a pleasant area within easy access to Town Centre and all amenities
Comprising 4 bedrooms, 2 of which are located on ground floor
Both first floor bedrooms are ensuite
Total floor area 199 Sq m (2141 sq ft)
Air to Water Heating System
Underfloor heating
Triple Glazed windows
A Rated Dwelling Proposed
Rooms
Living Room 5.5 x 4.7
Kitchen/Dining Area 5.5 x 5.1
Utility Room Door to external
Bedroom 1 5.3 x 4.2 Space for built in wardrobe
Bedroom 2 4.2 x 3.9 Space for built in wardrobe
Bathroom 3.5 x 2.4
Landing
Bedroom 3 5.5 x 4.5 Walk in wardrobe
Ensuite 2.5 x 1.5
Bedroom 4 4.4 x 4.0 Walk in wardrobe
About the Area
Letterkenny is the largest and most populous town in County Donegal, located on the River Swilly. Along with the nearby city of Derry, it forms the major economic core of the north-west of Ireland. Letterkenny is renowned for its night-life. It has been identified as one of Europe's fastest growing towns by business owners. The town's major employers include the General Hospital, Pramerica, and the Department of Social and Family Affairs. There are 5 primary schools and 4 secondary schools in the town.
Letterkenny is well served by public transport. Bus Éireann and private coach companies operate a number of services to Dublin, Derry, and Galway. Two national primary roads serve the town: the N13 from the South (Stranorlar) and the N14 from the East (Lifford).
Get Directions Buying property is a complicated process. With over 40 years’ experience working with buyers all over Ireland, we’ve researched and developed a selection of useful guides and resources to provide you with the insight you need..
From getting mortgage-ready to preparing and submitting your full application, our Mortgages division have the insight and expertise you need to help secure you the best possible outcome.
Applying in-depth research methodologies, we regularly publish market updates, trends, forecasts and more helping you make informed property decisions backed up by hard facts and information.
Need Help?
Our AI Chat is here 24/7 for instant support
Help To Buy Scheme
The property might qualify for the Help to Buy Scheme. Click here to see our guide to this scheme.
First Home Scheme
The property might qualify for the First Home Scheme. Click here to see our guide to this scheme.
