Thank you
Your message has been sent successfully, we will get in touch with you as soon as possible.
€1,750,000 Sold
Contact Us
Our team of financial experts are online, available by call or virtual meeting to guide you through your options. Get in touch today
Error
Could not submit form. Please try again later.
57 Bushy Park Road
Terenure
Dublin 6
D06 Y8W9
Description
57 Bushy Park Road is a rare opportunity to acquire a really special double fronted detached family home on stunning private landscaped gardens. Superbly positioned on this prestigious and much sought after residential road between Terenure & Rathgar villages.
Extended with great charm and flair, having been renovated throughout the years by the current owners, now extending to 2,372 sq.ft./220.4 sq.m. approx. (including attic) with spacious, well-appointed accommodation throughout. The property provides an impressive reception room with large bay window overlooking the front and double doors leading to the south facing garden, an open plan kitchen/dining/living room really is the centre of the home, with an additional reception room to the front which would make an ideal study/playroom or indeed another bedroom. A utility room, guest wc and storage space complete the ground floor accommodation. Upstairs there are three double bedrooms (main ensuite) and family bathroom.
The private south facing rear garden is a feature of this fine family home. It is walled, largely in lawn, and bordered by flowerbeds with an abundance of mature bushes, plants and trees. Accessed by the side passage and also from the house, there is a paved patio, ideal for al fresco dining and BBQs.
The property is nicely set back from the road with a landscaped front garden, predominantly in lawn, with mature shrubs and trees. The driveway provides generous off-street parking with both vehicular and pedestrian access.
The property is so convenient between the villages of Rathgar and Terenure and close to all possible amenities of the Dublin 6 area, including some of Dublin’s finest senior schools The High School, Stratford College, Gonzaga, Alexandra College, Muckross College and St. Mary’s College as well as excellent junior schools at St. Joseph’s Terenure, Zion National and Rathgar Junior to mention a few. Dublin’s principal places of business are also within an easy commute, as is the airport via the M50.
Contact Us
Our team of financial experts are online, available by call or virtual meeting to guide you through your options. Get in touch today
Thank you
Your message has been sent successfully, we will get in touch with you as soon as possible.
Error
Could not submit form. Please try again later.
Features
Three fine double bedrooms (main ensuite)
Mature, landscaped, front garden with generous off-street parking
Large, private, landscaped south facing rear garden
Highly convenient location on one of Dublin’s sought-after roads
Gas fired central heating
Close to an excellent choice of schools
Rooms
Living Room 4.54m x 7.82m
Family Room 3.57m x 3.48m
Kitchen/Dining Room 7.65m x 8.18m
Utility Room 2.37m x 1.14m
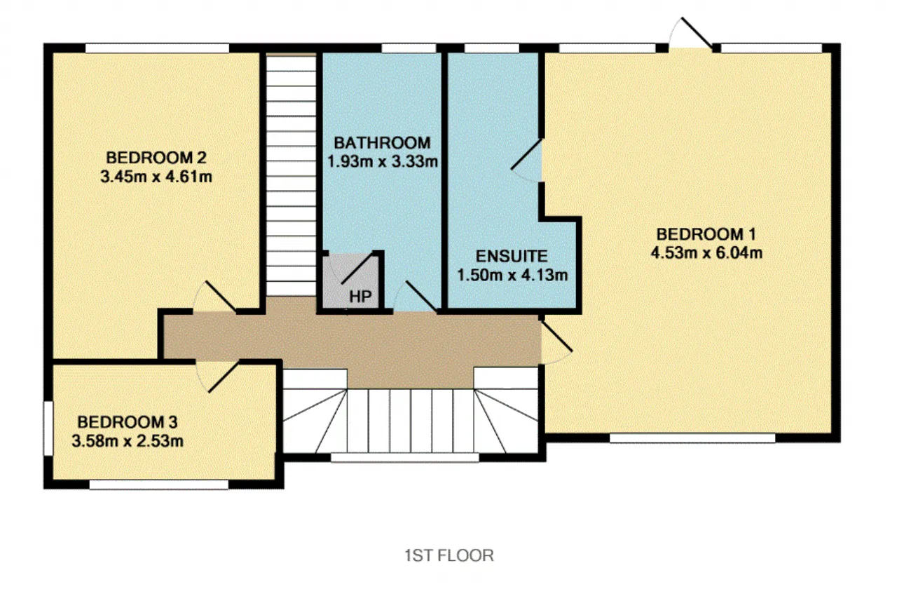
Bedroom 1 4.53m x 6.04m
En-Suite 1.50m x 4.13m
Bedroom 2 3.45m x 4.61m
Bedroom 3 3.58m x 2.53m
Bathroom 1.93m x 3.33m
Attic 4.65m x 3.03m
BER Information
BER Number: 112541545
Energy Performance Indicator: 227.6 kWh/m²/yr
About the Area
Terenure is a mainly residential suburb of Dublin, located south of Harold's Cross and north of Rathfarnham. It is partially contained in the Dublin 6, Dublin 6W and Dublin 12 postal districts. The area is host to an abundance of amenities, from schools to shopping facilities. Terenure is on several bus routes so locals with or without cars are within easy reach of the city centre.
Get Directions Buying property is a complicated process. With over 40 years’ experience working with buyers all over Ireland, we’ve researched and developed a selection of useful guides and resources to provide you with the insight you need..
From getting mortgage-ready to preparing and submitting your full application, our Mortgages division have the insight and expertise you need to help secure you the best possible outcome.
Applying in-depth research methodologies, we regularly publish market updates, trends, forecasts and more helping you make informed property decisions backed up by hard facts and information.
Need Help?
Our AI Chat is here 24/7 for instant support
Help To Buy Scheme
The property might qualify for the Help to Buy Scheme. Click here to see our guide to this scheme.
First Home Scheme
The property might qualify for the First Home Scheme. Click here to see our guide to this scheme.
