Thank you
Your message has been sent successfully, we will get in touch with you as soon as possible.
€450,000 Sold
Contact Us
Our team of financial experts are online, available by call or virtual meeting to guide you through your options. Get in touch today
Error
Could not submit form. Please try again later.
13 Coppinger Glade
Blackrock
Co. Dublin
A94 H982
Description
Behind this front door lies an impressive home extending 69sq.m / 743sq.ft of bright and well proportions accommodations. This property is accessed via an entrance porch leading to a spacious living room with feature fire place, this room is exceptionally bright with dark walnut laminate flooring. To the rear of this property is a large open plan kitchen dining room, the current owners have completely renovated this space with tiled floors, shaker style floor and wall units, ample space for appliances and double doors leading to a spacious and large rear garden which is completely private.
Upstairs lies a spacious landing with attic access, two double bedrooms, both bright with integrated wardrobes and a newly fitted family shower room. There is spacious attic which is partly floored and provides ample storage but could be converted to a third bedroom or home office, subject to planning permission.
The rear is a real oasis of calm from the modern-day world and perfect for entertaining friends and dining alfresco. Mainly laid in lawn, bordered by a variety o shrubbery and flowers, there is a Barna shed and side passage leading to the front. The front garden is laid in stones and patio and would accommodate two car spaces.
The location needs very little introduction, situated in one of south Dublin’s most highly sought-after suburbs, No.13 is within walking distance of both Blackrock & Stillorgan village which provides many amenities and facilities including boutiques, local shops, bars, cafes, restaurants and shopping centres. There are excellent transport links available with several Dublin bus links close by on the QBC and the no. 7b on your door step as well as the DART at Blackrock station which provides access to Dublin City Centre and beyond. Many of Dublin's premier schools are close at hand including Carysfort National School, Willow Park, Blackrock College, St Andrew's and Mount Anville. Also, within short walking distance is the UCD Smurfit Business School.
Contact Us
Our team of financial experts are online, available by call or virtual meeting to guide you through your options. Get in touch today
Thank you
Your message has been sent successfully, we will get in touch with you as soon as possible.
Error
Could not submit form. Please try again later.
Features
? Large rear garden with side access
? Light filled accommodations throughout
? Off street parking for two cars
? Private residential development with active residential community association
? Family friendly
? Easy access to all main transport routes including QBC
? Close to both Blackrock village and Stillorgan village
? Premier schools on your door step
SERVICES
? Gas fired central heating
? Alarm system (phone watch)
? Double glazed throughout
Rooms
Living Room 2.10m x 3.65m Laminate walnut wood flooring, feature fire place with gas insert and wooden mantle, dual aspect with plenty of light, storage cupboards
Kitchen/Dining Room 4.24m x 3.65m Tiled flooring, newly fitted shaker style floor and wall units with integrated electric cooker and oven, plumbed for washing machine and dishwasher, marble effect countertop, tiled splash back, floor to ceiling windows and door to rear garden.
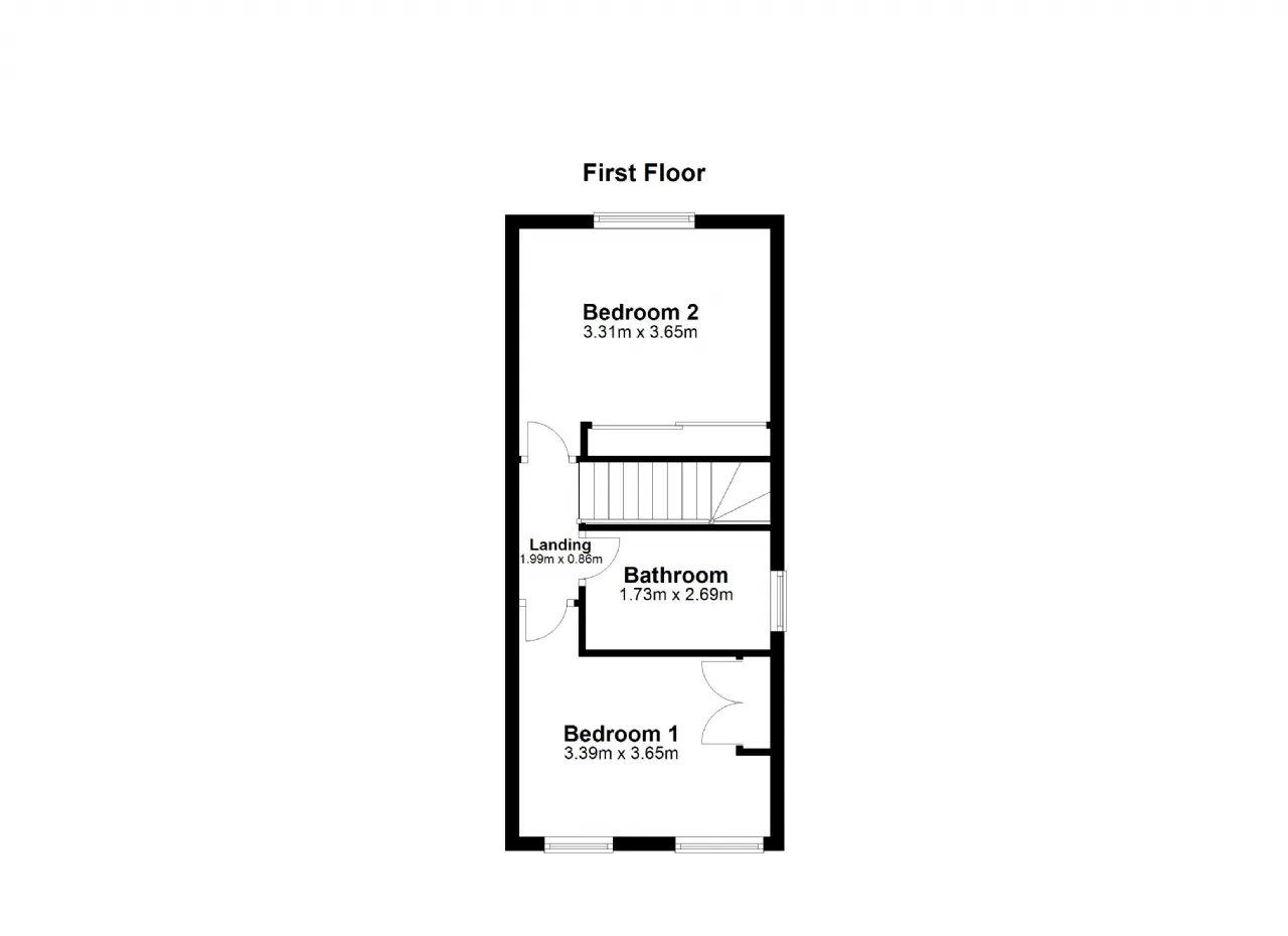
Landing 1.99x x 0.86m Carpet flooring, access to attic which is partly floored, could be converted and offers ample storage
Bedroom 1 3.39m x 3.65m Double bedroom to rear with slide robes and carpet flooring
Bathroom 1.73m x 2.69m Fully tiled, wash hand basin, wc, step in shower unit, ample storage
Bedroom 2 3.31m x 3.65m Double bedroom to front with fitted wardrobes
BER Information
BER Number: 104925896
Energy Performance Indicator: 239.09 kWh/m2/yr
About the Area
Blackrock is a busy suburb, located 3 km (1.9 mi) northwest of Dún Laoghaire. It is bordered by Booterstown, Mount Merrion, Stillorgan, Foxrock, Deansgrange and Monkstown. The area is quite a large commercial centre with two shopping centres, cafes, bars, restaurants, boutiques, hairdressers and barbers, pharmacies, supermarkets, car dealerships, art galleries, antiques and home-improvement outlets. Blackrock has a station on the DART line, which is 15 minutes away, by train, from the city centre. Dublin Bus also serves the area with multiple bus routes. The Aircoach services to Dublin Airport from Dalkey and Greystones call at Blackrock en route to the airport.
Get Directions Buying property is a complicated process. With over 40 years’ experience working with buyers all over Ireland, we’ve researched and developed a selection of useful guides and resources to provide you with the insight you need..
From getting mortgage-ready to preparing and submitting your full application, our Mortgages division have the insight and expertise you need to help secure you the best possible outcome.
Applying in-depth research methodologies, we regularly publish market updates, trends, forecasts and more helping you make informed property decisions backed up by hard facts and information.
Need Help?
Our AI Chat is here 24/7 for instant support
Help To Buy Scheme
The property might qualify for the Help to Buy Scheme. Click here to see our guide to this scheme.
First Home Scheme
The property might qualify for the First Home Scheme. Click here to see our guide to this scheme.
