€785,000 Sold
Contact Us
Our team of financial experts are online, available by call or virtual meeting to guide you through your options. Get in touch today
Error
Could not submit form. Please try again later.
16A The Rear
Prince Edward Terrace
Blackrock
Co Dublin
Description
Set behind electric gates lies a truly beautiful Mews with large picture and floor to ceiling windows flooding the space with light. The accommodation comprises; entrance hall, guest w.c/utility area, spacious light filled kitchen/dining/living room with bi-folding doors to the both the front and rear gardens, and a further reception room. On the first floor there are three good size double bedrooms, the main with en-suite and walk in dressing area, and a spacious shower room. The landscaped front and rear gardens, designed by Damian Costello, are beautiful low maintenance spaces – perfect for dining ‘al fresco’. The rear garden boasts a lovely westerly orientation with brick bordered flowerbeds with colourful flowers, external lighting, patio and decked spaces. To the front it is laid in lawn with ample off street parking.
The location of no. 16A is second to none, superbly located within strolling distance of Blackrock village. Just a stone’s throw away there is two shopping centers, the, many boutique shops and a wide variety of eateries. Carysfort Park, Blackrock Park and the seafront are right on your doorstep and the City Centre is approximately 6km away. Transport links include the N11, QBC, Rock Road and DART offering great access to Dublin city centre and beyond. Many of Dublin’s premier schools are close at hand including Carysfort National School, Willow Park, Blackrock College, St Andrew’s College, Loreto Foxrock and Mount Anville as are Smurfit Business School and UCD.
Contact Us
Our team of financial experts are online, available by call or virtual meeting to guide you through your options. Get in touch today
Thank you
Your message has been sent successfully, we will get in touch with you as soon as possible.
Error
Could not submit form. Please try again later.
Features
Light filled accommodation
Double glazing
High ceilings
Damian Costello designed gardens
Architecturally designed by Cathal Crimmins
Private west facing garden
Off street parking
G.F.C.H.
TV Points
Phone Points
Close proximity to Blackrock
Excellent schools & transport including Dart nearby
Rooms
Guest W.C/ Utility 2.7m x 1.4m With tiled floor, tiled walls, wall mounted mirror, wash hand basin, w.c, fitted worktop and plumbing for washing machine and dryer.
Kitchen With tiled floor, recessed lighting, extensive range of fitted floor and eye level units, pull out pantry, under cabinet lighting, tiled splashback, integrated Beko oven, integrated Whirlpool hob, integrated Beko dishwasher, extractor fan, integrated fridge/freezer and door to the garden.
Living / Dining Room Double height space with Velux windows, recessed lighting, wood floor, bifolding doors to the garden, modern fireplace, upright wall radiator, TV point, phone point and door to the front.
Reception Room 5.1m x 3.0m With ceiling coving, wood floor and recessed lighting.
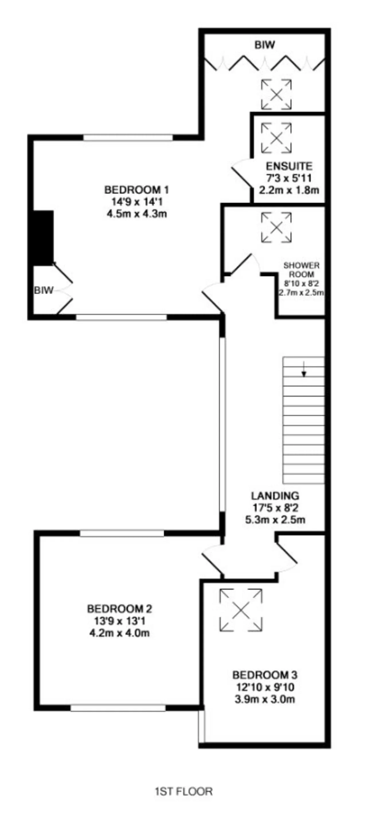
Landing 5.3m x 2.5m Bright space with wood floor, ceiling coving and recessed lighting.
Bedroom 1 4.5m x 4.3m Spacious double bedroom with wood floor, pitched ceiling, recessed lighting, extensive built in wardrobes and separate dressing area.
En-Suite 2.2m x 1.8m Fully tiled with white suite incorporating bath with overhead Mira Elite shower, wash hand basin and w.c. Heated towel rail and extractor fan.
Bedroom 2 4.2m x 4.0m Dual aspect double bedroom to the front with wood floor, recessed lighting, TV point and phone point.
Bedroom 3 3.9m x 3.0m Double bedroom with ceiling coving, wood floor, recessed lighting, TV point and phone point.
Shower Room 2.7m x 2.5m Fully tiled with Shire suite incorporating wide step in shower, wash hand basin and w.c. Chrome heated towel rail, wall mounted mirror, built in storage and extractor fan.
BER Information
BER Number: 100680271
Energy Performance Indicator: 121.04
About the Area
Blackrock is a busy suburb, located 3 km (1.9 mi) northwest of Dún Laoghaire. It is bordered by Booterstown, Mount Merrion, Stillorgan, Foxrock, Deansgrange and Monkstown. The area is quite a large commercial centre with two shopping centres, cafes, bars, restaurants, boutiques, hairdressers and barbers, pharmacies, supermarkets, car dealerships, art galleries, antiques and home-improvement outlets. Blackrock has a station on the DART line, which is 15 minutes away, by train, from the city centre. Dublin Bus also serves the area with multiple bus routes. The Aircoach services to Dublin Airport from Dalkey and Greystones call at Blackrock en route to the airport.
Get Directions Buying property is a complicated process. With over 40 years’ experience working with buyers all over Ireland, we’ve researched and developed a selection of useful guides and resources to provide you with the insight you need..
From getting mortgage-ready to preparing and submitting your full application, our Mortgages division have the insight and expertise you need to help secure you the best possible outcome.
Applying in-depth research methodologies, we regularly publish market updates, trends, forecasts and more helping you make informed property decisions backed up by hard facts and information.
Need Help?
Our AI Chat is here 24/7 for instant support
Help To Buy Scheme
The property might qualify for the Help to Buy Scheme. Click here to see our guide to this scheme.
First Home Scheme
The property might qualify for the First Home Scheme. Click here to see our guide to this scheme.
