Thank you
Your message has been sent successfully, we will get in touch with you as soon as possible.
€950,000 Sold
Contact Us
Our team of financial experts are online, available by call or virtual meeting to guide you through your options. Get in touch today
Error
Could not submit form. Please try again later.
5 St Helens Road
Booterstown
Co Dublin
Description
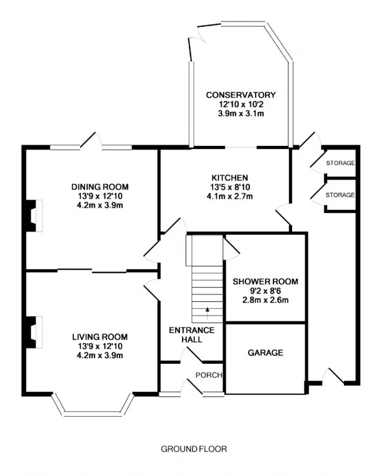
Internally the property boasts excellent proportions, large windows flooding the space with natural light and is simply bursting with potential to be transformed into a beautiful bespoke family home. The accommodation comprises; porch, entrance hall with smart storage solutions, interconnected living/dining room, kitchen, conservatory, utility area and shower room. On the first floor there are two good size double bedrooms, two single bedrooms and a family bathroom.
The real jewel in the crown of this property is the large and very private rear garden measuring (approx.) 78ft L x 30ft. Laid in lawn the garden boasts two sunny patio areas, perfect to make the most of the sun, raised flowerbeds, and mature trees and shrubbery offering excellent privacy. However, the real surprise in this garden is the World War II bunker which takes pride of place to the rear of the garden and is simply a haven for children to play.
Situated in this well-established residential neighbourhood with a wealth of amenities on the doorstep. Blackrock Village with its array of specialty shops, trendy cafes, gourmet restaurants and parkland is a pleasant stroll away, while The Merrion, Stillorgan and Dundrum shopping centres are within a short drive. Many of Dublin’s premier schools and universities are within walking distance including Willow Park, Blackrock College, St Andrews, Sion Hill, Colaiste Íosagáin and UCD. Elm Park Golf and Sports Club, St Vincent’s Private and Public Hospitals are also located close by. The area is well serviced by transport links with bus and DART services close by, and the N11 and M50 within an easy drive.
Contact Us
Our team of financial experts are online, available by call or virtual meeting to guide you through your options. Get in touch today
Thank you
Your message has been sent successfully, we will get in touch with you as soon as possible.
Error
Could not submit form. Please try again later.
Features
New double glazing
New roof
New Ariston boiler
Original features
Scope to extend
World War Two bunker in the rear garden
Large private rear garden
Off street parking
Excellent transport routes
Close to highly regarded schools
Well-established neighbourhood
GFCH
Wired for alarm
TV and Phone Points
Rooms
Entrance Hall With wood floor, smart under stairs storage, alarm panel and phone point.
Kitchen 4.1m x 2.7m With tiled floor, dado rail, fitted floor and eye level units, tiled splashback, provision for oven, plumbing for washing machine and dishwasher, provision for fridge/freezer, 1 ½ stainless steel sink with integrated drainer and side access. Opening to…
Conservatory 3.9m x 3.1m With tiled floor and double doors to the garden.
Utility Room With tiled floor, skylight and ample storage.
Living Room 4.2m x 3.9m Spacious room with wood floor, ceiling coving, picture rail, bay window, open fireplace with marble mantle and brass surround. Sliding doors to…
Dining Room 4.2m x 3.9m With wood floor, ceiling coving, picture rail, TV point, feature fireplace with gas coal effect inset and tiled surround, and door to the garden.
Shower Room 2.8m x 2.6m Wet room style with extractor fan, wall mounted mirror, overhead shower, chrome heated towel, wash hand basin and w.c.
Landing With window to the side, attic access and shelved hot press.
Bedroom 1 4.2m x 3.9m Double bedroom to the front with bay window, radiator cover, picture rail, wall mounted mirror, wash hand basin and extensive built in wardrobes.
Bedroom 2 3.9m x 3.1m Double bedroom overlooking the garden with picture rail, tall fireplace, phone point and built in wardrobe.
Bedroom 3 2.6m x 2.1m Single bedroom to the front with wood floor and picture rail.
Bedroom 4 2.7m x 2.4m Single bedroom with picture rail and phone point.
Bathroom 2.5m x 1.7m With two windows, tiled walls, bath with overhead Aquastream shower, wash hand basin with storage and w.c.
BER Information
BER Number: 108518127
Energy Performance Indicator: 284.31
About the Area
Booterstown is a coastal townland situated in the Dún Laoghaire–Rathdown, about 7 km (4.3 mi) south of the city of Dublin. Booterstown is served by the DART, with a railway station between the stops of Blackrock and Sydney Parade. The townland is also served by two Quality Bus Corridors, Stillorgan and Blackrock, Dublin. A frequent Aircoach service links the area with Dublin Airport. The area is home to Booterstown marsh, a well-known bird sanctuary which has been leased for many years by An Taisce, who have worked to protect it.
Get Directions Buying property is a complicated process. With over 40 years’ experience working with buyers all over Ireland, we’ve researched and developed a selection of useful guides and resources to provide you with the insight you need..
From getting mortgage-ready to preparing and submitting your full application, our Mortgages division have the insight and expertise you need to help secure you the best possible outcome.
Applying in-depth research methodologies, we regularly publish market updates, trends, forecasts and more helping you make informed property decisions backed up by hard facts and information.
Need Help?
Our AI Chat is here 24/7 for instant support
Help To Buy Scheme
The property might qualify for the Help to Buy Scheme. Click here to see our guide to this scheme.
First Home Scheme
The property might qualify for the First Home Scheme. Click here to see our guide to this scheme.
