Thank you
Your message has been sent successfully, we will get in touch with you as soon as possible.
€1,695,000 Sold
Contact Us
Our team of financial experts are online, available by call or virtual meeting to guide you through your options. Get in touch today
Error
Could not submit form. Please try again later.
Ashieanna
Ballycorus Road
Kilternan
Dublin 18
D18 KR92
Description
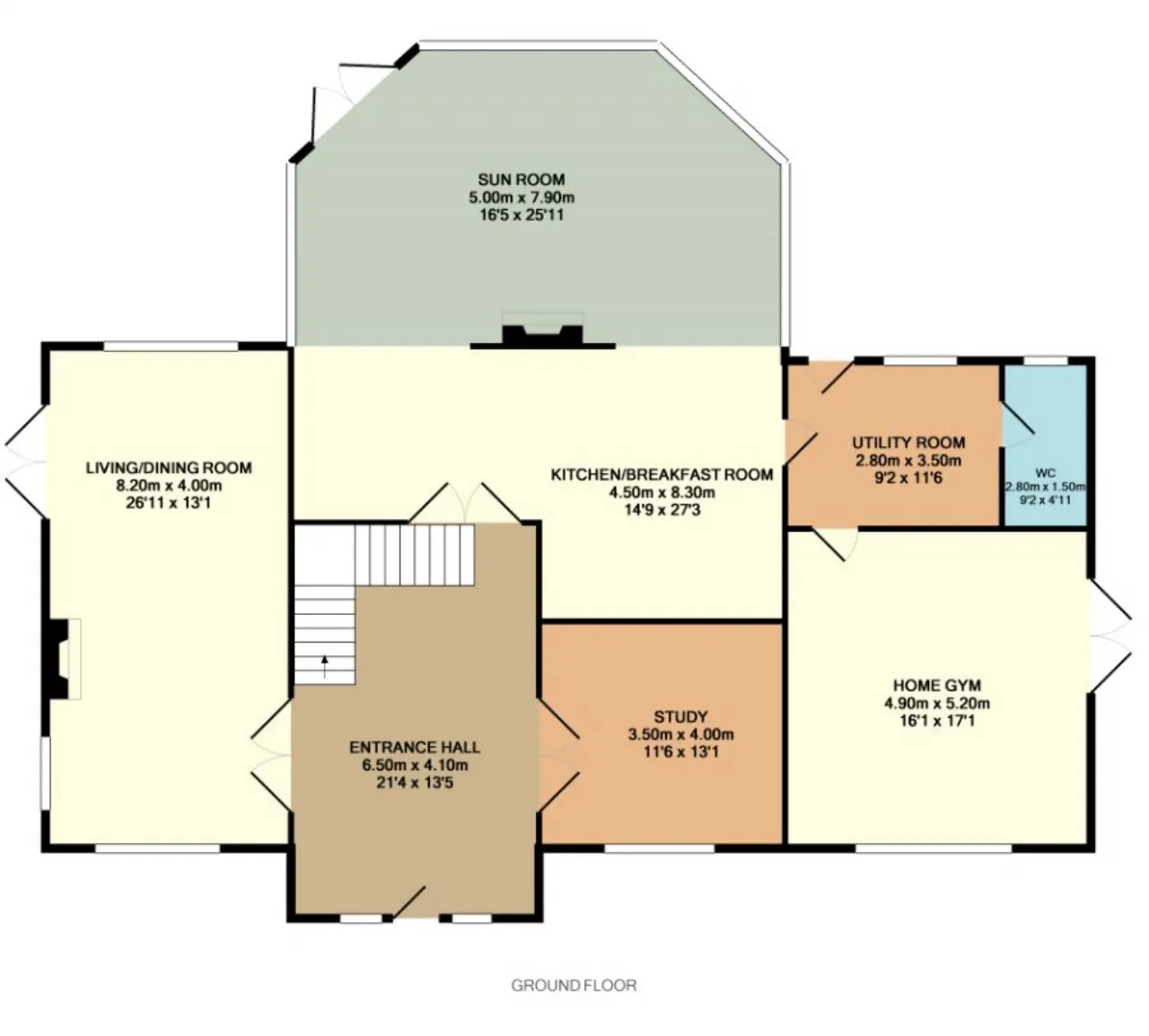
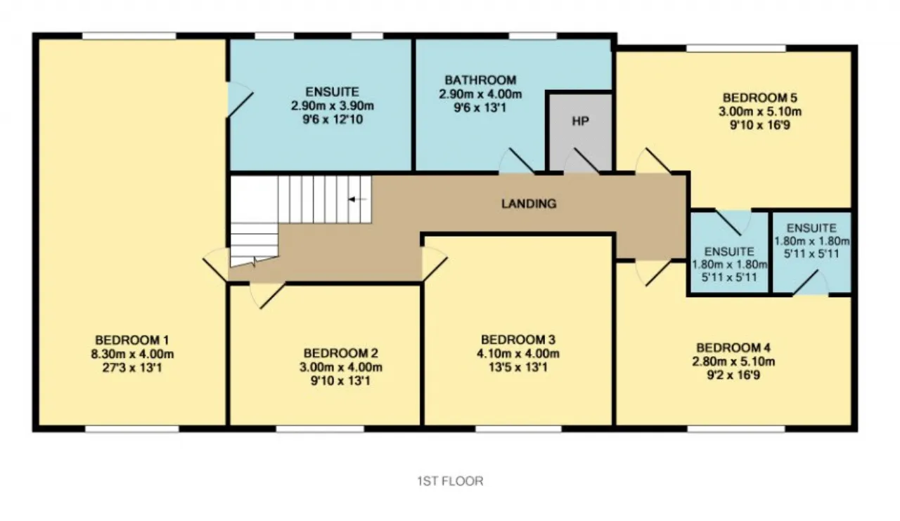
Beyond the handsome façade there is an air of spaciousness and a quiet elegance throughout this home and this is evident once you step through the front doors into the bright reception hall. The large kitchen/breakfast room really is the heart of this home and boasts a beautiful fitted kitchen featuring a centre island which is the perfect magnet for family discussions or coffee breaks! This opens into a light filled sunroom with views across the picture perfect grounds. There is a large, triple aspect living/dining room and an impressive study with fitted American walnut study area. A home gym, utility room and shower room finish off the ground floor. On the first floor there is an impressive master bedroom with extensive fitted wardrobes and a contemporary en-suite with a free standing bath. There are four further generous double bedrooms, two with en-suite shower rooms, and a large family bathroom.
The secluded gardens wrap around Ashieanna encasing it in greenery and affording the house beautiful vistas over the ever changing seasonal gardens. To the front, there is a sweeping driveway which leads down to generous off street parking surrounded by well planted flowerbeds. The rear garden features expansive lawns and a range of specimen trees including witch hazel, a variety of apple trees, cherry blossom and walnut. There are garden storage sheds with double insulation.
Kilternan enjoys seclusion whilst still being within convenient access to the M50 at Carrickmines and N.11 for easy commuting with St. Stephens Green only 8 miles away. It is adjacent to all amenities, churches and renowned schools and yet oozes countryside appeal and privacy. This is a wonderful location in which to live and rear a family with local horse riding, stunning walks and only a short distance to pubs, restaurants and shopping in Kilternan, Enniskerry, The Park retail shopping Carrickmines, Stepaside village and Dundrum Town Centre. The Luas in Carrickmines is within easy reach and exceptional schools nearby include Our Lady of the Wayside Kilternan, St Gerard's Bray, Loreto Foxrock, and Wesley College Dundrum. Stepaside driving range is close by with renowned courses at Powerscourt & on the Ballyman road Enniskerry within striking distance. Rarely does a house as special as this come to the market. Viewing is highly recommended to fully appreciate this outstanding home.
Contact Us
Our team of financial experts are online, available by call or virtual meeting to guide you through your options. Get in touch today
Thank you
Your message has been sent successfully, we will get in touch with you as soon as possible.
Error
Could not submit form. Please try again later.
Features
Five bedroom detached family home
Turnkey condition
Generous proportions
Interior design by Helen Turkington
Christoff kitchen and storage options
Impressive principal suite
Five double bedrooms
Sun room with views across the grounds
Gardens landscaped by Bloom gold medalist
Composite decking with glass balustrade
Generous off street parking
Rural yet convenient location
Services
OFCH
Biocycle tank waste treatment
Wired for alarm
TV points
Phone points
Rooms
Living/Dining Room 8.20m x 4.00m Triple aspect with carpet floor, doors to the garden, ceiling coving, TV point, radiator cover and large open fireplace with composite stone surround
Study 3.50m x 4.00m To the front with carpet floor, ceiling coving, recessed lighting, radiator cover and American walnut fitted storage
Kitchen/Breakfast Room 4.50m x 8.30m Large open plan space with tiled floor, ceiling coving, recessed lighting, fitted floor and wall units, granite worktops, island with timber breakfast bar, tiled splashback, provision for American fridge/freezer, Neff microwave, provision for Waterford range, ceramic sink and Neff dishwasher. Open to:
Sun Room 5.00m x 7.90m with tiled floor, Velux windows, stunning views across the garden, TV point and stove with back boiler
Utility Room 2.80m x 3.50m with tiled floor, fitted floor and wall units, granite worktops, provision for fridge/freezer, plumbing for washing machine and ceramic sink
WC 2.80m x 1.50m with tiled floor and walls, recessed lighting, Mira electric shower, wash hand basin and w.c.
Home Gym 4.90m x 5.20m To the front with wood floor, ceiling coving, recessed lighting, TV point and doors to the side
Landing with carpet floor, walk in hot press, wood paneled walls, ceiling coving, recessed lighting, attic access and radiator cover
Bedroom 1 8.30m x 4.00m Dual aspect double bedroom with underfloor heating, ceiling coving, carpet floor, extensive fitted wardrobes, fitted vanity area and TV point
Ensuite 1.80m x 1.80m with tiled floor and walls, underfloor heating, extractor fan, chrome heated towel rail, corner shower, mirror vanity, wash hand basin and w.c.
Bedroom 2 3.00m x 4.00m Double bedroom to the front with carpet floor, fitted wardrobes and ceiling coving
Bedroom 3 4.10m x 4.00m Double bedroom to the front with carpet floor, fitted wardrobes and ceiling coving
Bedroom 4 2.80m x 5.10m Double bedroom to the front with carpet floor, fitted wardrobes and ceiling coving
Bedroom 5 3.00m x 5.10m Double bedroom overlooking the garden with carpet floor, ceiling coving and fitted wardrobes
Bathroom 2.90m x 4.00m Large family bathroom with tiled floor and walls, underfloor heating, recessed lighting, chrome heated towel rail, corner bath, large shower, wash hand basin and w.c.
BER Information
BER Number: 102547064
Energy Performance Indicator: 182.78 kWh/m²/yr
About the Area
Kilternan is a village located in the foothills of the Dublin Mountains, near the border with County Wicklow. Separated from the more built-up Dublin area, it is a suburban village in rural surroundings at the crossroads of the R117 and R116 regional roads. Locals enjoy the privacy and tranquillity of the countryside, while remaining within easy reach of Dublin's City Centre.
Get Directions Buying property is a complicated process. With over 40 years’ experience working with buyers all over Ireland, we’ve researched and developed a selection of useful guides and resources to provide you with the insight you need..
From getting mortgage-ready to preparing and submitting your full application, our Mortgages division have the insight and expertise you need to help secure you the best possible outcome.
Applying in-depth research methodologies, we regularly publish market updates, trends, forecasts and more helping you make informed property decisions backed up by hard facts and information.
Need Help?
Our AI Chat is here 24/7 for instant support
Help To Buy Scheme
The property might qualify for the Help to Buy Scheme. Click here to see our guide to this scheme.
First Home Scheme
The property might qualify for the First Home Scheme. Click here to see our guide to this scheme.
