Thank you
Your message has been sent successfully, we will get in touch with you as soon as possible.
€575,000 Sold
Contact Us
Our team of financial experts are online, available by call or virtual meeting to guide you through your options. Get in touch today
Error
Could not submit form. Please try again later.
Drum East
Bushypark
Galway
H91 E5YH
Description
The residence is deceptive from the front as it appears to be single storey, but is in fact split level and is over 3 floors. On the ground and first floors are the sitting room, kitchen, dining room, utility room, four bedrooms two of which are ensuite, main bathroom and guest wc. On the lower ground floor is a large open plan room suitable for a variety of uses and two further separate rooms. All rooms are large, bright and spacious. The care and thought that has gone into this home is evident with the quality of fittings, such as solid timber floors, tiling, kitchen fittings and bathrooms have recently been refitted with new showers, tiling and suites. The thermal efficiencies have been improved with extensive retro fitting of insulation standards, including pumping walls and attic insulation. Externally the formal gardens have been planned and have matured well with natural stone wall boundary to front, mature trees and shrub beds on side and rear boundary, extensive lawn, tarmacadam drive to front, side and rear. In addition there is a rear field of approx. 0.65 acres.
Drum is a popular location to the West of Galway City approximately 5km from the City Centre, Boleybeg Primary School is approx. 1km, Drum sporting pitches are close by and the city can be accessed via a number of routes.
It offers space, privacy, scope and all the benefits of country living yet on the doorstep of the City.
Contact Us
Our team of financial experts are online, available by call or virtual meeting to guide you through your options. Get in touch today
Thank you
Your message has been sent successfully, we will get in touch with you as soon as possible.
Error
Could not submit form. Please try again later.
Features
Double Glazed PVC Windows
Waste Treatment System
Alarm
Bathrooms recently refurbished and new shower
Fibre Optic Cable into house up 1 Gigabyte
Rooms
Entrance Hall Ceramic tile floor, cloak press.
Sitting Room Beech solid timber floor, fireplace with natural limestone surround 6 kilowatt solid fuel inset stove.
Dining Room Maple solid timber floor, double doors to side.
Kitchen Fully fitted solid timber kitchen with worktop, ceramic tile floor, integrated oven and hob, extensive worktop area.
Utility Room Filled wall and floor mounted units, sink unit, worktop, plumbed for washing machine and dryer, door to side.
Bedroom 1 Pine timber floor, fitted wardrobes.
Guest wc Tiled floor, wc, wash hand basin.
Bedroom 2 Pine timber flooring, fitted wardrobes. Ensuite shower room with large shower, wc and wash hand basin.
1st Floor
Landing Maple flooring, hotpress, large storage press.
Bedroom 3 Laminate timber floor, built in wardrobes, ensuite shower room with shower unit, wc and wash hand basin.
Bathroom Bath with shower, wc, wash hand basin, fully tiled floor and walls.
Bedroom 4 Maple flooring, access to eaves storage.
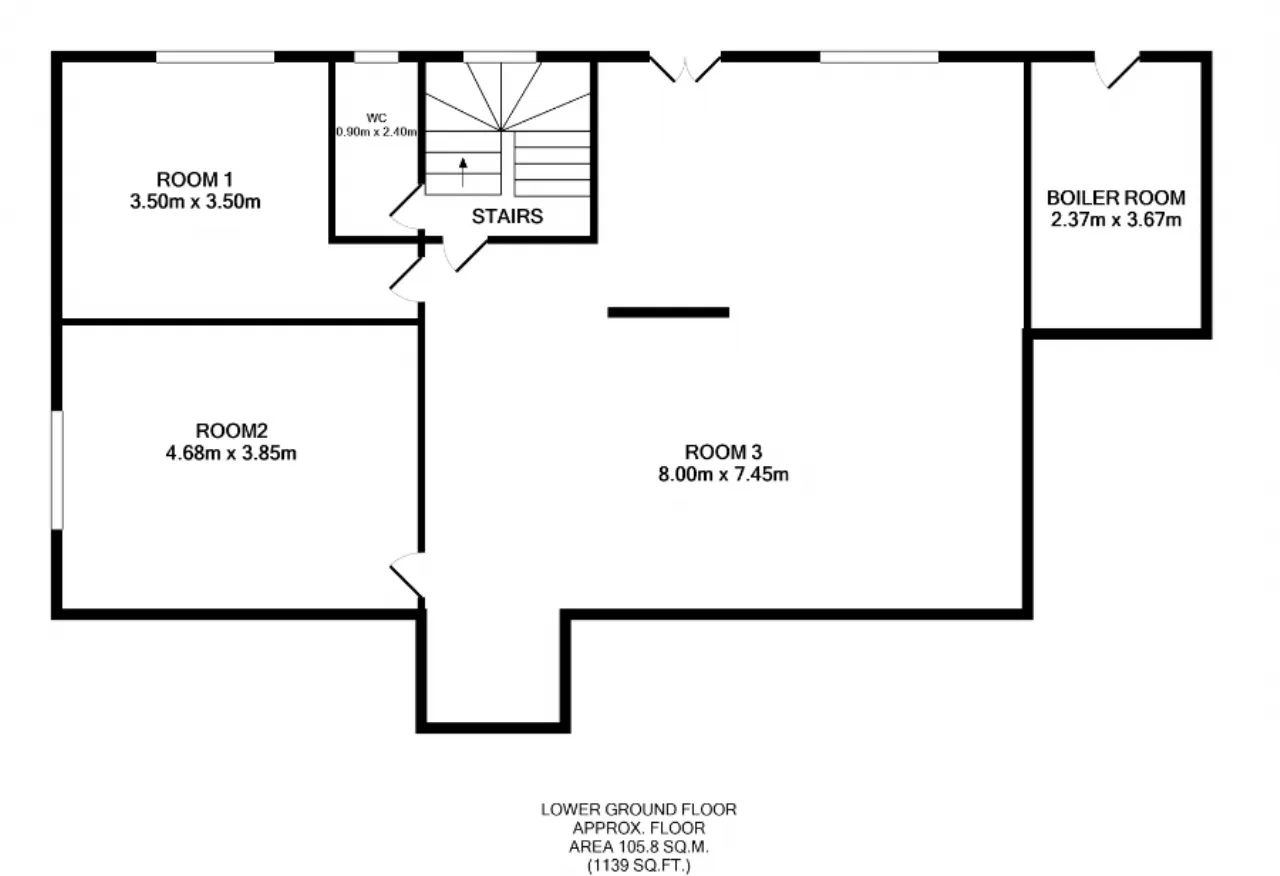
Lower Ground Floor
Room 1 Solid Pine timber floor.
Room 2 Solid Pine timber floor.
Room 3 Very large open plan space with solid Pine floor, doble doors to rear patio and garden, suitable for variety of uses.
Gaden Front: Natural stone wall boundaries to front with natural stone pillars and cast iron gates. Tarmac drive kerbed, lawn area, mature tree and shrubs on boundaries. Rear Garden: Tarmac parking area, patio with paving stones, extensive lawn boarded with very established and mature trees and shrubs to provide privacy and shelter. Additional land at rear of garden currently fallow.
BER Information
BER Number: 105868079
Energy Performance Indicator: 163.24 (kWh/m2/yr)
About the Area
No description
Get Directions Buying property is a complicated process. With over 40 years’ experience working with buyers all over Ireland, we’ve researched and developed a selection of useful guides and resources to provide you with the insight you need..
From getting mortgage-ready to preparing and submitting your full application, our Mortgages division have the insight and expertise you need to help secure you the best possible outcome.
Applying in-depth research methodologies, we regularly publish market updates, trends, forecasts and more helping you make informed property decisions backed up by hard facts and information.
Need Help?
Our AI Chat is here 24/7 for instant support
Help To Buy Scheme
The property might qualify for the Help to Buy Scheme. Click here to see our guide to this scheme.
First Home Scheme
The property might qualify for the First Home Scheme. Click here to see our guide to this scheme.
