Thank you
Your message has been sent successfully, we will get in touch with you as soon as possible.
€325,000 Sale Agreed
Contact Us
Our team of financial experts are online, available by call or virtual meeting to guide you through your options. Get in touch today
Error
Could not submit form. Please try again later.
Galway Road
Clifden
Co.Galway
H71 W886
Description
The south facing aspect and mature grounds are an added attractive feature.
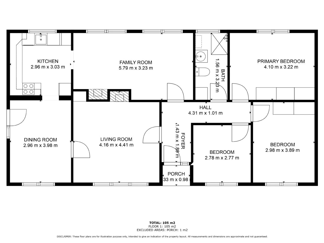
Accommodation currently includes three bedrooms, a family room, living room, dining room, kitchen and a family bathroom.
The property retains a family home atmosphere with a well maintained lawn and views to the surrounding countryside.
An adjcent garage, currently used as an expansive storage area, could potentially be converted to other uses.
Clifden town centre and amenities are a fifteen minute walk.
Rooms
Kitchen 2.96 x 3.03
Dining Room 2.96 x 3.98
Living Room 5.79 x 3.23
Bathroom 1.56 x 3.23
Master Bedroom 4.10 x 3.22
Bedroom 2 2.78 x 2.77
Bedroom 3 2.98 x 3.89
BER Information
BER Number: 106417843
Energy Performance Indicator: 167.77kWh/m2/yr
About the Area
Clifden is Connemara's largest town; often referred to as "the Capital of Connemara". It is located on the Owenglen River where it flows into Clifden Bay. The town is linked to Galway city by the N59 and is a popular tourist destination for those touring Connemara. The HQ for the Connemara Garda service is in Clifden, as is the main Fire Station for Connemara. The local library hosts an ongoing programme of exhibitions, readings and other cultural events.
Get Directions Buying property is a complicated process. With over 40 years’ experience working with buyers all over Ireland, we’ve researched and developed a selection of useful guides and resources to provide you with the insight you need..
From getting mortgage-ready to preparing and submitting your full application, our Mortgages division have the insight and expertise you need to help secure you the best possible outcome.
Applying in-depth research methodologies, we regularly publish market updates, trends, forecasts and more helping you make informed property decisions backed up by hard facts and information.
Need Help?
Our AI Chat is here 24/7 for instant support
Help To Buy Scheme
The property might qualify for the Help to Buy Scheme. Click here to see our guide to this scheme.
First Home Scheme
The property might qualify for the First Home Scheme. Click here to see our guide to this scheme.
