Thank you
Your message has been sent successfully, we will get in touch with you as soon as possible.
€425,000 Sold
Contact Us
Our team of financial experts are online, available by call or virtual meeting to guide you through your options. Get in touch today
Error
Could not submit form. Please try again later.
Bealadangan
Connemara
Co.Galway
H91 K2TV
Description
Bealadangan is convenient to Carraroe and Ceantar Na nOilean, an unspoilt and naturally scenic location. A harbour lies a short distance away.
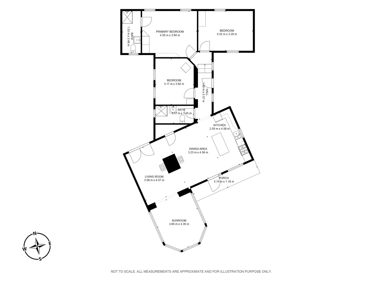
The property comprises of an original stone cottage which has been tastefully renovated with a substantial extension having been added. Completely clad in local stone, it blends seamlessly into its natural surrounds.
The three bedrooms are set in what was the original cottage. The split level extension is open plan with vaulted ceilings. A fully exposed stone fireplace with back to back stoves is the main feature of the living area. A south West facing conservatory has also been added.
Connemara is truly unique with its unspoilt landscape, unrivalled sea and mountain views. Bealadangan nestles in the very heart of it.
Rooms
Conservatory 4.35 x 3.65 Vaulted ceiling.Wood flooring.
Master Bedroom 4.55 x 3.94 Wood flooring . Built in wardrobes.
En-Suite Bathroom 3.48 x 1.53
Bedroom 2 4.52 x 3.29 Wood flooring.Sea views.
Bedroom 3 3.82 x 3.17 Wood flooring
Family Bathroom 3.17 x 1.45 Fully tiled .
BER Information
BER Number: 117007120
Energy Performance Indicator: 253.54kWm2
About the Area
No description
Get Directions Buying property is a complicated process. With over 40 years’ experience working with buyers all over Ireland, we’ve researched and developed a selection of useful guides and resources to provide you with the insight you need..
From getting mortgage-ready to preparing and submitting your full application, our Mortgages division have the insight and expertise you need to help secure you the best possible outcome.
Applying in-depth research methodologies, we regularly publish market updates, trends, forecasts and more helping you make informed property decisions backed up by hard facts and information.
Need Help?
Our AI Chat is here 24/7 for instant support
Help To Buy Scheme
The property might qualify for the Help to Buy Scheme. Click here to see our guide to this scheme.
First Home Scheme
The property might qualify for the First Home Scheme. Click here to see our guide to this scheme.
