Thank you
Your message has been sent successfully, we will get in touch with you as soon as possible.
€495,000
Contact Us
Our team of financial experts are online, available by call or virtual meeting to guide you through your options. Get in touch today
Error
Could not submit form. Please try again later.
34 Main Street
Kenmare
Co Kerry
V93 K79F
Description
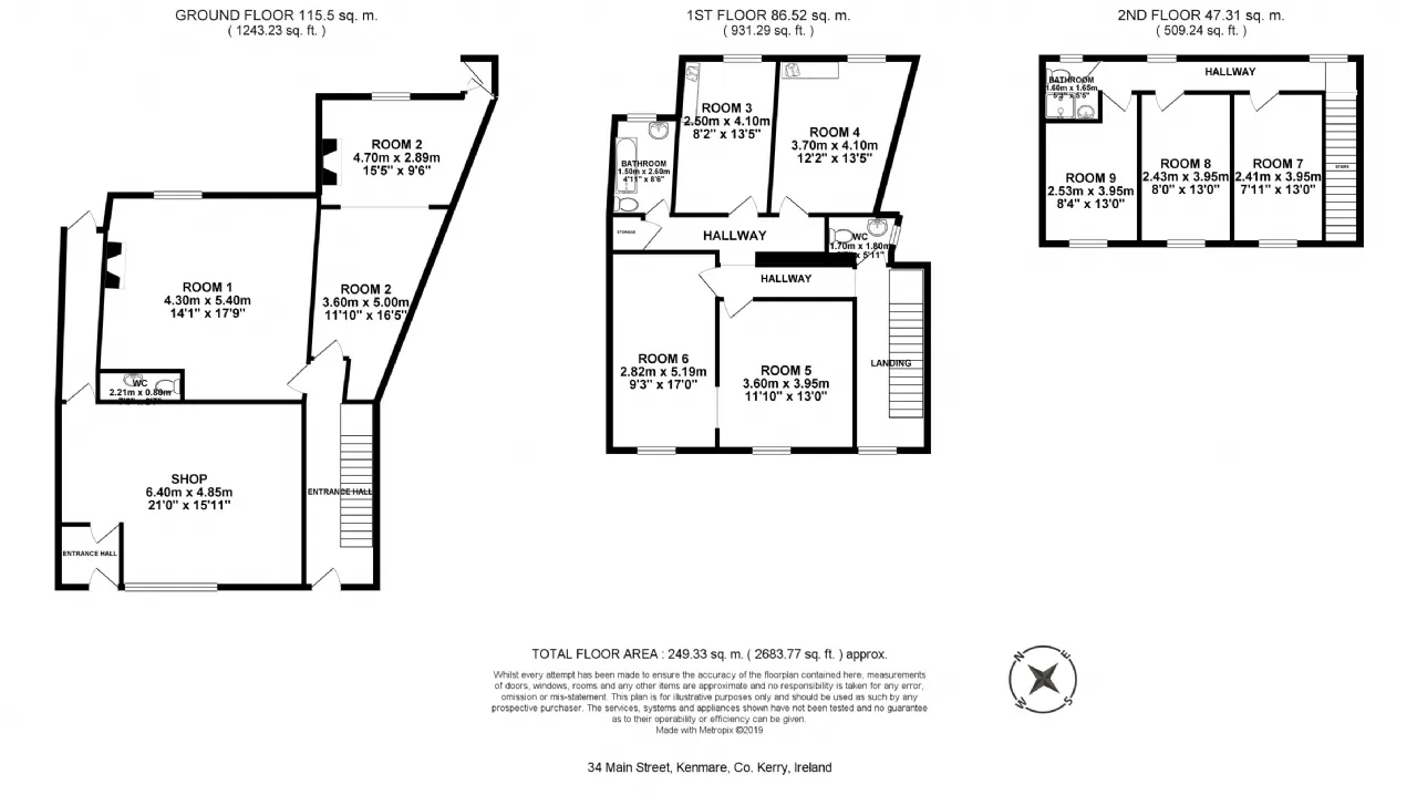
Entire site area of about 0.108 acres (440 sq.mt). The building is on 3 floors with an internal area of approximately 249 sq.mts (2,680 sq.ft). Property was completely renovated in the 1970's.
The current floor areas consists of:
Ground floor: retail unit along with 2 other rooms.
First Floor: 4 rooms, bathroom, and wc.
Second floor: 3 rooms and shower room.
Large yard area to the rear with 3 sheds. This space offers an opportunity to further expand the building area. Good rear access to the property via Back Lane. This lane has access through Rock Street.
Planning permission granted in December 2023 to renovate and extend. Planing has been granted for a building and storage with a future floor area of 325.10 sq.mt (3,498 sq.ft). Future accommdation to consist of:
Ground floor: Retail space.
First floor: Large 1 bed apartments.
2nd floor: Large 1 bed apartments.
To the rear: Gated access to new store shed and parking area.
The facade of the building is not a protected structure. Title is Freehold. Sold with vacant possession.
Services: Public Water. Public Sewerage. Electricty. Wired for telephone. Electric storage heating. Fiber broad band available.
**Interested in this property? Sign up for mySherryFitz to arrange your viewing, see current offers or make your own offer. Register now at SherryFitz.ie**
Features
Entire site area of about 0.108 acres (440 sq.mt).
Ideal investment opportunity.
Planning permission granted to renovate and extend the building. Ref 2360025. Planning file on https://www.eplanning.ie/KerryCC/AppFileRefDetails/2360025/0
Public Water. Public Sewerage. Electricty. Wired for telephone. Electric storage heating. Fiber broad band available.
Rooms
Current Exterior
Yard Large open yard area. Direct access to rear lane.
Shed 1 7.03m x 4.62m Internal area of 33.47 sq.mts (350 sq.ft) Access to rear lane. Concrete floor and corrugated roof.
Shed 2 4.06m x 4.44m Internal area of 18.03 sq.mts (194 sq.ft) Access to rear lane. Old stone outbuilding with old corrugated roof.
Shed 3 3.65m x 2.22m Internal area of 8.10 sq.mts (87 sq.ft) Access to rear year. Concrete floor and corrugated roof.
BER Information
BER Number: 800691222
Energy Performance Indicator: 1040.43
About the Area
Cradled in the heart of Kenmare Bay, the picturesque town of Kenmare is the perfect location from which to discover the South West of Ireland, linking the world famous Ring of Kerry with the rugged Ring of Beara. Just bursting with amazing views and loads of other things that will inspire you to greatness and let your mind run wild. Founded in 1670, the unique charm and inherent beauty of the town remains unchanged. The Ireland Tourist Board, Bórd Fáilte, officially recognized the historical, cultural and environmental significance of Kenmare by bestowing up on it the title of Kerry’s first Heritage Town in Ireland.
Get Directions Buying property is a complicated process. With over 40 years’ experience working with buyers all over Ireland, we’ve researched and developed a selection of useful guides and resources to provide you with the insight you need..
From getting mortgage-ready to preparing and submitting your full application, our Mortgages division have the insight and expertise you need to help secure you the best possible outcome.
Applying in-depth research methodologies, we regularly publish market updates, trends, forecasts and more helping you make informed property decisions backed up by hard facts and information.
Need Help?
Our AI Chat is here 24/7 for instant support
Help To Buy Scheme
The property might qualify for the Help to Buy Scheme. Click here to see our guide to this scheme.
First Home Scheme
The property might qualify for the First Home Scheme. Click here to see our guide to this scheme.
