Thank you
Your message has been sent successfully, we will get in touch with you as soon as possible.
€925,000 Sale Agreed
Contact Us
Our team of financial experts are online, available by call or virtual meeting to guide you through your options. Get in touch today
Error
Could not submit form. Please try again later.
Oysterbed Road
Sneem
Co. Kerry
V93 PR94
Description
Features
Commanding Views of Kenmare Bay & Oysterbed Pier
Finished to an Exceptionally High Standard.
800 meters to Oysterbed pier.
Services:
Electricity
Oil central heating, under floor. Oil boiler replaced in 2024.
Septic tank.
Fiber broadband available.
Mains water.
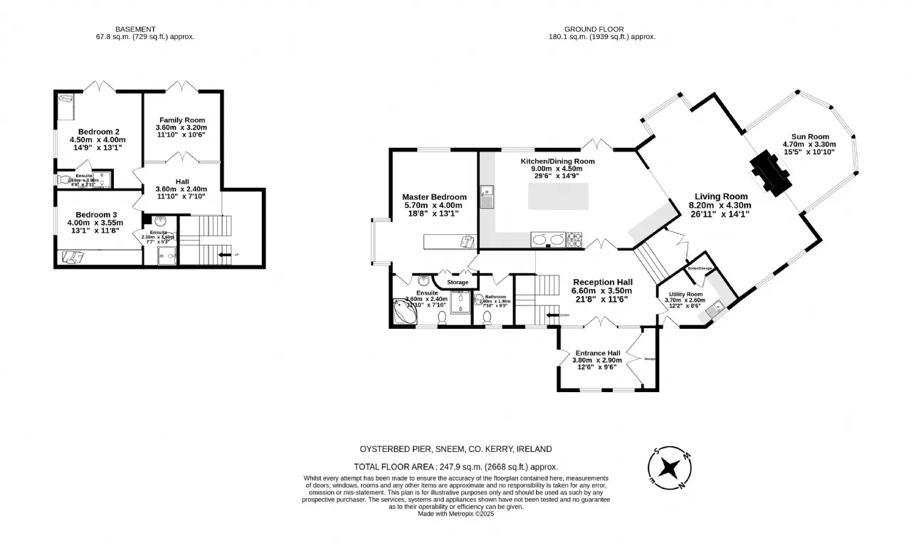
Rooms
Living Room Striking double-height ceiling enhances the sense of space in the living area, where a dramatic stone feature fireplace with a dual wood-burning stove serves as a stunning focal point.
Sun Room A relaxing sunroom, set just off the living room, enjoys the warmth of the dual-sided fireplace. With views over the garden, it’s an ideal space to unwind and take in the peaceful surroundings.
Kitchen/Dining room The bespoke fitted kitchen has been beautifully crafted and features a large central island with a breakfast counter, perfect for casual dining and entertaining. The AGA range includes both oil and electric modules, combining traditional style with modern convenience. Premium Bosch appliances, including a built-in microwave and dishwasher, were fitted in 2024. The kitchen also features an Annana American-style double fridge freezer, combining functionality with sleek design. Adjacent to the kitchen, the dining area opens directly onto the terrace through elegant French doors, seamlessly connecting indoor and outdoor living.
Master bedroom The master bedroom features dual-aspect windows offering panoramic views of Kenmare Bay and Oysterbed Pier. A window seat provides the perfect spot to sit and read while enjoying the stunning scenery. The room also includes ample storage with beautifully fitted wardrobes.
Ensuite Fully tiled en-suite bathroom featuring a power shower, toilet, and sink.
Guest Toilet Beautifully finished guest toilet with a modern toilet and sink.
Utility Room Ample fitted storage units with a sink, walnut floor. Equipped with a Bosch washing machine and Nordmende dryer. The room also includes a storage area for the hot water tank and a door providing direct access to the garden.
Ground Floor
Bedroom 2 A double bedroom with French doors opening onto the lower terrace—an ideal spot for soaking up the sun and relaxing. The room also benefits from fitted wardrobes for ample storage.
Bedroom 3 Double bedroom with wall to wall fitted wardrobe.
Guest Lounge Guest lounge with access to the lower terrace.
Detached Garage This spacious 36 sqm (387 sq. ft.) detached garage offers excellent potential for storage, a workshop, or hobby space. The exterior is finished in attractive natural native stone, blending seamlessly with the surroundings. Equipped with electricity, it's ready to accommodate a variety of practical or creative uses.
BER Information
BER Number: 11852761
Energy Performance Indicator: 35.41 kgCO2
About the Area
Sneem (Irish: An tSnaidhm) is a town situated on the Iveragh Peninsula, which is part of the Ring of Kerry. It lies on the estuary of the River Sneem and the National route N70 runs through the town. The Irish town name, "An tSnaidhm", means "The Knot" in English. One explanation of the name is that a knot-like swirling is said to take place where the Sneem river meets the currents of Kenmare Bay in the estuary just below the village.
Sneem village comprises two squares, North and South. A bridge in the middle of the village, viewed from overhead, acts as a knot between the two squares. A less common explanation is that Sneem is the knot in the scenic Ring of Kerry. A book, Sneem, The Knot in the Ring, recounts the area's history. In 2000, a time capsule was buried in the centre of the town, to be opened in 2100.
Get Directions Buying property is a complicated process. With over 40 years’ experience working with buyers all over Ireland, we’ve researched and developed a selection of useful guides and resources to provide you with the insight you need..
From getting mortgage-ready to preparing and submitting your full application, our Mortgages division have the insight and expertise you need to help secure you the best possible outcome.
Applying in-depth research methodologies, we regularly publish market updates, trends, forecasts and more helping you make informed property decisions backed up by hard facts and information.
Need Help?
Our AI Chat is here 24/7 for instant support
Help To Buy Scheme
The property might qualify for the Help to Buy Scheme. Click here to see our guide to this scheme.
First Home Scheme
The property might qualify for the First Home Scheme. Click here to see our guide to this scheme.
