Thank you
Your message has been sent successfully, we will get in touch with you as soon as possible.
€290,000 Sold
Contact Us
Our team of financial experts are online, available by call or virtual meeting to guide you through your options. Get in touch today
Error
Could not submit form. Please try again later.
2 The Willows
Riverbank
Annacotty
Limerick
Description
The Riverbank development is superbly located just minutes from the village of Annacotty. Within walking distance are an excellent selection of residential amenities, including renowned primary and secondary schools, popular shops and award winning restaurants. The Plassey Technological Park and Annacotty Business Park are just a stone’s throw away, as is the University of Limerick and its beautiful riverside walks. For those commuting further afield, the road networks are within immediate striking distance, offering ease of access to Limerick City and beyond.
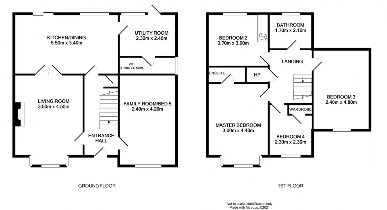
Inside the property, you come through to a spacious entrance hall containing a valuable under stair cloakroom, with both reception rooms to your left and right. The reception room on the right could also be used as a study or home-office, it also has the potential to be used as a fifth bedroom.
The living room features a feature open fireplace and bay-style window overlooking the front lawn. In the kitchen/dining room, patio doors provide access to the garden along with plenty of natural light. A fitted kitchen contains an integrated oven, gas hob, with further appliances located in the fully plumbed utility, the WC is accessed via the utility.
Upstairs there are a total of 4 excellent bedrooms, three of them double, along with a main bathroom. All bedrooms benefit from fitted wardrobes, the master bedroom contains a generous ensuite with full shower facilities.
Accommodation:
Ent Hall, Living Room, Family Room, Kitchen/Dining, Utility, WC, 4 Bedrooms (3 Double), Ensuite, Main Bath
Garden:
Front lawn with off street parking. Generous secure rear garden in lawn with patio area, shed and side access.
Services:
125 Sqm. approx. , C1 BER, Off Street Parking, Side Access
Contact Us
Our team of financial experts are online, available by call or virtual meeting to guide you through your options. Get in touch today
Thank you
Your message has been sent successfully, we will get in touch with you as soon as possible.
Error
Could not submit form. Please try again later.
BER Information
BER Number: 113726236
Energy Performance Indicator: 160.18 kWh/m²/yr
About the Area
Annacotty (Irish: Áth an Choite) originally grew up around the grain mills which harnessed the water power of the Mulkear. One was beside the bridge itself and has now been restored as bar and restaurant and the second was 1 km (0.62 mi) upstream at Ballyclough. With the expansion of Limerick from 1990, Annacotty has been swallowed up into the rapidly growing suburb of Castletroy. The N7, which originally ran though the main street, bypassed the village as it was then, in 1980 when a new bridge was built over the Mulkear 100m downstream. That, in turn, was superseded by the building of the Limerick Southern Ring Road which crossed the river 1 km (0.62 mi) upstream at Ballyclough.
Get Directions Buying property is a complicated process. With over 40 years’ experience working with buyers all over Ireland, we’ve researched and developed a selection of useful guides and resources to provide you with the insight you need..
From getting mortgage-ready to preparing and submitting your full application, our Mortgages division have the insight and expertise you need to help secure you the best possible outcome.
Applying in-depth research methodologies, we regularly publish market updates, trends, forecasts and more helping you make informed property decisions backed up by hard facts and information.
Need Help?
Our AI Chat is here 24/7 for instant support
Help To Buy Scheme
The property might qualify for the Help to Buy Scheme. Click here to see our guide to this scheme.
First Home Scheme
The property might qualify for the First Home Scheme. Click here to see our guide to this scheme.
