Thank you
Your message has been sent successfully, we will get in touch with you as soon as possible.
€495,000
Contact Us
Our team of financial experts are online, available by call or virtual meeting to guide you through your options. Get in touch today
Error
Could not submit form. Please try again later.
Sunset Villa
3 Rathbawn Road
Castlebar
Co. Mayo
F23 HY82
Description
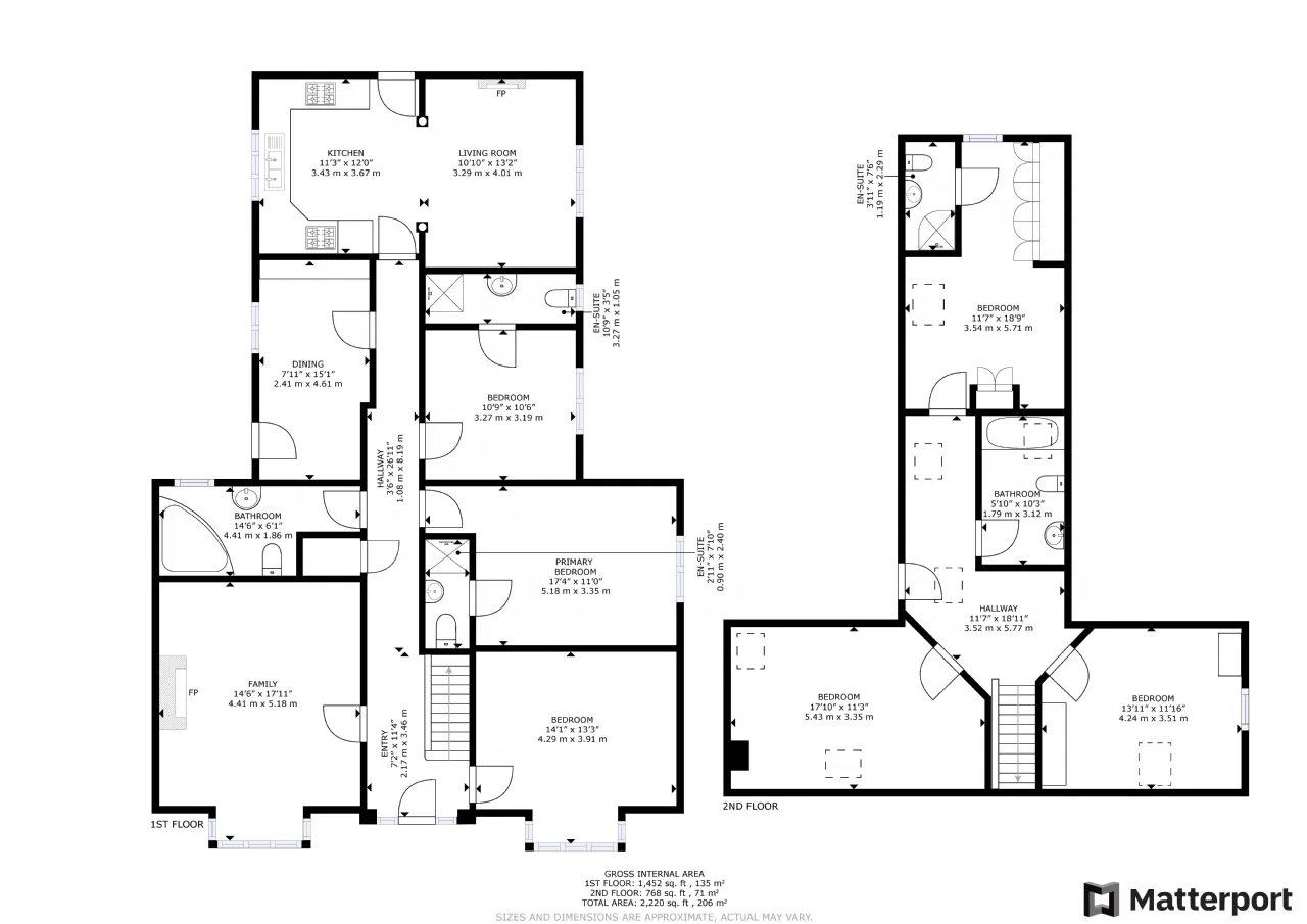
Internally the accommodation on the ground floor comprises an entrance hallway, sitting room, dining room, living room, kitchen, bathroom and three double bedrooms, two of which have their own en-suites. The first floor is laid out as three exceptionally spacious double bedrooms (one en-suite) and a family bathroom.
The dwelling is presented to the market in excellent condition throughout out and is serviced by mains connections for all utilities. Heating is provided by a dual heating system off oil and solid fuel.
Features
Town Centre Location.
6 beds / 5 baths.
Rear Garden and sheds.
Private off-street parking.
Rooms
Entrance Hall 2.18m x 3.45m with laminate flooring.
Hallway 1.07m x 8.2m with laminate flooring.
Sitting room 4.42m x 5.46m with bay window, solid fuel stove, built-in units and wooden floors.
Bedroom 1 4.3m x 4.04m with bay window and laminate floors.
Bedroom 2 5.28m x 3.35m with wooden floors and en-suite.
En-Suite 1.2m x 2.29m with wc, wash hand basin and shower cubicle. Fully tiled from floor to ceiling.
Bathroom 1.78m x 3.12m with wc, wash hand basin and bath. Fullly tiled from floor to ceiling with ceramics.
Dining room 2.41m x 4.6m with wooden floor and built in units.
Bedroom 3 3.28m x 3.2m with wooden floors and en-suite.
Living Room 3.3m x 4.01m with laminate flooring.
Kitchen 3.43m x 3.66m with fully fitted kitchen units and ceramic floor tiles.
First Floor
Landing 3.53m x 5.77m
Bedroom 4 4.24m x 3.76m with laminate flooring, fitted wardrobes and velux windows.
Bedroom 5 5.44m x 3.43m with laminate flooring and velux windows.
Bedroom 6 3.53m x 5.72m with fitted wardrobes and en-suite.
Shed
BER Information
BER Number: 116254236
Energy Performance Indicator: 193.41
About the Area
Castlebar is the largest town in Mayo, by population. Castlebar's population boomed in the late 1990s, rising by one-third in six years, and the town is still growing. According to the 2011 Census it stands at 10,826. A campus of Galway-Mayo Institute of Technology and the Country Life section of the National Museum of Ireland are two important local amenities. The town is linked by railway to Dublin, Westport and Ballina. The town is surrounded by several villages. The main route to the area by road is the N5.
Get Directions Buying property is a complicated process. With over 40 years’ experience working with buyers all over Ireland, we’ve researched and developed a selection of useful guides and resources to provide you with the insight you need..
From getting mortgage-ready to preparing and submitting your full application, our Mortgages division have the insight and expertise you need to help secure you the best possible outcome.
Applying in-depth research methodologies, we regularly publish market updates, trends, forecasts and more helping you make informed property decisions backed up by hard facts and information.
Need Help?
Our AI Chat is here 24/7 for instant support
Help To Buy Scheme
The property might qualify for the Help to Buy Scheme. Click here to see our guide to this scheme.
First Home Scheme
The property might qualify for the First Home Scheme. Click here to see our guide to this scheme.
