Thank you
Your message has been sent successfully, we will get in touch with you as soon as possible.
€745,000 Sold
Contact Us
Our team of financial experts are online, available by call or virtual meeting to guide you through your options. Get in touch today
Error
Could not submit form. Please try again later.
Golf Course Road
Carrowholly
Westport
Co Mayo
F28 E207
Description
Built circa 1981, the house has been maintained and upgraded over the years to provide a superb family home. Refurbishment works include a recently fitted kitchen, quality ash floors in the reception rooms and renovated bathrooms.
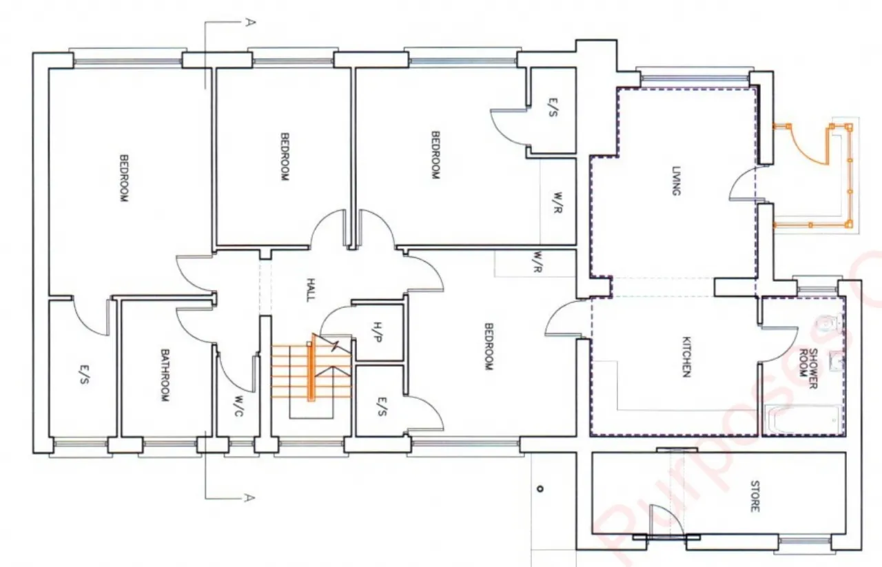
The house is entered via a flight of steps leading to a south and west facing terrace. The spacious floor area measures approximately 259.9 sq m/ 2,798 sq ft with the well proportioned reception rooms situated on the upper floor to maximise light and views. This floor’s accommodation comprises of entrance hall, sitting room, living room, formal dining room, substantial kitchen/casual dining room which opens on to a small terrace with countryside views, an office, utility and WC.
On the lower floor there are three double bedrooms (two en-suite) and a bathroom. In addition, there is a recently refurbished suite of rooms with living/dining/kitchen, a fourth double en-suite bedroom and shower room. With both internal access and their own front door entrance, these rooms offer potential to be utilised as a granny flat or visitor’s space.
Externally, the attractively landscaped site measures approximately 0.74 acres. The house is tucked away from sight with a sweeping driveway edged with mature trees and shrubs. There are spacious family friendly lawn areas to the front and rear and a south facing stone terrace to the front.
Carrowholly is a popular residential area with the house conveniently located just 4 km from Westport town. There is a wide range of amenities nearby including Carrowholly National School and Westport Golf Course, football, rugby and sailing clubs.
OFFERS IN EXCESS OF €745,000
PLEASE NOTE THAT ALL VIEWINGS ARE STRICTLY BY APPOINTMENT ONLY. UNDER NO CIRCUMSTANCES SHOULD ANYBODY VISIT THE PROPERTY UNLESS ACCOMPANIED BY AN AGENT.
Features
Superb views
High standard of finishes throughout
Optional self-contained accommodation space
Oil heating with grant vortex condensing boiler
Landscaped private site of approx. 0.74 acre
Rooms
Sitting Room 5.0m x 3.15m Dual aspect room with Croagh Patrick views, ash floor, marble fireplace with inset stove, curtains
Living Room 6.0m x 4.4m Triple aspect room with Croagh Patrick views, feature stone fireplace with solid fuel stove, blinds
Formal Dining Room 4.45m x 3.7m Ash floor, Croagh Patrick views, curtains
Kitchen/Dining Room 6.9m x 3.36m & 3.5m x 2.3m Substantial dual aspect room with Croagh Patrick views, porcelain tiled floor, two tone slab kitchen with quartz countertops, undermounted sink. pull out larder, integrated double oven, hob, microwave and fridge freezer, door to terrace overlooking back garden
Utility Room 2.7m x 1.9m Tiled floor, built in floor and wall units, attic access
Office/Study 4.85m x 3.1m Oak laminate floor, built in storage, blinds
WC 1.5m x 1.25m Tiled floor and part tiled walls, wc, whb
Storage Press 1.2m x 0.8m
Lower Hallway 4.5m x 1.0m & 3.4m x 3.0m Engineered oak floor
Bedroom One 4.9m x 3.45m Engineered oak floor, bank of built in wardrobes and drawers, curtains
En-Suite 1.6m x 1.1m Fully tiled, shower, whb
Bedroom Two 3.9m x 3.0m Engineered oak floor, built in wardrobes, curtains
Bedroom Three 4.85m x 3.95m Engineered oak floor, built in wardrobes, curtains (measurement includes en-suite)
Bathroom 3.0m x 1.9m Newly refurbished, fully tiled, bath, wc, whb, built in shelving
Storage Room 2.2m x 0.95m Tiled, plumbed
Hotpress 2.1m x 1.3m
Living/Dining/Kitchen 7.74m x 3.72m Laminate floor, oak pvc kitchen, electric fire, blinds
Bedroom Four 4.13m x 3.4m Engineered oak floor, built in wardrobes, curtains
Shower Room 3.0m x 1.78m Fully tiled wetroom, shower, sink unit, wc
Sunroom/Entrance Porch 2.2m x 1.7m Door to front garden, laminate floor
BER Information
BER Number: 117763375
Energy Performance Indicator: 180.07
About the Area
Westport is a town in County Mayo, situated at the south-east corner of Clew Bay, an inlet of the Atlantic Ocean. It is a popular tourist destination, and scores highly for Quality of Life. It has also won the prestigious Irish Tidy Towns Competition three times; in 2001, 2006 and 2008. In 2012 it won the Best Place to Live in Ireland competition run by The Irish Times. This highlights the strong community values in the area.
Between the last two censuses (2006 and 2011) the town has shown growth in population, from 5163 to 5543.
Get Directions Buying property is a complicated process. With over 40 years’ experience working with buyers all over Ireland, we’ve researched and developed a selection of useful guides and resources to provide you with the insight you need..
From getting mortgage-ready to preparing and submitting your full application, our Mortgages division have the insight and expertise you need to help secure you the best possible outcome.
Applying in-depth research methodologies, we regularly publish market updates, trends, forecasts and more helping you make informed property decisions backed up by hard facts and information.
Need Help?
Our AI Chat is here 24/7 for instant support
Help To Buy Scheme
The property might qualify for the Help to Buy Scheme. Click here to see our guide to this scheme.
First Home Scheme
The property might qualify for the First Home Scheme. Click here to see our guide to this scheme.
