Thank you
Your message has been sent successfully, we will get in touch with you as soon as possible.
€400,000 Sold
Contact Us
Our team of financial experts are online, available by call or virtual meeting to guide you through your options. Get in touch today
Error
Could not submit form. Please try again later.
The Old School House
Loman Street
Trim
C15 XT25
Description
Features
Oil fired central heating with condenser boiler
Driveway to side of property
Enclosed back cottage garden with wooden garden shed
Double glazed sash windows
Original interior doors with brass knobs
Wrought iron pedestrian gate
Solid wood double vehicular gates at side entrance
Rooms
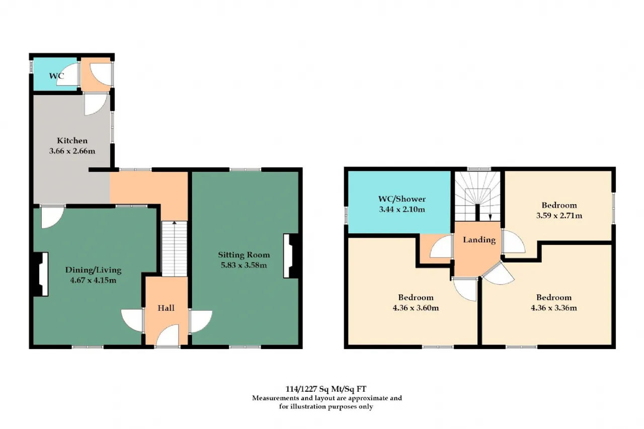
Sitting Room Original cast iron fireplace with tiled insert and open fire. Wall lights. Picture and dado rails. Dual aspect room. Wide plank laminate wood floor.
Living Room Original cast iron fireplace with mahogany overmantle and open fire. Laminate wide plank wood floor. Partly panelled walls.
Inner hall Wide plank laminate wood floor. Understairs storage.
Kitchen Cream fitted floor and wall presses with single drainer sink unit and tiled over countertop. Plumbed with Bosch dishwasher, Nordmende free standing electric cooker, Belling fridge. Wood effect floor tiles.
Back hall Glazed hardwood back door. Wood effect tiled floor. Coat and hat rail with shelf.
Toilet w.c. wash hand basin. Tiled floor and partly tiled walls. Velux window.
Landing Original wood floor.
Bedroom 1 Original cast iron fireplace. Laminate wood floor.
Bedroom 2 Original cast iron fireplace. Laminate wood floor and fitted 2 door wardrobe.
Bedroom 3 Laminate wood floor. Panelled ceiling with recessed lighting.
Shower Room w.c. wash hand basin with wall mounted circular mirror over. Tiled shower with Triton Novel sr instant electric unit. Wide plank laminate wood floor.
BER Information
BER Number: 117011072
Energy Performance Indicator: 110.07kgco2/m2/yr
About the Area
Trim (Irish: Baile Átha Troim) is situated on the River Boyne, and has a population of approximately 9,000. This charming, well planned town attracts a large number of visitors and has now developed a reputation as being the gourmet capital of the North East. The town has a host of excellent hotels including Knightsbrook, Trim Castle and Castle Arch and has now established itself as a go-to location for dining out with a number of first class restaurants. The town is noted for Trim Castle - the largest Anglo-Norman castle in Ireland. Trim has won the prestigious Irish Tidy Towns Competition several times, including a Gold Medal in 2014, highlighting the strong sense of community. There is a regular bus service to Blanchardstown and Dublin City. Trim has excellent schools including five primary and two secondary schools.
Get Directions Buying property is a complicated process. With over 40 years’ experience working with buyers all over Ireland, we’ve researched and developed a selection of useful guides and resources to provide you with the insight you need..
From getting mortgage-ready to preparing and submitting your full application, our Mortgages division have the insight and expertise you need to help secure you the best possible outcome.
Applying in-depth research methodologies, we regularly publish market updates, trends, forecasts and more helping you make informed property decisions backed up by hard facts and information.
Need Help?
Our AI Chat is here 24/7 for instant support
Help To Buy Scheme
The property might qualify for the Help to Buy Scheme. Click here to see our guide to this scheme.
First Home Scheme
The property might qualify for the First Home Scheme. Click here to see our guide to this scheme.
