Thank you
Your message has been sent successfully, we will get in touch with you as soon as possible.
€550,000 Sold
Contact Us
Our team of financial experts are online, available by call or virtual meeting to guide you through your options. Get in touch today
Error
Could not submit form. Please try again later.
Highmede
Mount Alexander
Gorey
Co. Wexford
Y25 XK26
Description
The modern family home enjoys the benefits a large kitchen/dining room, a sunroom and a separate sitting room, an office, the first of five bedrooms with ensuite all on the ground floor. A family bathroom and four generously sized double bedrooms, two of which have ensuite, while the Master suite has an ensuite and a walk-in wardrobe and completes the accommodation on the first floor.
Outside to the front of the property is a generous tarmacadam driveway and parking area with large mature trees and shrubbery providing privacy and seclusion. There is also a detached garage while to the rear, a sun filled patio area is surrounded by a well-kept lawn and garden.
Viewing is highly recommended to experience this idyllic lifestyle. With the beach only a short distance away, this perfect location and property is sure to strike a chord with families or the person looking to find a beautiful coastal getaway with all amenities on your doorstep.
Features
• Excellent location
• 5 minutes from Gorey, 1 hour from Dublin
Rooms
Entrance hallway 8.44m x 3.86m at widest point, tiled flooring.
Office 3.10m x 4.40m solid wood flooring and built-in storage.
Bedroom 1 4.58m x 3.68m solid wood flooring.
Ensuite 2.30m x 2.60m tiled flooring and walls, shower, WC and wash hand basin.
Living room 5.78m x 3.86m solid wood flooring, feature open fireplace with inset stove, glass panel french doors and TV point.
Sunroom 3.30m x 5.40m solid wood flooring, exposed timber ceiling beams, TV point, double height ceiling and glass double doors to patio.
Kitchen/Dining 8.68m x 6.25m tiled flooring and backsplash, fitted shaker kitchen units, 6 ring gas range, integrated dishwasher and integrated fridge freezer.
Guest WC/Utility 2.30m x 1.50m tiled flooring and walls, WC, wash hand basin, plumbed for washing machine and dryer.
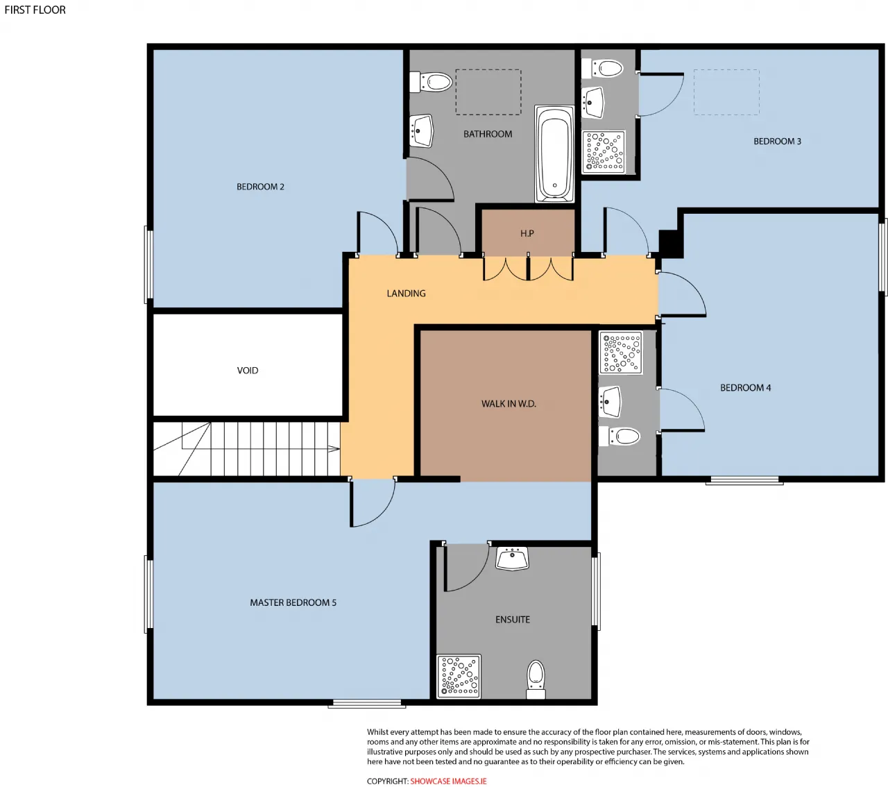
FIRST FLOOR
Landing 1.20m x 3.75m at widest point, carpet flooring.
Bedroom 2 4.15m x 4.40m at widest point, solid wood flooring and door to main bathroom.
Bathroom 2.83m x 3.30m at widest point, tiled flooring and walls, Jacuzzi bath, shower, WC, wash hand basin and Velux window.
Bedroom 3 3.80m x 3.33m at widest point, solid wood flooring and built-in wardrobes.
Bedroom 4 3.40m x 4.40m at widest point, solid wood flooring and built-in sliderobes.
Master Bedroom 5 4.58m x 3.68m at widest point, carpet flooring.
Walk-in wardrobe 2.63m x 2.45m carpet flooring and built-in storage units.
BER Information
BER Number: 111221347
Energy Performance Indicator: 163.32 kWh/m²/yr
About the Area
Ask anyone about North Wexford in the Sunny South East and you will get a flood of loving sentiment and nostalgia. It is no surprise that over 35 businesses chose North Wexford, and many more joining up on a daily basis. Over 35 individual businesses have signed up for the 'Voucher' in Gorey. This is a unique venture with vouchers able to be redeemed at any one of the participating shops, restaurants and hotels.
Aside from its proximity to Dublin, residents enjoy the availablility of amenities and facilities in the town itself, while also experiencing the enjoyment of the nearby sprawling countryside, with its open fields and pastoral landscape, teeming with rich vegetation and wildlife.
Get Directions Buying property is a complicated process. With over 40 years’ experience working with buyers all over Ireland, we’ve researched and developed a selection of useful guides and resources to provide you with the insight you need..
From getting mortgage-ready to preparing and submitting your full application, our Mortgages division have the insight and expertise you need to help secure you the best possible outcome.
Applying in-depth research methodologies, we regularly publish market updates, trends, forecasts and more helping you make informed property decisions backed up by hard facts and information.
Need Help?
Our AI Chat is here 24/7 for instant support
Help To Buy Scheme
The property might qualify for the Help to Buy Scheme. Click here to see our guide to this scheme.
First Home Scheme
The property might qualify for the First Home Scheme. Click here to see our guide to this scheme.
