Thank you
Your message has been sent successfully, we will get in touch with you as soon as possible.
€595,000 Sale Agreed
Contact Us
Our team of financial experts are online, available by call or virtual meeting to guide you through your options. Get in touch today
Error
Could not submit form. Please try again later.
Chapel Gardens
Kilmore Quay
Co. Wexford
Y35 WD99
Description
This exceptional 191 sqm detached stone home sits on approximately 2.5 acres and offers privacy, space, and sustainability in one of Wexford’s most desirable coastal settings. Only 2 km from Kilmore Quay village, it provides seclusion without losing easy access to amenities and transport links.
Originally built in 1888, this unique property blends heritage and modern living. Exposed beams, flagstones, and stained-glass details preserve its charm, while contemporary upgrades provide year-round comfort. A 20-panel PV solar system spans two roof arrays on the outbuilding, capturing early morning and day-to-evening sun to generate electricity and hot water through a smart switch. The system is battery-ready for future storage which will further decrease energy bills. Additional features include an EV charger, oil-fired heating with a new boiler installed in December 2024, mains water, and fibre broadband.
The interior is light-filled and welcoming. The large open-plan kitchen, dining, and living area connects naturally through stone and timber finishes, with a 12 kw room heater feature stove as its centrepiece. Upstairs includes three bedrooms, each with its own character. The master bedroom features a generous walk-in wardrobe leading into a private en suite with timber flooring and a tiled mains shower, adding comfort and practicality.
Set within mature landscaped gardens that include lilies, wisteria, cherry blossom trees and dozens of rose bushes. The home enjoys multiple outdoor living areas including pathways that lead to a custom-built BBQ zone, fire pit, pergola, and thatched tiki hut for year-round entertaining. Beyond the gardens, private gated access opens to an adjoining 2-acre field (with existing road access) where the owners have planted over 2,500 native saplings as part of Ireland’s 100 Million Trees Project, creating a developing private woodland.
A substantial stone outbuilding includes a self-contained one-bedroom studio apartment with sea views from the skylights, a fully equipped gym with shower facilities, and a large garage/workshop with excellent storage. A detached home office cabin provides additional space for remote work or hobbies.
Kilmore Quay approx. 2 km, Wexford Town approx. 20 km, Bray approx. 140 km (90 minutes). Closest beaches include Kilmore Quay, Carne, and Cullenstown. National School in Kilmore village 3.6 km.
PV panels providing power and hot water (battery compatible)
New Oil boiler (Dec 2024)
Septic tank for 10 persons
Electric-gated access
Fibre broadband
Mains Water
EV charger
Features
Large garage with studio apartment overhead
Lots of original features throughout the home
A great combination of traditional features meeting with modern living
Large open family/entertainment area downstairs
3 bedrooms, bathroom and 2nd WC upstairs
Feels secluded but with easy access to main road routes and Kilmore Quay
Has to be seen to be fully appreciated
Rooms
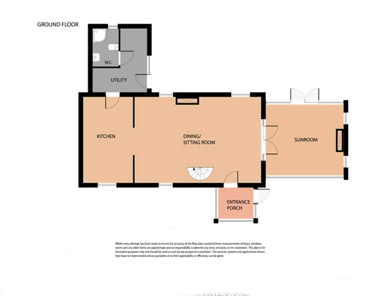
Kitchen/dining/living area 17.2m x 6.2m overall Large open plan area with lofted ceilings and lots of natural light. Features such as revealed brick and stone in the original walls and exposed ceiling beams. While the entire flows freely there are three distinct areas: Kitchen area with pine floor, waist and eye level units, integrated dishwasher and fridge freezer, Belfast sink, electric range and timber countertop. Dining/Living area one section with stone floor and the other with pine, feature stove and spiral staircase. Living area/sun room with flagstone flooring and French doors.
Utility Room 4m x 2.6m with flagstone flooring and ample storage. Feature half door, plumbed and with Belfast sink
Guest WC 1.6m x 0.8m with WC
Landing 2.5m x 2m and 3.4m x 1m with timber flooring, skylight and feature part-brick walls
Bathroom 2.7m x 2.4m with linoleum flooring, roll top bath, electric shower in glazed block surround, WC and WHB. Slylight allows for ventilation and natural light
Bedroom 1 4.5m x 3m with timber flooring, two sklylights and stained glass feature window, full of character with exposed beams and painted stone walls
Bedroom 2 3.5m x 3m with timber flooring, skylight and lovely sea view
Hot Press 1m x 0.8m shelved
Bedroom 3 5.7m x 3.8m with timber flooring, skylight, walls with revealed natural stone and painted stone, exposed beams
Walk through wardrobe 3.1m x 2.4m with timber flooring, side window (fire escape window) and ample built-in storage
En-Suite 2.3m x 1.5m with timber flooring, wainscotting, mains shower (tiled and 1.2m wide), WC, WHB feature window
OUTSIDE
Teepee shaped wood store with willow walls and thatched roof
Office Area 4m x 2m currently used for remote work
Gym Area 9.8m x 3.4m with block construction, concrete floor, stone finish, power, and tiled shower room with WC and WHB.
Garage Area 9.2m x 5m with concrete floor and vehicle access
OVERHEAD APARTMENT
Entrance Hall 2.2m x 2m with spiral staircase
Overall Area 9m x 5m with timber flooring, three skylights offering panoramic sea views, living area leading into bedroom with built-in storage, and an en-suite with WC, WHB, and mains shower.
Outdoor Features custom-built BBQ area, fire pit, pergola, thatched tiki hut, mature gardens, raised beds, and extensive cobble-locked areas for parking and recreation. Private gated access leads to a 2-acre field planted with over 2,500 native trees as part of Ireland’s 100 Million Trees Project.
BER Information
BER Number: 113908396
Energy Performance Indicator: 197.47
About the Area
No description
Get Directions Buying property is a complicated process. With over 40 years’ experience working with buyers all over Ireland, we’ve researched and developed a selection of useful guides and resources to provide you with the insight you need..
From getting mortgage-ready to preparing and submitting your full application, our Mortgages division have the insight and expertise you need to help secure you the best possible outcome.
Applying in-depth research methodologies, we regularly publish market updates, trends, forecasts and more helping you make informed property decisions backed up by hard facts and information.
Need Help?
Our AI Chat is here 24/7 for instant support
Help To Buy Scheme
The property might qualify for the Help to Buy Scheme. Click here to see our guide to this scheme.
First Home Scheme
The property might qualify for the First Home Scheme. Click here to see our guide to this scheme.
