€295,000 Sold
Contact Us
Our team of financial experts are online, available by call or virtual meeting to guide you through your options. Get in touch today
Error
Could not submit form. Please try again later.
Site @ Violet Hill
Rathdown Road
Greystones
Co.Wicklow
A63 VX52
Description
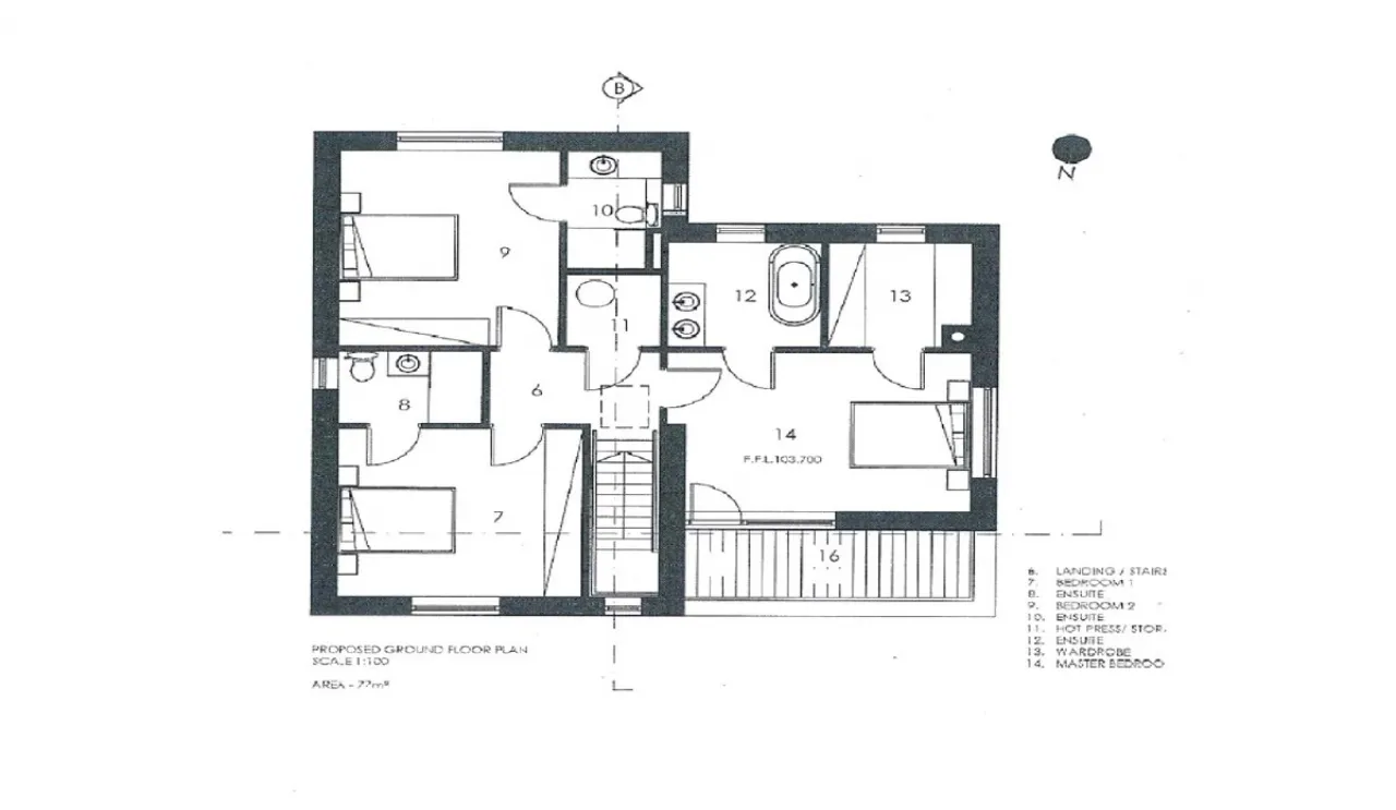
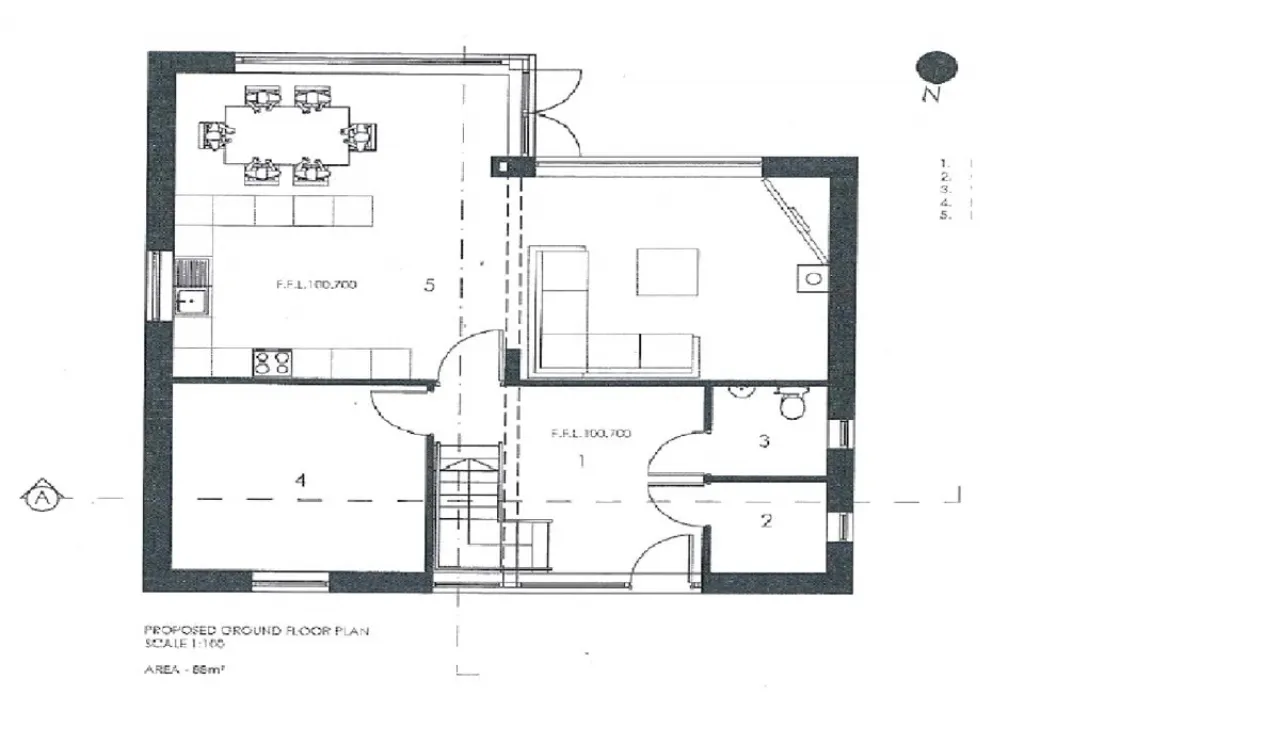
Boasting full planning permission (ref. 15/144) for a 165sq.m/1776sq.ft two storey, four bedroom detached home with a balcony and south facing orientation to the rear. The site at Violet Hill is ideally located just minutes walk to all primary and secondary schools. Also within easy walking distance is Greystones Harbour/Marina and the picturesque views along the seafront. For those wishing for more adventurous walking routes, the Greystones to Bray Cliff Walk is very popular.
Other essential amenities include a number of supermarkets, local park, library and medical clinics. Greystones boasts several excellent primary schools as well as two local secondary schools. Transport links include Greystones DART station, Dublin Bus routes, Aircoach and easy access to the N11/M50 network.
Contact Us
Our team of financial experts are online, available by call or virtual meeting to guide you through your options. Get in touch today
Thank you
Your message has been sent successfully, we will get in touch with you as soon as possible.
Error
Could not submit form. Please try again later.
Features
Fantastic opportunity to create your own bespoke family home
Views to the sea
Full planning permission for detached family home
Walking distance to all local primary and secondary schools
About the Area
The town of Greystones is located on the east coast just south of Bray Head. Originally a small fishing village, Greystones has grown significantly over the past number of years, but has not lost its friendly and welcoming village atmosphere. With frequent rail connections to Dublin and Wexford and excellent motorway access to the N11, Greystones is the ideal location for commuters. Superb restaurants, unique specialist shops, beaches, pubs, golf courses and driving range are all close to the town centre.
Rugby, soccer, hurling, Gaelic football, swimming, leisure centre activities, sailing, fishing, rowing, tennis, basketball and baseball are well catered for. The new Charlesland Sport and Recreation Park is Ireland’s premier sports facility with its magnificent running track, skateboard park and sporting fields.
Get Directions Buying property is a complicated process. With over 40 years’ experience working with buyers all over Ireland, we’ve researched and developed a selection of useful guides and resources to provide you with the insight you need..
From getting mortgage-ready to preparing and submitting your full application, our Mortgages division have the insight and expertise you need to help secure you the best possible outcome.
Applying in-depth research methodologies, we regularly publish market updates, trends, forecasts and more helping you make informed property decisions backed up by hard facts and information.
Need Help?
Our AI Chat is here 24/7 for instant support
Help To Buy Scheme
The property might qualify for the Help to Buy Scheme. Click here to see our guide to this scheme.
First Home Scheme
The property might qualify for the First Home Scheme. Click here to see our guide to this scheme.
