Thank you
Your message has been sent successfully, we will get in touch with you as soon as possible.
Rent on application
First Floor Office Suite
Bridgewater House
Rockwood Parade
Sligo City
Description
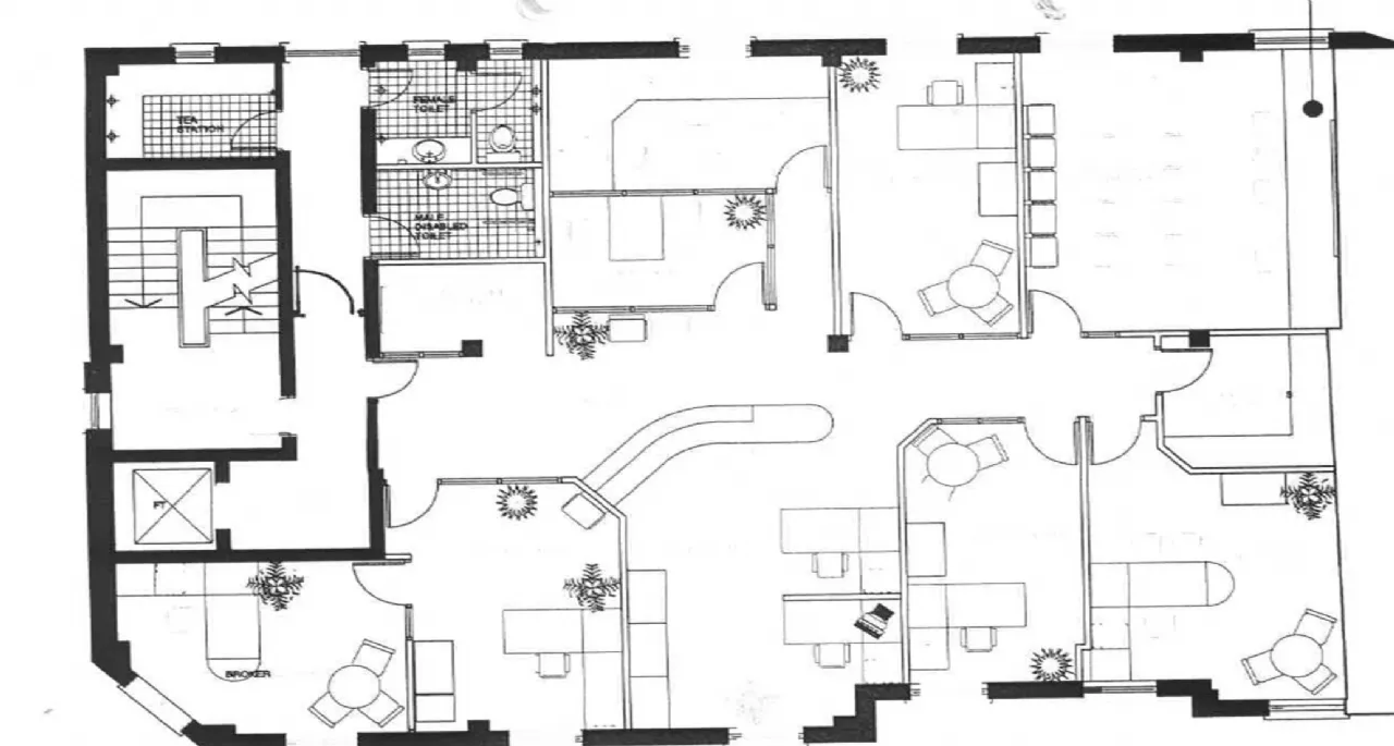
Currently layout includes a combination of part open plan plus individual offices, Meeting rooms. canteen, wcs etc.
All town centre services on its door step and ample public parking options nearby.
Building otherwise fully occupied including HSE, Legal Aid Board & Citizens Information Offices.
Energy upgrade proposed to A rating for new letting.
Service Charges include insurance, refuse, lift, common area lighting, cleaning etc €4760 approx.
Commercial Rates approx €5000 per annum.
About the Area
Sligo (Irish: Sligeach) is the county town, with a population of 19,452 in 2011. Sligo is a major economic, educational, administrative and cultural centre of Ireland's Border Region. The town is also an important tourist destination, owing mainly to the renowned natural beauty of the surrounding countryside and its literary and cultural associations. Situated on the coastal plain facing the Atlantic Ocean, the town is located on the banks of the Garavogue river between Lough Gill and the estuary leading to Sligo bay. Sligo has a vibrant nightlife, and is a popular destination for local residents and a sizable student population.
Get Directions Buying property is a complicated process. With over 40 years’ experience working with buyers all over Ireland, we’ve researched and developed a selection of useful guides and resources to provide you with the insight you need..
From getting mortgage-ready to preparing and submitting your full application, our Mortgages division have the insight and expertise you need to help secure you the best possible outcome.
Applying in-depth research methodologies, we regularly publish market updates, trends, forecasts and more helping you make informed property decisions backed up by hard facts and information.
Need Help?
Our AI Chat is here 24/7 for instant support
Help To Buy Scheme
The property might qualify for the Help to Buy Scheme. Click here to see our guide to this scheme.
First Home Scheme
The property might qualify for the First Home Scheme. Click here to see our guide to this scheme.
