Thank you
Your message has been sent successfully, we will get in touch with you as soon as possible.
€298,000 Sold
Contact Us
Our team of financial experts are online, available by call or virtual meeting to guide you through your options. Get in touch today
Error
Could not submit form. Please try again later.
6 Hazel Lodge
The Woodlands,Castleside Drive
Rathfarnham
Dublin 14
Description
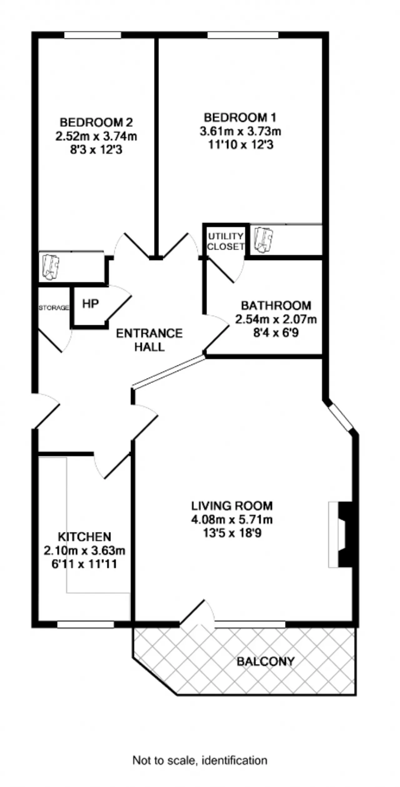
Extending 73.9sq.m/795sq.ft approx. the apartment comprises briefly; a large welcoming entrance hall, fully fitted kitchen, spacious living room with balcony, bathroom and two double bedrooms. Further features of this fine apartment include ample storage space including an attic and outside storage unit, west facing balcony and a parking space.
Castleside Drive has always been a popular choice amongst young professionals and retirees as it has everything for the discerning purchaser. Located in the heart of Rathfarnham Village, a wealth of amenities are only moments from its doorstep, including a variety of local shops, churches, regular bus routes, bars and restaurants and a stroll from beautiful parks and recreational facilities. Rathfarnham, Nutgrove and Dundrum shopping centres are just a short commute, as is the Luas, the city centre and the Dublin Mountains.
Suitable for a range of discerning purchasers, early viewing comes highly recommended!
Contact Us
Our team of financial experts are online, available by call or virtual meeting to guide you through your options. Get in touch today
Thank you
Your message has been sent successfully, we will get in touch with you as soon as possible.
Error
Could not submit form. Please try again later.
Features
Idyllic setting
Bright and spacious accommodation
Parking
Excellent location
West facing balcony
Attic and exterior storage
Electric Heating
Double Glazing throughout
Integrated fire alarm system
TV Points
Telephone Points
MD Management Company
Service Charge €1,200 p.a.
Rooms
Kitchen 3.63m x 2.10m
Living Room 5.71m x 4.08m
Bathroom 2.07m x 2.54m
Bedroom 1 3.73m x 3.61m
Bedroom 2 3.74m x 2.52m
BER Information
BER Number: 100521996
Energy Performance Indicator: 404.64
About the Area
Rathfarnham is a Southside suburb of Dublin, beside Terenure and Templeogue. The area has a wide range of shops and businesses, including two bank branches, notably in the Nutgrove Shopping Centre and Rathfarnham Shopping Centre. There is also a Garda Station, two post offices, and is home to the city's main animal shelter. Rathfarnham is home to a number of parks, including Marlay Park, and two golf clubs, and it is served by a range of buses.
Get Directions Buying property is a complicated process. With over 40 years’ experience working with buyers all over Ireland, we’ve researched and developed a selection of useful guides and resources to provide you with the insight you need..
From getting mortgage-ready to preparing and submitting your full application, our Mortgages division have the insight and expertise you need to help secure you the best possible outcome.
Applying in-depth research methodologies, we regularly publish market updates, trends, forecasts and more helping you make informed property decisions backed up by hard facts and information.
Need Help?
Our AI Chat is here 24/7 for instant support
Help To Buy Scheme
The property might qualify for the Help to Buy Scheme. Click here to see our guide to this scheme.
First Home Scheme
The property might qualify for the First Home Scheme. Click here to see our guide to this scheme.
