Thank you
Your message has been sent successfully, we will get in touch with you as soon as possible.
€675,000
Contact Us
Our team of financial experts are online, available by call or virtual meeting to guide you through your options. Get in touch today
Error
Could not submit form. Please try again later.
21 George's Street Upper
Dun Laoghaire
Co. Dublin
A96 E78Y
Description
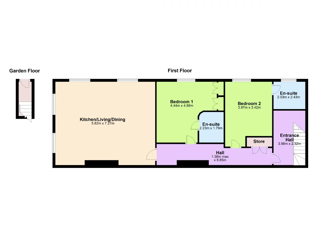
Welcome to No. 21 — a truly outstanding, own-door, two-bedroom apartment spanning an impressive 110 sq.m. With a B2 energy rating and a bespoke interior, this beautifully renovated home is one of Dun Laoghaire’s finest.
Elegance, Comfort & Character
When the current owners acquired No. 21, their vision was clear: to create a home that blends central convenience with exceptional comfort, style, and individuality. Through a meticulous renovation, they have achieved just that.
From the outside, the building presents a classic Victorian streetscape — vibrant with shops, restaurants, and the lively rhythm of urban life. Tucked away discreetly on the corner of Northumberland Road , the private entrance to No. 21 opens to a panelled staircase leading to a spacious first-floor landing, complete with generous storage, attic access, and a stunning herringbone floor.
Stylish Interiors with Thoughtful Design
A Crittall-style door opens to an elegant inner hall, continuing the herringbone flooring and offering a large utility closet and additional storage. At the end of the hall, another Crittall-style door reveals the showpiece reception room — a bright, airy space with feature 3m ceilings and four original double-glazed sash windows with restored shutters. This room features a bespoke modern kitchen with integrated appliances, a large island unit, and luxurious marble countertops — all set against the backdrop of the warm hardwood herringbone floor.
Two Luxurious Bedrooms
The apartment includes two spacious double bedrooms, each with beautifully designed ensuite bathrooms, offering privacy and comfort in equal measure.
Unbeatable Location
Situated on Dun Laoghaire’s main street at the corner of Northumberland Avenue, every amenity is just steps away. Residents benefit from parking for two cars via residential disk entitlement, and the Dart station and Harbour are both within a five-minute stroll.
Contact Us
Our team of financial experts are online, available by call or virtual meeting to guide you through your options. Get in touch today
Thank you
Your message has been sent successfully, we will get in touch with you as soon as possible.
Error
Could not submit form. Please try again later.
Features
B2 energy rating
Bespoke interiors
Feature main reception and bespoke kitchen
Gas Fired Central heating
Wonderful central location
5 minutes walk to the Dart and the sea
Integrated video alarm system
Two bedrooms both ensuite
Fully upgraded and modernised by the current owners
Double glazed sash windows
Rooms
Living / kitchen / dining Wonderful bright main reception with four large double glazed sash windows, original shutters, wonderful hardwood Herringbone floor, attractive braided walls and a bespoke sleek designer kitchen. The kitchen features ample wall and floor units, built in appliances, a large Island, and marble work tops. The entire area features high ceilings, bespoke lighting and braided walls. Bespoke cabinetry and radiator covers.
Bedroom one Fine double bedroom featuring wonderful high ceilings. Ceiling coving and inset lights. Extensive built in wardrobes and door to Shower room ensuite.
Ensuite Attractive natural stone tiled floor and walls. Modern rectangular wash hand basin with vanity unit. Heated towel rail and inset lights. Wc. Fully tiled shower with rainwater shower head. Extractor.
Bedroom 2 Another large double room positioned overlooking Northumberland Avenue as per bedroom one. Both feature double glazed sash windows also. Ceiling coving and inset lights. Lovely and bright with door to shower room ensuite.
BER Information
BER Number: 108732306
Energy Performance Indicator: 116.51 kWh/m²/yr
About the Area
Dún Laoghaire is a charming seaside town, about 12 km (7.5 miles) south of Dublin's City Centre. The harbour, one of the largest in the country, is notable for its two attractive granite piers. The East Pier and the promenade is particularly popular with walkers. Dún Laoghaire is home to a host of amenities, including a large multiplex cinema, two shopping centres, The People's Park, and countless shops and businesses. Locals are walking distance from the famous '40ft' swimming area, Monkstown Village and Glasthule Village. The area is a central hub for public transport, serving as a bus terminus, and it is easily accessible via Salthill, Dún Laoghaire and Sandycove DART stations.
Get Directions Buying property is a complicated process. With over 40 years’ experience working with buyers all over Ireland, we’ve researched and developed a selection of useful guides and resources to provide you with the insight you need..
From getting mortgage-ready to preparing and submitting your full application, our Mortgages division have the insight and expertise you need to help secure you the best possible outcome.
Applying in-depth research methodologies, we regularly publish market updates, trends, forecasts and more helping you make informed property decisions backed up by hard facts and information.
Need Help?
Our AI Chat is here 24/7 for instant support
Help To Buy Scheme
The property might qualify for the Help to Buy Scheme. Click here to see our guide to this scheme.
First Home Scheme
The property might qualify for the First Home Scheme. Click here to see our guide to this scheme.
