Thank you
Your message has been sent successfully, we will get in touch with you as soon as possible.
€640,000 Sale Agreed
Contact Us
Our team of financial experts are online, available by call or virtual meeting to guide you through your options. Get in touch today
Error
Could not submit form. Please try again later.
6 The Elms
Grove House
Milltown
Dublin 6
Description
The well-appointed accommodation has been tastefully upgraded and well maintained throughout by its current owners.
This fine apartments boasts generously proportioned rooms, a secure underground car parking space with ample visitor parking and an enviable South facing balcony terrace capturing sun throughout the day with beautiful vistas over the perfectly maintained landscaped lawns and communal grounds and towards the Dublin mountains.
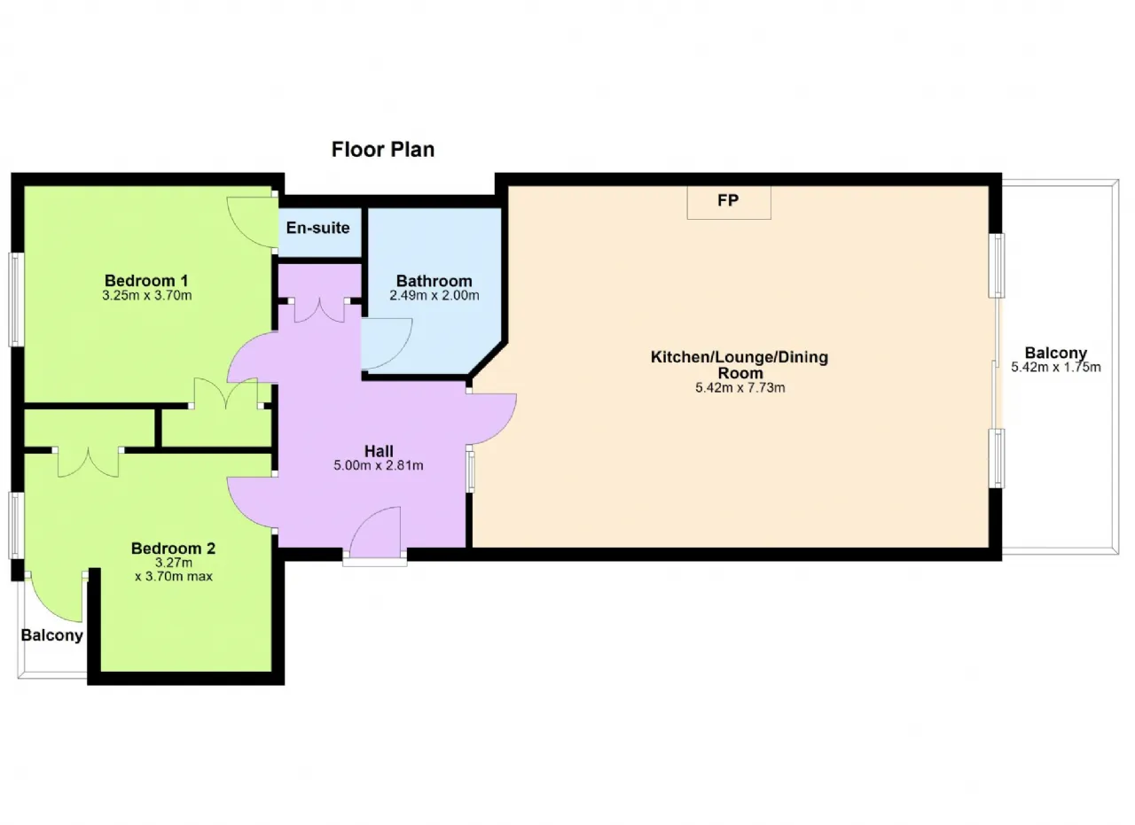
The bright and spcious accommodation comprises a wide entrance hall leading to impressive open plan living/dining/kitchen room with feature fireplace. Due to the extensive use of glass, this open plan room enjoys excellent natural light and has direct access to the balcony via the glazed sliding patio doors.
There are two large double bedrooms one with en-suite WC. A large shower room/utility completes the accommodation.
The location is second to none, as it is within a gentle stroll of the villages of Milltown, Ranelagh and Donnybrook together with a host of other amenities such as David Lloyd Riverview, UCD Belfield and the local shops at Milltown itself. Together with excellent bus routes, the Luas Green Line also provides easy access to both the city and southern suburbs.
Contact Us
Our team of financial experts are online, available by call or virtual meeting to guide you through your options. Get in touch today
Thank you
Your message has been sent successfully, we will get in touch with you as soon as possible.
Error
Could not submit form. Please try again later.
Rooms
Living/Dining Room Spacious living room with carpet flooring and brick fire place with electric fire insert. Large sliding door and floor to ceiling windows leading to the South facing balcony that overlooks the communal gardens and enjoys views towards the Dublin mountains.
Kitchen Tiled floors with a good range of built in kitchen cabinetry with sink unit and tiled splashback. Also includes Zanussi oven, hob, extractor fan and integrated dishwasher and fridge freezer. A large island provides extra storage and counter space.
Bedroom 1 Double room with carpet flooring and built in wardrobes. A large window allows for lots of natural light.
En Suite WC Fully tiled with toilet and wash hand basin. Mirror and tiled inset acting as shelf storage.
Bedroom 2 Double room with built in wardrobes and vanity unit.. Door opening into storage alcove/ enclosed veranda.
Bathroom Fully tiled bathroom with toilet, wash hand basin and shower cubicle. Includes built in storage unit and is plumbed for a washing machine.
BER Information
BER Number: 118886308
Energy Performance Indicator: kWh/m2/yr
About the Area
Milltown, Dublin 6, is a suburb on the southside of Dublin. The townland got its name well before the 18th century. Both Milltown and Clonskeagh were "Liberties" of Dublin, following the English invasion and colonisation in 1290. Milltown is marked by a spectacular 19th century railway bridge across the river, which was part of the Harcourt Street railway line which ran from Harcourt Street to Bray. In 2004 the bridge was re-opened for the Luas light rail system which runs from St. Stephen's Green to Bride's Glen.
Get Directions Buying property is a complicated process. With over 40 years’ experience working with buyers all over Ireland, we’ve researched and developed a selection of useful guides and resources to provide you with the insight you need..
From getting mortgage-ready to preparing and submitting your full application, our Mortgages division have the insight and expertise you need to help secure you the best possible outcome.
Applying in-depth research methodologies, we regularly publish market updates, trends, forecasts and more helping you make informed property decisions backed up by hard facts and information.
Need Help?
Our AI Chat is here 24/7 for instant support
Help To Buy Scheme
The property might qualify for the Help to Buy Scheme. Click here to see our guide to this scheme.
First Home Scheme
The property might qualify for the First Home Scheme. Click here to see our guide to this scheme.
