Thank you
Your message has been sent successfully, we will get in touch with you as soon as possible.
€130,000 Sale Agreed
Contact Us
Our team of financial experts are online, available by call or virtual meeting to guide you through your options. Get in touch today
Error
Could not submit form. Please try again later.
Apartment 10 Lowergate
Cashel
Co Tipperary
E25 Y329
Description
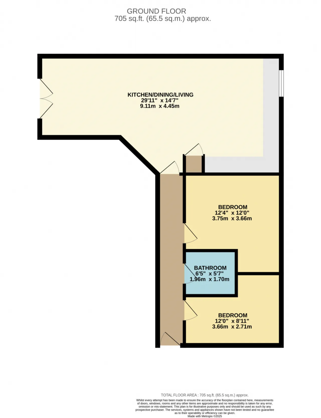
Accommodation comprise of entrance hall, living room/ kitchen/dining area, 2 bedrooms both with built in wardrobes and a bathroom.
Property is situated in a complex just off the Main St., in a pedestrian access area only and comes with underground private parking.
Approx 65.5sq.mtrs
Rooms
Bed 1
Bed 2
Bathroom
Balcony
BER Information
BER Number: 118187483
Energy Performance Indicator: 20.23kg/CO2/m2/yr
About the Area
Cashel remains one of the most spectacular tourist attractions in Ireland. Cashel’s rich history is reflected in its built heritage, from prehistoric raths to mediaeval monasteries and fortified town houses, a Georgian Cathedral and a 21st century Library (which holds regular exhibitions, workshops and concerts). The Town Plaza is the vibrant hub of downtown Cashel, and is host to a number of recreational facilities. Cashel’s Victorian town centre is a thriving retail zone, with excellent shops, lively cafes, pubs and food retailers.
Get Directions Buying property is a complicated process. With over 40 years’ experience working with buyers all over Ireland, we’ve researched and developed a selection of useful guides and resources to provide you with the insight you need..
From getting mortgage-ready to preparing and submitting your full application, our Mortgages division have the insight and expertise you need to help secure you the best possible outcome.
Applying in-depth research methodologies, we regularly publish market updates, trends, forecasts and more helping you make informed property decisions backed up by hard facts and information.
Need Help?
Our AI Chat is here 24/7 for instant support
Help To Buy Scheme
The property might qualify for the Help to Buy Scheme. Click here to see our guide to this scheme.
First Home Scheme
The property might qualify for the First Home Scheme. Click here to see our guide to this scheme.
