Thank you
Your message has been sent successfully, we will get in touch with you as soon as possible.
€265,000 Sold
Contact Us
Our team of financial experts are online, available by call or virtual meeting to guide you through your options. Get in touch today
Error
Could not submit form. Please try again later.
Mount Heaton
Roscrea
Co. Offaly
E53 TK50
Description
This property has been well maintained and is an ideal purchase for looking for peaceful country living.
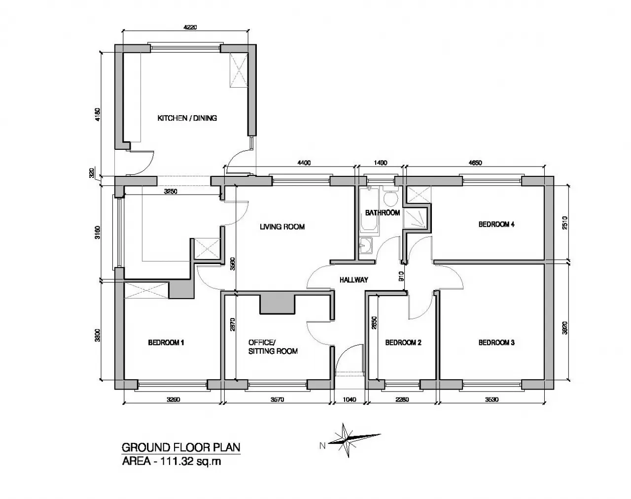
Built in approx. 1971 and extended over the years, accommodation extends to approx. 1,194 sq. ft. / 111 sq.m and includes and entrance hall, a sitting room, a living room, an extended kitchen come dining room, four bedrooms and a main bathroom.
Both oil fired central heating and solid fuel central heating are installed. The house has a mains water supply & septic tank drainage.
There is a beautiful garden to the front and a long garden to one side of the house, as well as some useful sheds to the rear.
Mount Heaton is located only 7.5km from junction 22 the M7 (Dublin to Limerick), Roscrea Train station is just 5km while Ballybrophy Train station is within 20-minute drive from the house. (both daily commuter train services)
Please call Julie Fogarty 0505 21192.
Features
Mains water supply & septic tank drainage
Large garden/paddock to the side of the property
.56 acres site
Rooms
Living Room 4.40m x 3.56m Free standing stove
Kitchen 4.22m x 4.18m
Dining Room 3.16m x 3.25m Open fireplace
Office/Sitting Room 3.57m x 2.87m Open fireplace
Bedroom 1 3.30m x 3.26m Built in Wardrobe
Bedroom 2 2.28m x 2.85m Built in Wardrobe
Bedroom 3 3.92m x 3.53m Built in Wardrobe
Bedroom 4 4.65m x 2.51m Built in Wardrobe
Bathroom 2.51m x 1.49m Separate shower and bath
BER Information
BER Number: 118319771
Energy Performance Indicator: 356.32 kWh/m2/yr
About the Area
Roscrea (Irish: Ros Cré) is a market town in County Tipperary. In 2011 the town had a population of 5,403. Its main industries include meat processing and pharmaceuticals. The town is one of the oldest in Ireland, and is a designated Irish Heritage Town due to the extent of important historical buildings that are preserved in the town.
Roscrae lies at the crossroads of the M7 motorway between Dublin and Limerick and the N62 between Athlone and Horse and Jockey. It is well connected by bus routes. Route 12 connects Dublin and Limerick and connections are available hourly. Roscrea railway station is on the Limerick–Ballybrophy railway line. At Ballybrophy it joins the main Cork-Dublin line.
Get Directions Buying property is a complicated process. With over 40 years’ experience working with buyers all over Ireland, we’ve researched and developed a selection of useful guides and resources to provide you with the insight you need..
From getting mortgage-ready to preparing and submitting your full application, our Mortgages division have the insight and expertise you need to help secure you the best possible outcome.
Applying in-depth research methodologies, we regularly publish market updates, trends, forecasts and more helping you make informed property decisions backed up by hard facts and information.
Need Help?
Our AI Chat is here 24/7 for instant support
Help To Buy Scheme
The property might qualify for the Help to Buy Scheme. Click here to see our guide to this scheme.
First Home Scheme
The property might qualify for the First Home Scheme. Click here to see our guide to this scheme.
