Thank you
Your message has been sent successfully, we will get in touch with you as soon as possible.
€390,000 Sale Agreed
Contact Us
Our team of financial experts are online, available by call or virtual meeting to guide you through your options. Get in touch today
Error
Could not submit form. Please try again later.
274A Millquarter
Gorey
Co. Wexford
Description
The accommodation includes a fully fitted modern kitchen, flooring throughout, and an elegantly designed bathroom. As an end-of-terrace home, it benefits from additional privacy and natural light.
Located within a sought-after, well-established development, this property represents an excellent opportunity to acquire a turnkey home in a prime residential setting.
The Millquarter development is superbly located adjacent to Gorey Town Centre and is a very short walk to Tesco Extra, Gorey Shopping Centre, ‘The Amber Springs Hotel and Health Spa’, ‘The M11 Business Campus’ and Gorey Railway Station. MillQuarter is accessed off of the R741 beside the Amber Springs Hotel and the development will also connect to the ‘Banogue Road’ allowing for a short walk out to the Courtown Road and the northern side of Gorey town.
Gorey and North Wexford is renowned for it's natural beauty, known as the Sunny South East, and Gorey Town is approximately 45 minutes from the M50.
Buying a house in MillQuarter in Gorey town is not just buying a home, it’s a positive lifestyle choice.
Features
• Three well-proportioned bedrooms.
• Fully fitted contemporary kitchen.
• Flooring throughout.
• Modern bathroom finished to a high standard.
• End-of-terrace position offering added privacy.
• Quiet cul-de-sac setting.
• Convenient location close to town.
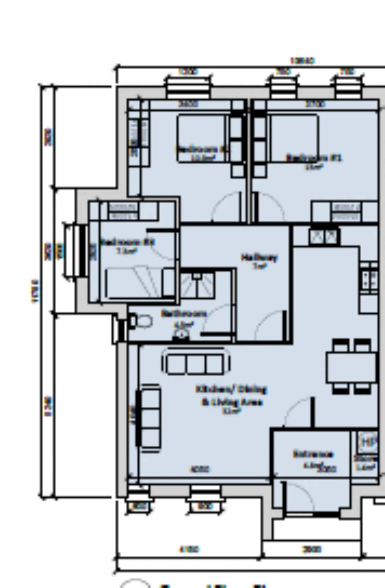
Rooms
Kitchen 5.89m x 2.38m
Living Room 4.45m x 3.91m
Inner hall 3.52m x 1.34m + 1.14m x 3.24m
Bedroom 1 3.42m x 3.69m
Bedroom 2 3.38m x 3.41m at widest point.
Bedroom 3 2.45m x 2.95m
Bathroom 3.25m x 2.26m at widest point.
BER Information
BER Number: 118649987
Energy Performance Indicator: 41.74 kWh/m²/yr
About the Area
Ask anyone about North Wexford in the Sunny South East and you will get a flood of loving sentiment and nostalgia. It is no surprise that over 35 businesses chose North Wexford, and many more joining up on a daily basis. Over 35 individual businesses have signed up for the 'Voucher' in Gorey. This is a unique venture with vouchers able to be redeemed at any one of the participating shops, restaurants and hotels.
Aside from its proximity to Dublin, residents enjoy the availablility of amenities and facilities in the town itself, while also experiencing the enjoyment of the nearby sprawling countryside, with its open fields and pastoral landscape, teeming with rich vegetation and wildlife.
Get Directions Buying property is a complicated process. With over 40 years’ experience working with buyers all over Ireland, we’ve researched and developed a selection of useful guides and resources to provide you with the insight you need..
From getting mortgage-ready to preparing and submitting your full application, our Mortgages division have the insight and expertise you need to help secure you the best possible outcome.
Applying in-depth research methodologies, we regularly publish market updates, trends, forecasts and more helping you make informed property decisions backed up by hard facts and information.
Need Help?
Our AI Chat is here 24/7 for instant support
Help To Buy Scheme
The property might qualify for the Help to Buy Scheme. Click here to see our guide to this scheme.
First Home Scheme
The property might qualify for the First Home Scheme. Click here to see our guide to this scheme.
