Thank you
Your message has been sent successfully, we will get in touch with you as soon as possible.
€285,000
Shop, Storage Shed & 1st Floor Apt.
Kilmaley
Ennis
Co Clare
V95 R2HW
Description
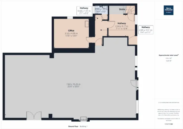
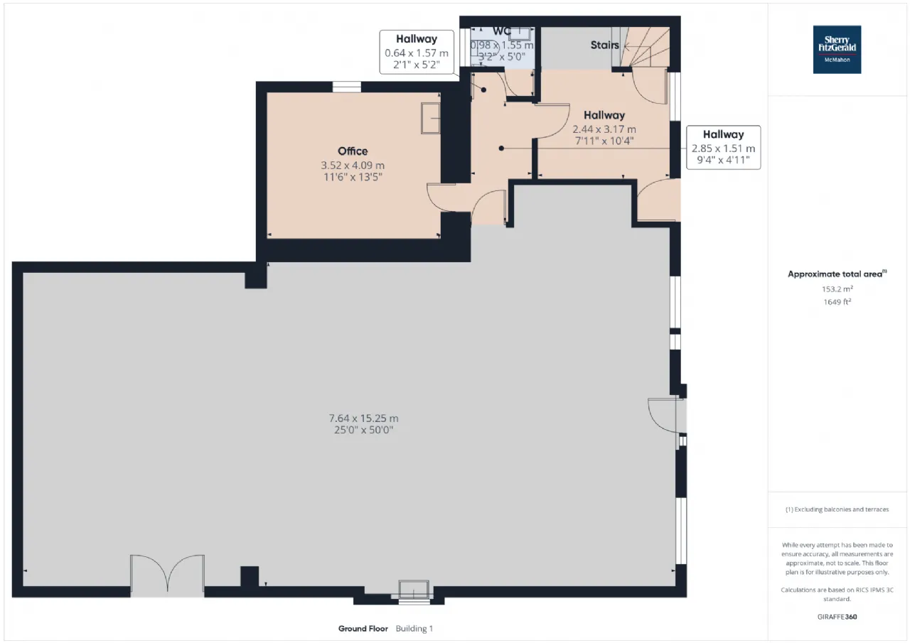
The ground floor area is predominantly made up of a 117sqm retail area which has front and side access. There is a private office space and WC on the ground floor. The first floor residential space is accessed via a separate front door into a private entrance hall giving access to the stairs. There is a substantial yard area to the side of the building. Adjacent to the main building facing onto the yard at the side there is a large 125 sqm double height shed with sliding door and an additional adjoining shed space with a WC.
The first floor apartment is in excellent condition with a floor area of about 100sqm. The top of the stairs opens to an open plan kitchen, living / dining space. It has laminate timber flooring, velux windows and built in kitchen appliances. In addition there are 3 double bedrooms (one of which is ensuite) a main bathroom and a converted attic space off the main master bedroom.
The entire site is made up of approximately 0.4 hectares (1acre) of ground. This includes the site of the buildings, the road in front of the property, a parking area across the road and frontage onto a stream across the road. The septic tank is located to the rear of the property. The site is made up of Folio’s CE19278F and CE31785F.
Features
Shop includes 5m dairy wall unit in working condition.
Walk in freezer
Potential to convert the retail to residential use subject to PP.
Large Storage shed to the side
Office is fully has multiple sockets and USB sockets
CCTV HIC connect camera system both inside and outside.
An Post Grade safe
Till system with back office
Oil fired central heating
Apartment includes built in hob, oven and dishwasher.
Built in furniture in main bedroom.
Multiple TV points in all rooms
Annual Rates €2700 per annum
Rooms
Shop Unit 7.64m x 15.25m
Office 3.52m x 4.09m
WC 3.60m x 1.69m
First Floor
Dining / Living Area 4.89m x 4.49m
Kitchen 2.98m x 4.16m
Main Bathroom 2.74m x 2.34m
Bedroom 1 3.58m x 3.18m
Bedroom 2 3.10m x 3.92m
Bedroom 3 4.22m x 4.21m
En-Suite 1.84m x 1.77m
Converted attic space 6.65m x 5.43m
Garage 16.17m x 7.25m
Store Room 2.85m x 4.34m
BER Information
BER Number: 801058868
Energy Performance Indicator: 373.6 kWh/m²/yr
About the Area
Strategically located between the University cities of Limerick and Galway, and within 20 mins of Shannon International Airport, the town of Ennis has enjoyed significant population growth and prosperity in recent years. Ennis is home to an abundance of amenities and facilties, making it a centre of employment, not just for the local population, but also for those in the surrounding localities.
Ennis was founded by the Franciscan Friars in 1240 A.D. as a centre of learning, and it has now progressed into a technology focused "Information Age Town". Ennis is the capital town of Clare and as such is the centre of a County steeped in traditional music and sport.
Get Directions Buying property is a complicated process. With over 40 years’ experience working with buyers all over Ireland, we’ve researched and developed a selection of useful guides and resources to provide you with the insight you need..
From getting mortgage-ready to preparing and submitting your full application, our Mortgages division have the insight and expertise you need to help secure you the best possible outcome.
Applying in-depth research methodologies, we regularly publish market updates, trends, forecasts and more helping you make informed property decisions backed up by hard facts and information.
Need Help?
Our AI Chat is here 24/7 for instant support
Help To Buy Scheme
The property might qualify for the Help to Buy Scheme. Click here to see our guide to this scheme.
First Home Scheme
The property might qualify for the First Home Scheme. Click here to see our guide to this scheme.
