Thank you
Your message has been sent successfully, we will get in touch with you as soon as possible.
€750,000
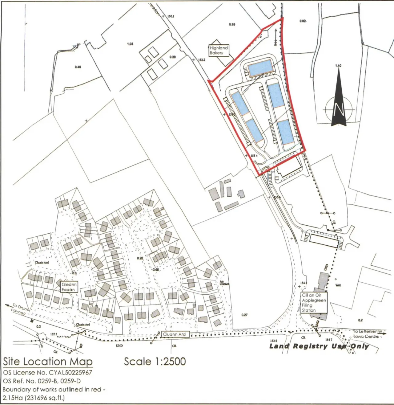
Killyclug (LOT 1)
Letterkenny
Co. Donegal
Description
COMMERCIAL/INDUSTRIAL/OFFICE UNITS
Sherry FitzGerald Paul Reynolds are offering for sale
Approx. 5.3 Acres of Land with Full Plannig Permission granted
for the construction of 5 No. Commercial/Industrial/Office Units
The Proposed Development will offer potential to a range of occupies/users
when complete
Features
• Highly visible development site
• Comprising 5.3 acres of land
• Full Planning Permission granted for the construction of 5 No. Commercial/Industrial/Office Units
• All services abut the subject site, ie. Mains Water, ESB, Broadband
The Planning Permission Entails:
• U1 Office Accommodation
• U2 Office Accommodation
• U3 Industrial Warehousing
• U4 Industrial Warehousing
• U5 Industrial Warehousing
About the Area
Letterkenny is the largest and most populous town in County Donegal, located on the River Swilly. Along with the nearby city of Derry, it forms the major economic core of the north-west of Ireland. Letterkenny is renowned for its night-life. It has been identified as one of Europe's fastest growing towns by business owners. The town's major employers include the General Hospital, Pramerica, and the Department of Social and Family Affairs. There are 5 primary schools and 4 secondary schools in the town.
Letterkenny is well served by public transport. Bus Éireann and private coach companies operate a number of services to Dublin, Derry, and Galway. Two national primary roads serve the town: the N13 from the South (Stranorlar) and the N14 from the East (Lifford).
Get Directions Buying property is a complicated process. With over 40 years’ experience working with buyers all over Ireland, we’ve researched and developed a selection of useful guides and resources to provide you with the insight you need..
From getting mortgage-ready to preparing and submitting your full application, our Mortgages division have the insight and expertise you need to help secure you the best possible outcome.
Applying in-depth research methodologies, we regularly publish market updates, trends, forecasts and more helping you make informed property decisions backed up by hard facts and information.
Need Help?
Our AI Chat is here 24/7 for instant support
Help To Buy Scheme
The property might qualify for the Help to Buy Scheme. Click here to see our guide to this scheme.
First Home Scheme
The property might qualify for the First Home Scheme. Click here to see our guide to this scheme.
