Thank you
Your message has been sent successfully, we will get in touch with you as soon as possible.
€750,000
Off The Square
Main Street
Clifden
Co.Galway
H71FC03
Description
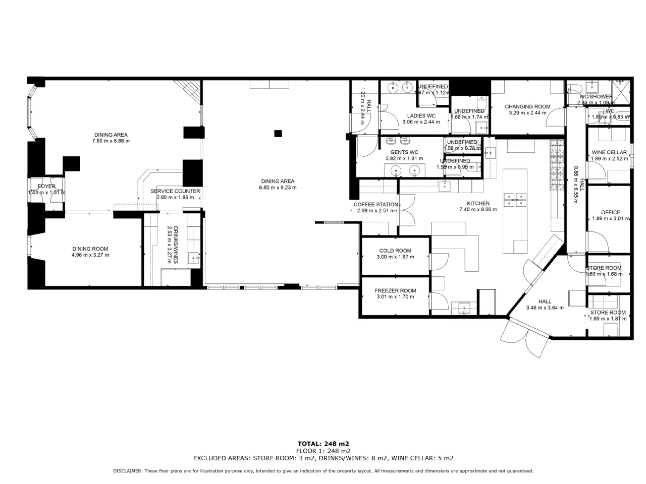
Having extensive frontage onto Clifden's Main street, the business attracts a substantial passing footfall trade.
Seating up to 80 guests,the restaurant has been excellently maintained with a warm cosy atmosphere.
The blend of solid wood floors, wainscoting and exposed stone, gives the space a lovely sense of character. The exterior has also reatained many original features.
Overhead are two apartments, both having two bedrooms. Laid out over two floors both with separate and private access from the rear of the building.
This is a substantial property with an excellent location in the renowned tourist town of Clifden.
BER Information
BER Number: 800510539
Energy Performance Indicator: 475.83kWh/m2/yr
About the Area
Clifden is Connemara's largest town; often referred to as "the Capital of Connemara". It is located on the Owenglen River where it flows into Clifden Bay. The town is linked to Galway city by the N59 and is a popular tourist destination for those touring Connemara. The HQ for the Connemara Garda service is in Clifden, as is the main Fire Station for Connemara. The local library hosts an ongoing programme of exhibitions, readings and other cultural events.
Get Directions Buying property is a complicated process. With over 40 years’ experience working with buyers all over Ireland, we’ve researched and developed a selection of useful guides and resources to provide you with the insight you need..
From getting mortgage-ready to preparing and submitting your full application, our Mortgages division have the insight and expertise you need to help secure you the best possible outcome.
Applying in-depth research methodologies, we regularly publish market updates, trends, forecasts and more helping you make informed property decisions backed up by hard facts and information.
Need Help?
Our AI Chat is here 24/7 for instant support
Help To Buy Scheme
The property might qualify for the Help to Buy Scheme. Click here to see our guide to this scheme.
First Home Scheme
The property might qualify for the First Home Scheme. Click here to see our guide to this scheme.
