Thank you
Your message has been sent successfully, we will get in touch with you as soon as possible.
€1,800,000
The Kazbar & Davy Mac's
57 John Street /
7 John's Avenue
Waterford
X91 F974
Description
The Kaz Bar and Davy Mac’s comprise a prominent licensed premises fronting onto The Apple Market, in a prime city-centre location at the heart of Waterford’s entertainment district. These two pubs are widely regarded as the beating heart of Waterford City nightlife and are extremely popular local venues.
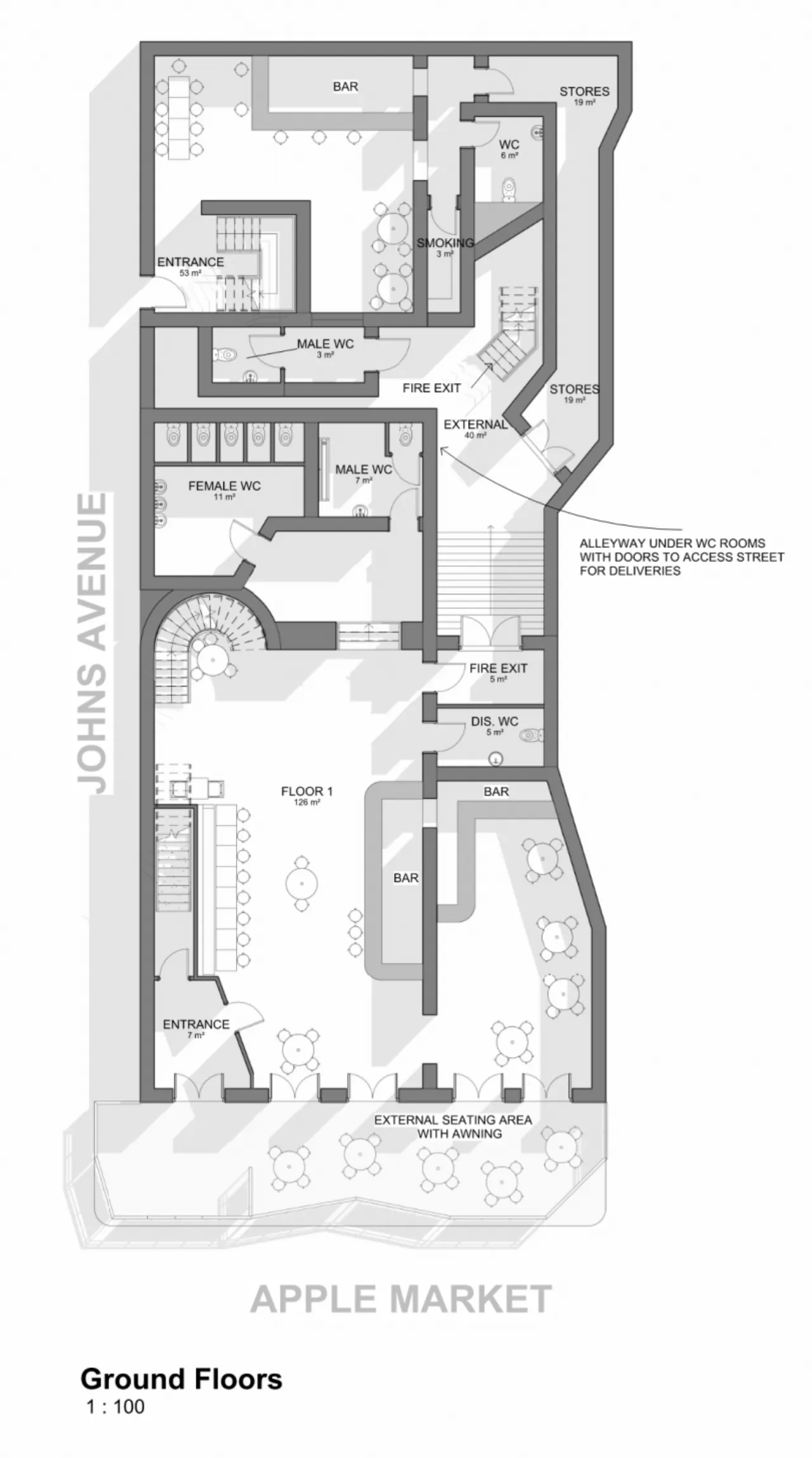
The property extends to approximately 640 sq. m (6,889 sq. ft.) in total.
• Ground floor: approximately 313 sq. m
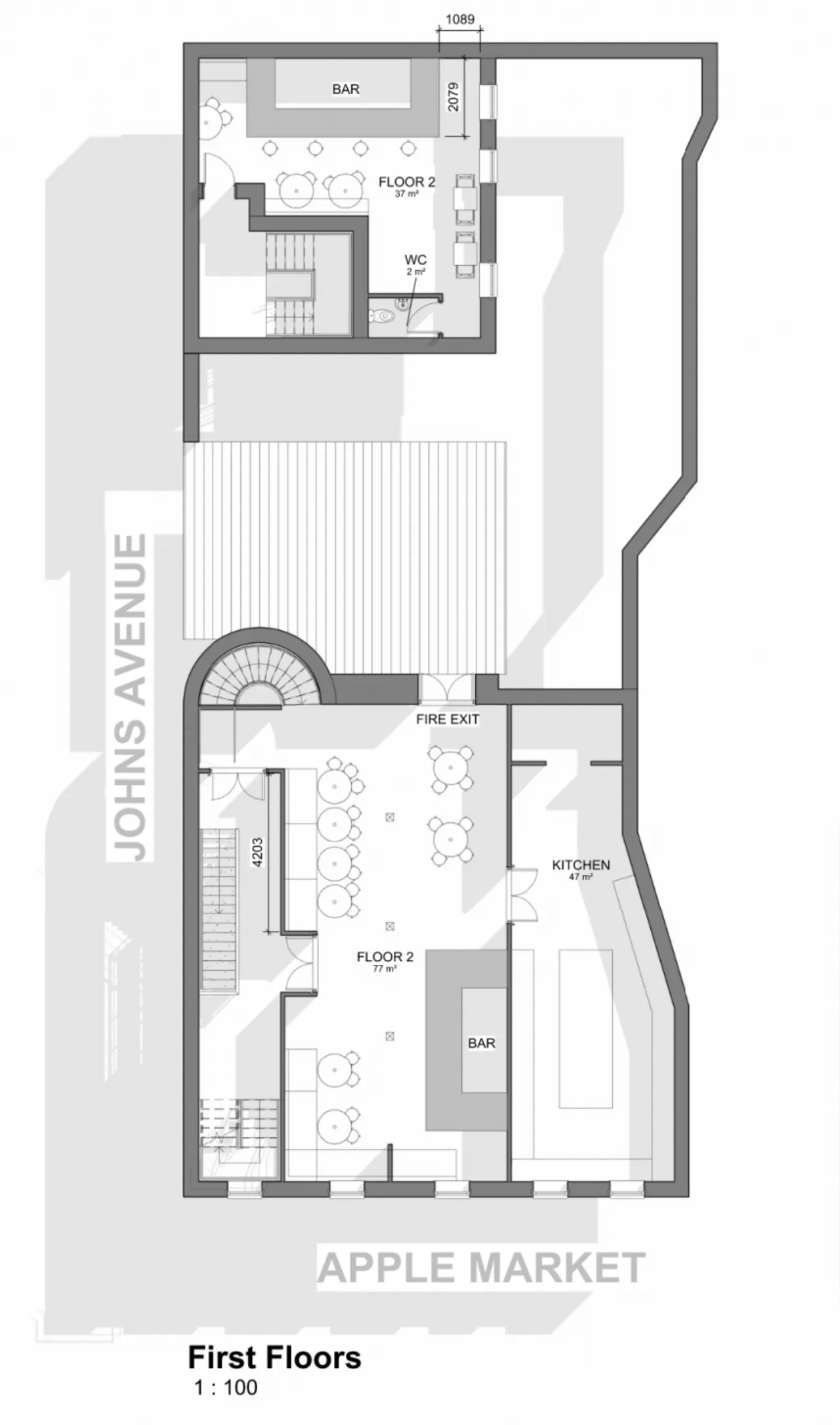
• First floor: approximately 201 sq. m
• Second floor: approximately 126 sq. m
The entire building extends to approx. 640 sq. m, with The Kaz Bar measuring 536 sq. m across three floors and Davy Mac’s measuring 104 sq. m across two floors.
The Kaz Bar is a late-night venue with a fantastic and consistent trade. It caters for midweek entertainment, including popular SETU nights, and weekend DJ music, ensuring a vibrant atmosphere throughout the week.
The accommodation is arranged to provide spacious bar areas across the ground, first, and second floors, each serviced by ample customer facilities and accessed via an internal stairway.
The second floor houses the main kitchen, supporting efficient service throughout the premises.
Notably, the third floor benefits from a roof terrace, providing a dedicated beer garden and smoking area, in addition to the on-street beer garden and smoking area at ground level.
The flexible layout and substantial frontage ensure a strong and consistent throughput of trade, with further potential to enhance the offering. The premises is well suited to both everyday service and private special events.
Davy Mac’s is a well-established cocktail bar that also enjoys a strong and loyal trade. While it caters to a different audience than The Kaz Bar, the sale of both venues together provides a unique opportunity to capture both sides of the market.
Davy Mac’s is a cosy pub with a welcoming open fire. While it specialises in cocktails, a full range of drinks is available.
The ground floor comprises the main pub area, smoking area, male and female toilets, as well as storage space and a keg room. Upstairs, Davy Mac’s regularly caters for corporate and private events, offering a second bar, seating area, and additional toilet facilities. There is also storage available at the rear of the two bars, located within Parnell Court.
Together, these extremely popular venues offer multiple spacious bar areas in a prime location, providing an outstanding opportunity in Waterford City’s thriving hospitality sector.
BER TO BE CONFIRMED
About the Area
Waterford (Irish: Port Láirge) is the oldest city in Ireland, situated at the head of Waterford Harbour, with a population of 46,732. The city is served by 21 primary schools and 9 secondary schools. River Suir, which flows through Waterford City, has provided a basis for the city's long maritime history. The M9 motorway, connects the city to Dublin. The N24 road connects the city to Limerick city. The N25 road connects the city to Cork city. The route continues eastwards to Rosslare Harbour. Bus services operate throughout the city centre and across the region. Waterford railway station is the only railway station in the county of Waterford.
Get Directions Buying property is a complicated process. With over 40 years’ experience working with buyers all over Ireland, we’ve researched and developed a selection of useful guides and resources to provide you with the insight you need..
From getting mortgage-ready to preparing and submitting your full application, our Mortgages division have the insight and expertise you need to help secure you the best possible outcome.
Applying in-depth research methodologies, we regularly publish market updates, trends, forecasts and more helping you make informed property decisions backed up by hard facts and information.
Need Help?
Our AI Chat is here 24/7 for instant support
Help To Buy Scheme
The property might qualify for the Help to Buy Scheme. Click here to see our guide to this scheme.
First Home Scheme
The property might qualify for the First Home Scheme. Click here to see our guide to this scheme.
