Thank you
Your message has been sent successfully, we will get in touch with you as soon as possible.
The Smithslands Centre
Waterford Road
Kilkenny
Description
The Smithlands Centre is situated on the outskirts of Kilkenny City, opposite Aldi and Lidl, close to Loughboy Shopping Centre and Scanlan Park and just off the Waterford Road and Kilkenny Ring Road. This newly developed commercial centre provides a selection of ground floor and first floor retail units together with office units at first and second floor level. The development features 217 car park spaces (66 surface & 151 underground). The adjoining Lidl Centre has 140 car spaces and is a proven commercial success. The Smithlands Centre features its own vehicular access to the Bohernatounish Road and enjoys a high profile to the Waterford Road. The adjacent Aldi Centre features 60 car spaces.
Therefore there is a total of 417 car spaces nearby. Existing Retailers include:
Jones Business Systems, Grooms Menswear, Marios, Mamas and Papas, Harrington Bookermakers, Agat Stores, Jeutonic Bridal Wear, II Primo Italian Restaurant & Doc Morris Pharmacy.
Block 1: Front block onto Bohernatounish Road
Option 1: Only 2 Units Remaining
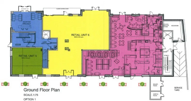
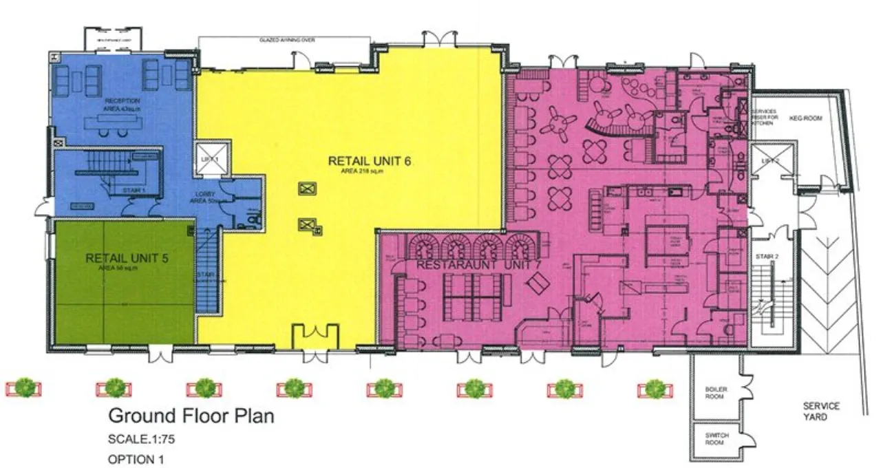
Unit 4: - 65 m2 ( 708 sq ft) €15,000 per annum
Unit 5: - 45 m2 ( 484 sq ft) €12,000 per annum
First Floor Block 1:
With an open plan reception foyer at ground floor level the first and second floors are easily accessible via stairs or lift. Jeutonic Bridal Boutique is located at first floor level.
First Floor: 586 m2 (6,307 sq ft)
Ideal Office, Call Centre, Gym etc
Second Floor: 586 m2 (6,307 sq ft)
Ideal Office, Call Centre, Gym etc
Block 2: Rear Block overlooking Car park
Join Grooms, Babyboom, Marios, Harrington Bookmakers, Jones Business Systems, Evolutions, Kilkenny Academy of Dance etc.
Ground Floor: Fully Let and occupied
First Floor:
Office/Retail 6: 169.5 m2 (1,824 sq ft)
7A 90 m2 ( 968 sq ft)
7B 90 m2 ( 968 sq ft)
8B 97.5 m2 (1,049 sq ft)
11 168.2 m2 (1,810 sq ft)
Second Floor: Currently open plan but divisible if required
Total Area: 896 m2 (9,644 sq ft)
First Floor Block 1:
With an open plan reception foyer at ground floor level the first and second floors are easily accessible via stairs or lift. Jeutonic Bridal Boutique is located at first floor level.
First Floor: 586 m2 (6,307 sq ft)
Ideal Office, Call Centre, Gym etc
Second Floor: 586 m2 (6,307 sq ft)
Ideal Office, Call Centre, Gym etc
Block 2: Rear Block overlooking Car park
Join Grooms, Babyboom, Marios, Harrington Bookmakers,
Jones Business Systems, Evolutions, Kilkenny Academy of
Dance etc.
Ground Floor: Fully Let and occupied
First Floor:
Office/Retail 6: 169.5 m2 (1,824 sq ft)
7A 90 m2 ( 968 sq ft)
7B 90 m2 ( 968 sq ft)
8B 97.5 m2 (1,049 sq ft)
11 168.2 m2 (1,810 sq ft)
Second Floor: Currently open plan but divisible if required
Total Area: 896 m2 (9,644 sq ft)
Features
Suspended ceiling or plastered ceiling
Power, Gas & Water laid onto each unit
Shop front fitted
Access to roof deck for services
About the Area
Kilkenny is a vibrant city, built on both banks of the River Nore, with a population of 8,711. It is a popular tourist destination, and locals avail of the amenities and leisure facilities found here. Kilkenny is the smallest city in Ireland, 117 kilometres (73 mi) away from Dublin and 48 kilometres (30 mi) north of Waterford city.
Get Directions Buying property is a complicated process. With over 40 years’ experience working with buyers all over Ireland, we’ve researched and developed a selection of useful guides and resources to provide you with the insight you need..
From getting mortgage-ready to preparing and submitting your full application, our Mortgages division have the insight and expertise you need to help secure you the best possible outcome.
Applying in-depth research methodologies, we regularly publish market updates, trends, forecasts and more helping you make informed property decisions backed up by hard facts and information.
Need Help?
Our AI Chat is here 24/7 for instant support
Help To Buy Scheme
The property might qualify for the Help to Buy Scheme. Click here to see our guide to this scheme.
First Home Scheme
The property might qualify for the First Home Scheme. Click here to see our guide to this scheme.
