Thank you
Your message has been sent successfully, we will get in touch with you as soon as possible.
€900,000 Sale Agreed
Serviced Site For 33 Units At
Drumgola Wood
Cavan
Description
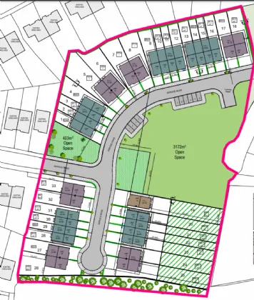
The site area extends to 1.4 hectares (3.45 acres) approx. with full planning permission granted for;
20 x 2 bedroom terraced units (84.9 sq. m).
12 x 3 bedroom semi-detached units (107.9 sq. m).
1 x 3 bedroom detached unit (107.9 sq. m).
The site is superbly located within the established Drumgola Woods development. Conveniently located 3 km approx. from the heart of Cavan town the area is accessible to all amenities and services by foot, car or local transport links.
A full set of plans, house types, site layouts are available upon request.
About the Area
Cavan town sits in a picturesque valley in the middle of drumlins. The richness and beauty of the natural environment is accentuated by the numerous historic sites in the area. Cavan has experienced much growth in recent years, with much of the residential development climbing up over the drumlins overlooking the town. It's on the N3 linking Dublin and Enniskillen. Between the drumlins are hundreds of little lakes making Cavan a haven for anglers and boaters. Employment in the town is diverse, and Cavan's best-known industries are Cavan Crystal and the Lifeforce mill, which grinds corn and bakes bread using traditional methods.
Get Directions Buying property is a complicated process. With over 40 years’ experience working with buyers all over Ireland, we’ve researched and developed a selection of useful guides and resources to provide you with the insight you need..
From getting mortgage-ready to preparing and submitting your full application, our Mortgages division have the insight and expertise you need to help secure you the best possible outcome.
Applying in-depth research methodologies, we regularly publish market updates, trends, forecasts and more helping you make informed property decisions backed up by hard facts and information.
Need Help?
Our AI Chat is here 24/7 for instant support
Help To Buy Scheme
The property might qualify for the Help to Buy Scheme. Click here to see our guide to this scheme.
First Home Scheme
The property might qualify for the First Home Scheme. Click here to see our guide to this scheme.
