Thank you
Your message has been sent successfully, we will get in touch with you as soon as possible.
€1,650,000 Sale Agreed
Site
Clonbrone
Esker Hill
Lucan
Co. Dublin
K78 Y5C2
Description
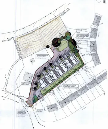
The site extends to a total of 0.30ha (0.74 ac)
Planning states:
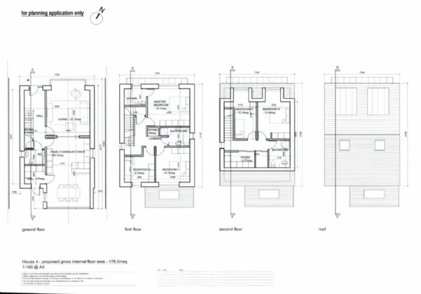
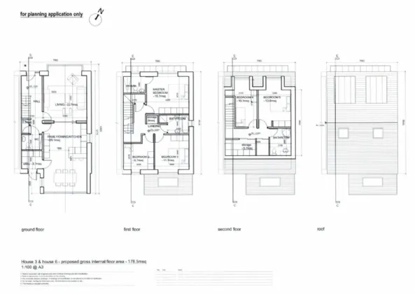
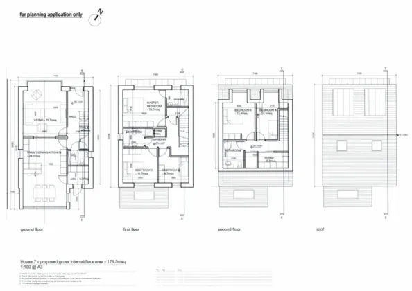
Demolition of an existing two storey detached dwelling (162sq.m) and associated out-buildings on site and the construction of 7 two storey (plus dormer level); 5 bedroom houses comprised of 3 detached houses and 4 semi-detached houses on a site area of c. 0.3ha; all associated site development works, car parking, open spaces and landscaping etc; proposed access to the development will by via the existing vehicular entrance on the Lucan-Newlands Road / Esker Hill.
Planning Ref: SD22A/0390
The location is second to none. Situated just convenience is quite literally on your doorstep.
The location is one of the most sought after addresses within Lucan. Located in the parish of Saint Mary's and within 250m of the picturesque village of Lucan, which offers quaint hostelries, a choice of restaurants and excellent schools. There is a wealth of sport and recreation facilities within easy reach such as Lucan Weir, St Catherine’s Park, Lucan Golf Club, Hermitage Golf Club, Beech Park FC and Lucan Sarsfield’s GAA to name a few.
BER Information
BER Number: 111302717
Energy Performance Indicator: 555.61 kWh/M2/yr
About the Area
Lucan is a suburban town, situated some 13 km from Dublin's city centre. It is located just off the N4 road, close to the county boundary with County Kildare. A public transport network serving the area makes it easily accessible to Dublin and the surrounding area. Liffey Valley Shopping Centre and Blanchardstown Centre are only a short drive from Lucan Village, while Lucan's inhabitants are only a 20 minute drive away from Dublin City. There are numerous amenities in Lucan, with a main street full of shops, banks, and cafés. Lucan Shopping Centre contains a Dunnes Stores, Supervalu, Peter Mark and McDonald's. Tesco in Hillcrest, which has a Domino's Pizza beside it. Lidl's campus contains the Penny Hill, a Eurospar and a taxi company. Lucan has a number of schools, including an Educate Together primary school.
Get Directions Buying property is a complicated process. With over 40 years’ experience working with buyers all over Ireland, we’ve researched and developed a selection of useful guides and resources to provide you with the insight you need..
From getting mortgage-ready to preparing and submitting your full application, our Mortgages division have the insight and expertise you need to help secure you the best possible outcome.
Applying in-depth research methodologies, we regularly publish market updates, trends, forecasts and more helping you make informed property decisions backed up by hard facts and information.
Need Help?
Our AI Chat is here 24/7 for instant support
Help To Buy Scheme
The property might qualify for the Help to Buy Scheme. Click here to see our guide to this scheme.
First Home Scheme
The property might qualify for the First Home Scheme. Click here to see our guide to this scheme.
