Thank you
Your message has been sent successfully, we will get in touch with you as soon as possible.
Ready To Go Site - FPP 6 Apartments
Main Street
Castlebellingham
Description
Sherry FitzGerald Carroll present to the market, a unique opportunity to acquire an attractive development site with full planning permission for 6 no 2 bed apartments, in a prime residential location, on the main street in Castlebellingham.
The existing property is a 2-storey structure with a pitched roof and sits on a regular shaped parcel, extending to approximately 0.08 acres with a 17 metre frontage onto the Main Street in Castlebellingham. The property adjoins retail uses to the north and south. The proposed development retains the original front façade, protecting the architectural character of the building. The planning includes alterations to the existing building, second floor extension to the rear and dormer windows to the front and provision for rear access.
The site is located in the village of Castlebellingham, Co. Louth, approximately 13 kilometres south of Dundalk Town Centre and approximately 24 kilometres north of Drogheda Town Centre. The location is also convenient to M1 Motorway Junction 15 giving direct access to Dublin and Belfast and Airports.
Planning
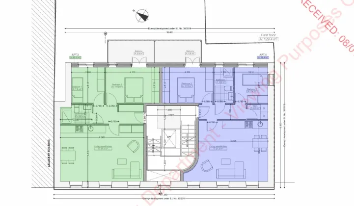
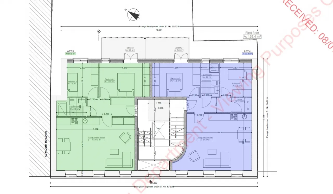
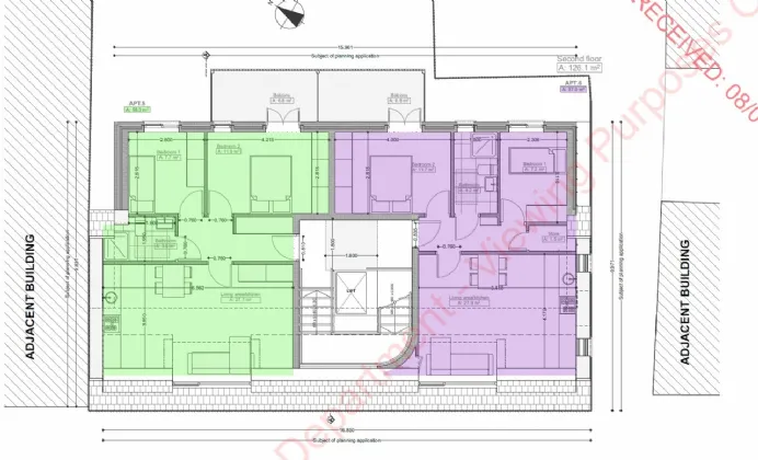
The site is zoned B1 “Town and Village Centre” and are contained within the Louth County Development Plan 2021-2027. The objective of this zoning is “To support the development, improvement and expansion of the town or village centre activities.” Planning permission was granted (planning reference 2360443 & 2560587) for the construction of 6 no. 2 bed apartments, as below:
Ground Floor – Apt. 1 – 60.0 sq.m. / 645 sq.ft
Ground Floor - Apt. 2 – 56.4 sq.m. / 607 sq.ft
1st Floor - Apt. 3 – 60.0 sq.m. / 645 sq.ft
1st Floor - Apt. 4 – 58.4 sq.m. / 628 sq.ft
2nd Floor – Apt. 5 – 59.3 sq.m. / 638 sq.ft
2nd Floor – Apt. 6 – 57.0 sq.m. / 613 sq.ft
Services
We understand mains services are available to the site; however, we would recommend all interested parties to satisfy themselves as to the availability and adequacy of these services.
Tenure
Freehold - contained within Folio LH37125F and a Right of Way to the rear over an adjoining shared laneway.
Full details upon request.
About the Area
Castlebellingham (Irish: Baile an Ghearlánaigh) is a charming village in County Louth. The village has become a lot quieter since the construction of the new M1 motorway which bypasses the village. Because of its proximity to Dublin and Dundalk, the village has seen an influx of new inhabitants and construction, which has also led to an increase in the amenities available in the area, including shops and schools.
Get Directions Buying property is a complicated process. With over 40 years’ experience working with buyers all over Ireland, we’ve researched and developed a selection of useful guides and resources to provide you with the insight you need..
From getting mortgage-ready to preparing and submitting your full application, our Mortgages division have the insight and expertise you need to help secure you the best possible outcome.
Applying in-depth research methodologies, we regularly publish market updates, trends, forecasts and more helping you make informed property decisions backed up by hard facts and information.
Need Help?
Our AI Chat is here 24/7 for instant support
Help To Buy Scheme
The property might qualify for the Help to Buy Scheme. Click here to see our guide to this scheme.
First Home Scheme
The property might qualify for the First Home Scheme. Click here to see our guide to this scheme.
