Thank you
Your message has been sent successfully, we will get in touch with you as soon as possible.
€195,000 Sale Agreed
15 Seatown Place
Dundalk
Co. Louth
A91 D856
Description
Sherry FitzGerald present to the market this superb Town Centre office For Sale, an ideal opportunity to remodel and craft your own space in this most interesting property.
15 Seatown is located close to a host of local amenities, both primary and secondary schools, and Marshes shopping centre. The property benefits from its close proximity to numerous multi-national companies located in Dundalk, PayPal, National Pen, WuXi Biologics and many more, ease of access to the M1 motorway North or Southbound, making it an ideal place for an office location for an owner occupier or investor.
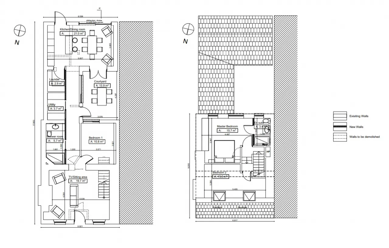
Accommodation comprising: entrance porch, reception, a mix of open plan and individual offices and a kitchen.
This is a property for those with a keen eye and offers huge potential to convert this office space into a dream home with stunning architectural features!
Viewing highly recommended!
Features
Extensive South Facing Rear Garden
Residential/Commercial Purposes
BER Information
BER Number: 800854739
Energy Performance Indicator: 280.11 kWh/m2/yr
About the Area
Dundalk is the county town and administrative capital of County Louth, situated where the Castletown River flows into Dundalk Bay. The town is close to the border with Northern Ireland and equidistant from Dublin and Belfast. The town's name, which was historically written as Dundalgan, has associations with the mythical warrior Cú Chulainn. In 2003 Dundalk was amongst nine cities and towns to be designated Gateway status in the Irish Government's National Spatial Strategy.
Get Directions Buying property is a complicated process. With over 40 years’ experience working with buyers all over Ireland, we’ve researched and developed a selection of useful guides and resources to provide you with the insight you need..
From getting mortgage-ready to preparing and submitting your full application, our Mortgages division have the insight and expertise you need to help secure you the best possible outcome.
Applying in-depth research methodologies, we regularly publish market updates, trends, forecasts and more helping you make informed property decisions backed up by hard facts and information.
Need Help?
Our AI Chat is here 24/7 for instant support
Help To Buy Scheme
The property might qualify for the Help to Buy Scheme. Click here to see our guide to this scheme.
First Home Scheme
The property might qualify for the First Home Scheme. Click here to see our guide to this scheme.
